查看完整案例


收藏

下载
C Y A N - D E S I G N
Location 项目地址 :成都 | 麓湖.麒麟荟
Project Design 主案设计 :曹瑜 cyan
Effect of Rendering 效果呈现:黑匣子
Detailed Design 深化设计:叶韬 周佳豹
Ccartographer 施工制图:叶韬
Copy Writer 文案编辑:曹瑜 cyan
Garden Design 花园设计:析木景观设计
Area 项目面积 :405.9㎡
Design Agency 设计机构:Thomas 托玛仕&胤尊
Project Time 设计时间:2021 · 03
麒麟荟坐拥麓湖生态城核心位置,具备独一无二的景致,每一户都拥有近 270°的景观视野,可以俯瞰整个麓湖。“它也是国内首个登上美国《福布斯生活》杂志的高端住宅。建筑由美国著名设计公司 5+DESIGN 设计,以水晶盒为设计灵感,建筑空间突破了传统高层垂直向上、塔状等固定模式,每一层都以不规则、错落出挑的空间构建出晶体感的建筑结构。建筑 70%外墙面采用玻璃,悬浮于湖岛之上,充满未来感和神秘感,被誉为’空中水晶魔方’。”
(图片来自网络)
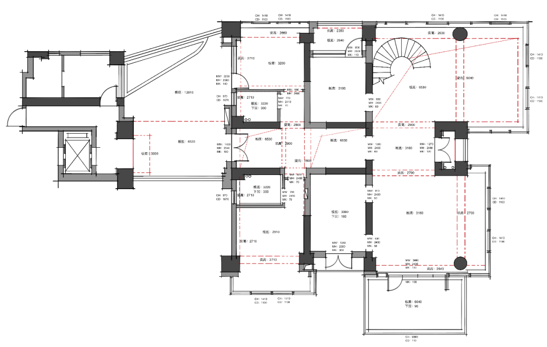
1F STRUCTU RECHART
1F LAYOUT
PLANS
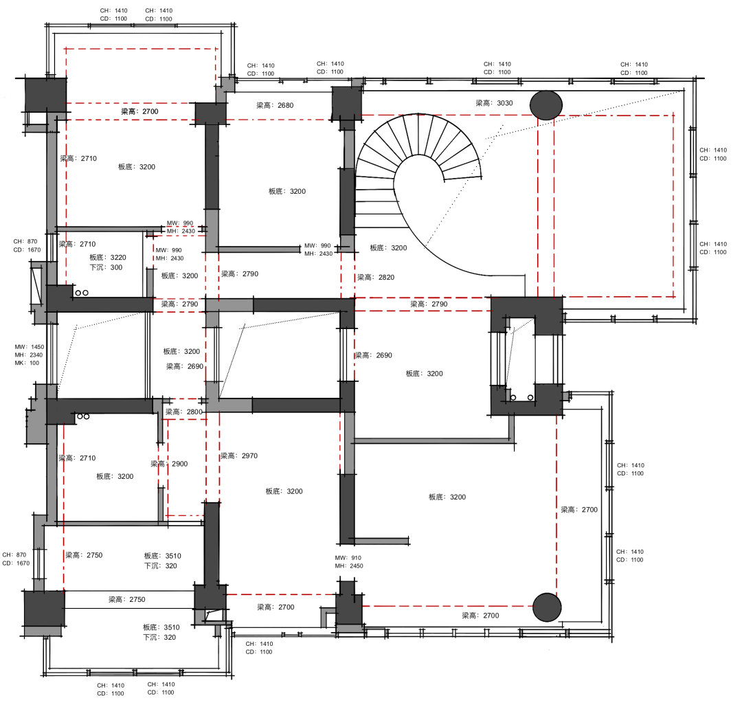
2FSTRUCTURECHART
2F LAYOUT
PLANS
LIVING ROOM|客厅
建筑外观已有得天独厚的景致,内部结构也已分隔好空间,突破既定的格局符合业主生活理念的同时,也要构建出趣味性。恣意的接纳空间本身所有的结构形态,有序的规划居住者对生活的完美追求。
BAR COUNTER| 吧台
国外对于风水和景观的考虑与国内还是会有着文化上的差异,我们规避了能够一眼看穿整个空间视野的动线,封闭原始中心位置设立入户储物式屏风,转而考虑了两条分支动线,一条是“妙趣横生”的休闲通道,一条是“人间烟火”的餐娱通道,同时又是环绕型通道,像是能把生活的一切交织,相融。
STAIRS|
楼梯
建筑本身悬浮于湖岛之上,而室内空间中承载着转换场景的建筑结构动线体我也想要它悬浮,楼梯,想要让它独立又有个性,孤傲又带点生命力。用璧内引光的形式做扶手,墙面上的“光脉”既能通向楼梯隐藏起来的脊骨,也能指引梦乡之路。
LEISURE AREA|休闲区
DININGROOM|用餐区
MASTERROOM|主人房
一步入室,借外景为端景。转步可休,让玄关也显露可观,生趣而舒展。
DAUGHTERROOM|女儿房
SONROOM|儿子房
CLOAKROOM|主卧衣帽间
GARDEN|花园
相伴人间温暖,惬享生活自在.
WeChaet:Jtncyc
ADD:四川省成都市锦江区德必川报易园
- END -
客服
消息
收藏
下载
最近











































