查看完整案例


收藏

下载
·项目信息
Project information
设计项目地址 | Project address:万科金域蓝湾愉景湾
项目面积 | Project area:260㎡
主创设计师 | Chief Designer :张依
设计团队 | Design team:赵刘焱 陈浩裕 陈永国
设计风格 | Design style:现代轻奢
施工单位| Construction unit:东成至盛装饰
现在侘寂风、奶油风正流行,但是与此同时,还有一种风格,在悄悄的兴起,流传在普罗大众,这就是现代轻奢,利用精美的布局和独特的设计理念,打造一间舒适,优雅又不失奢华感的居住它又该如何设计?
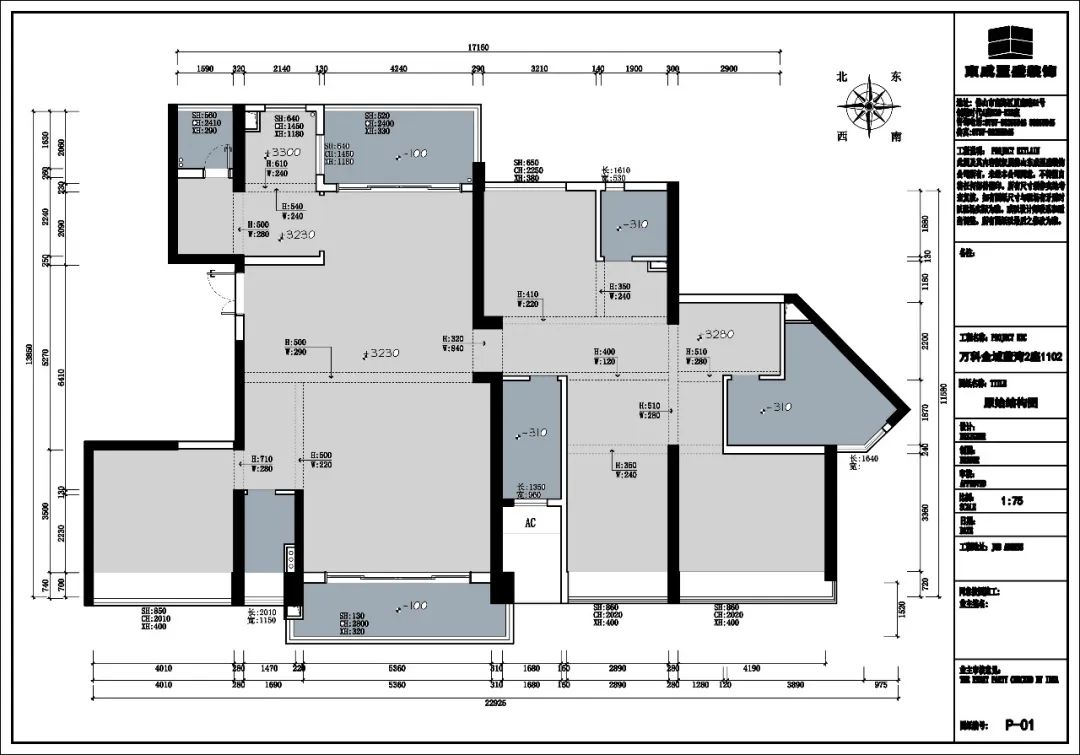
·平面解析 Plane analysis
平面设计图
Floor Plan
设计解析
业主的需求:在保留原有的空间前提下,每个卧室都需要套卫,预留一个公卫,前后阳台保留(河边风景美,通风效果好),主卧需要办公区和衣帽间。针对每位家庭成员,满足了所需功能。主调轻奢为主,以所需色调联动整个室内空间,设计师的时尚理念延伸到空间,让我们来看看呈现的视觉体验。会客区
玄关承载着内外连接过度的重任,是进门后的第一道风景线。鱼肚白的大理石,加上钢板穿插,绿色的植物点缀,给人映入眼帘的小惊喜~
浅灰色大理石通铺整个客餐厅,高级的中性色,简洁大气令空间质感更为饱满,通过材质上的奢华,不着痕迹地透露出对于精致、考究生活的需求。
起居室
通过不同材质与色调的运用,使空间富有层次。壁灯线条感十足,为空间增添轻奢时尚。
卧室鲜活明亮,设计师在床的上方加入了线条元素,增添了空间的层次感,超大采光提亮了整个卧室,缤纷的大理石为卧室点缀了轻奢氛围。
衣帽间
衣帽间的金属感柜门,尽显轻奢的精致美感,享受金属感所带来的视觉感受,金属元素的加入让空间更具奢华典雅。
卫生间
卫生间也使用了大理石,遵循视觉统一的规则,而雾面黑色的淋浴区,层次分明。阳台
阳台做了一个这样舒适休闲的区域,平时三五好友在此闲坐聊天、喝茶特别方便。再在上面摆放一些花朵、绿植装饰这个小空间,真的是尽善尽美了。
在软装和硬装的搭配融洽下,整个空间给人一种很轻松的感觉,线条有序+高级典雅,正是业主喜欢的、想要的效果。生活不需要多繁华,多奢华,多豪华,自己喜欢便是最好的。
主创设计师╱张依╱
公司荣誉:
- 中国室内装饰—“优质工程奖”
- 广东装饰代表—“推荐装饰品牌”
- 广东省建筑设计协会-常务理事单位
- 广东建筑设计协会-副会长单位
- 荣获 2022 年广东(佛山)十大居住空间设计师-金住奖
- 荣获 2022 年 CSE 江西省室内设计大赛-优秀奖
- 荣获 2021 年华人设计师网-集美奖
- 荣获 2021 年亚太当红-别墅设计师奖
- 荣获 2018 年广东室内设计 50 强
- 荣获 2018 年-鼎银奖
- 荣获 2018 年-华银奖
- 荣获 2017 年-大金匠心奖
- 荣获亚太建筑设计周 2017 年春季洋房设计-入围奖
- 荣获亚太建筑设计周 2017 年住宅空间设计-金奖
- 鹏鼎奖中国空间设计大赛-年度新锐设计师
- 中国国际室内设计双年展-铜奖
- 亚太区室内设计大赛-优秀赛
- 中国国际室内设计双年奖-铜奖
- 家饰作品杰出设计师大赛-一等奖
- 中国工艺美术作品展-金奖
- 中国工艺美术作品展-金奖
客服
消息
收藏
下载
最近
























