查看完整案例


收藏

下载
设计单位 |木美空间
施工单位|东成至盛装饰
项目地址 |滨江一号
项目风格 |现代简约
项目户型 | 三居室+两卫
项目面积 | 145㎡
主案设计总监 |杜 枫 周华乔
设计团队 |刘林玉 陈永国 陈希凌 黄韵程
LATE AUTUMN EVENING RAIN
设计解析 Design analysis
本案的设计在色块划分和规整有型之间细细斟酌,大地色系作为点缀色巧妙融入大理石纹理及白灰叠加的场域中,稀释冷调的同时挑染出几分参差错落的视觉效果。
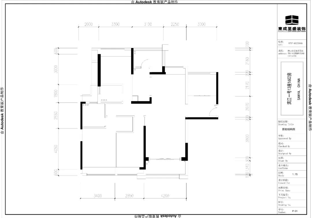
原始结构图
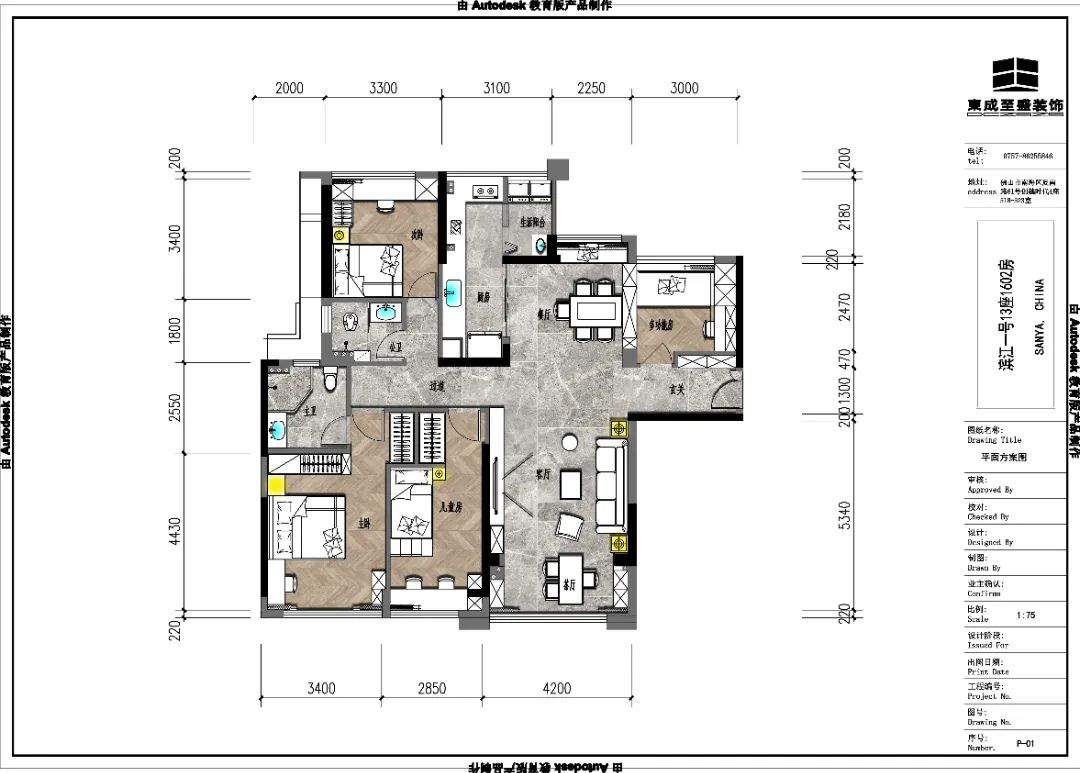
平面设计布局图
01 客厅
摒弃了常见的天花吊顶,客餐厅以磁吸灯为主的吊顶加上客厅侧边的弧形曲线设计,赋予了多层动态和美学。纯白色调的沙发与灰色墙体给予了沉静舒适的氛围,让恬静质感的气息弥漫沉积。
02 餐厅
肆意蔓延的磁吸灯光线,受条纹结构的分割,过滤了浮躁,生发出静逸,给予就餐厅场景的高雅。餐厅的桌椅凭借色彩的浓淡关系与纹理的多样性,浸透艺术。拼合墙面纹理的简雅气息,促使餐厅区域空间的相互平衡,表达了美学格调,让平凡的烟火变得更有审美价值。
03 主卧
温柔舒适是空间设计的底层逻辑,主卧甄选触感温柔、纹样自然的陈设,搭配无顶灯造型,唤活空间的无限可能。
04 次卧
在卧室的视觉色彩描绘上,更好地处理了感性与理性的共生关系。汲取公共空间的色彩温度、比例数值与材质特征,发挥创造力重塑出独属此间的美学格局。
05 儿童房 多功能房
设计师充分了解业主需求后,在尽可能少动原始户型的前提下,对房屋进行改造升级,让家焕然新生。
06厨房 卫生间
有人觉得房子能住就行,设计成有个性的空间就是“浪费,矫情,没必要”;但是生活需要个性,来证明自己的独一无二,来安抚在平凡生活中日复一日被磋磨的炽热的心。改掉千篇一律的装修,设计成自己喜欢的空间,给家打上自己的烙印,给生活以归属感;愿你平凡而不平庸,永远有能力去热爱与追寻。
主案创意总监:杜枫
设计总监:周华乔
公司荣誉
中国室内装饰—“优质工程奖”
广东装饰代表—“推荐装饰品牌”
广东省建筑设计协会-常务理事单位
广东建筑设计协会-副会长单位
荣获 2021 年华人设计师网-集美奖
荣获 2021 年亚太当红-别墅设计师奖
荣获 2018 年广东室内设计 50 强
荣获 2018 年-鼎银奖
荣获 2018 年-华银奖
荣获 2017 年-大金匠心奖
荣获亚太建筑设计周 2017 年春季洋房设计-入围奖
荣获亚太建筑设计周 2017 年住宅空间设计-金奖
鹏鼎奖中国空间设计大赛-年度新锐设计师
中国国际室内设计双年展-铜奖
亚太区室内设计大赛-优秀赛
中国国际室内设计双年奖-铜奖
家饰作品杰出设计师大赛-一等奖
中国工艺美术作品展-金奖
中国工艺美术作品展-金奖
客服
消息
收藏
下载
最近







































