查看完整案例


收藏

下载
00000 现代简约 守护家园,幸福触手可及
人世间最伟大的爱是父母的爱,所有父母都会对孩子有着无私的爱,这是人类的天性。本案为了孩子玩耍拆除了一间卧室。
案例介绍:
案例名称:佛山绿城桂语兰庭
案例面积:145m²
案例户型:平层
设计风格:现代简约
案例地址:广东佛山禅城
主案设计:张依
设计公司:佛山市东成至盛装饰有限公司
施工公司:佛山市东成至盛装饰有限公司
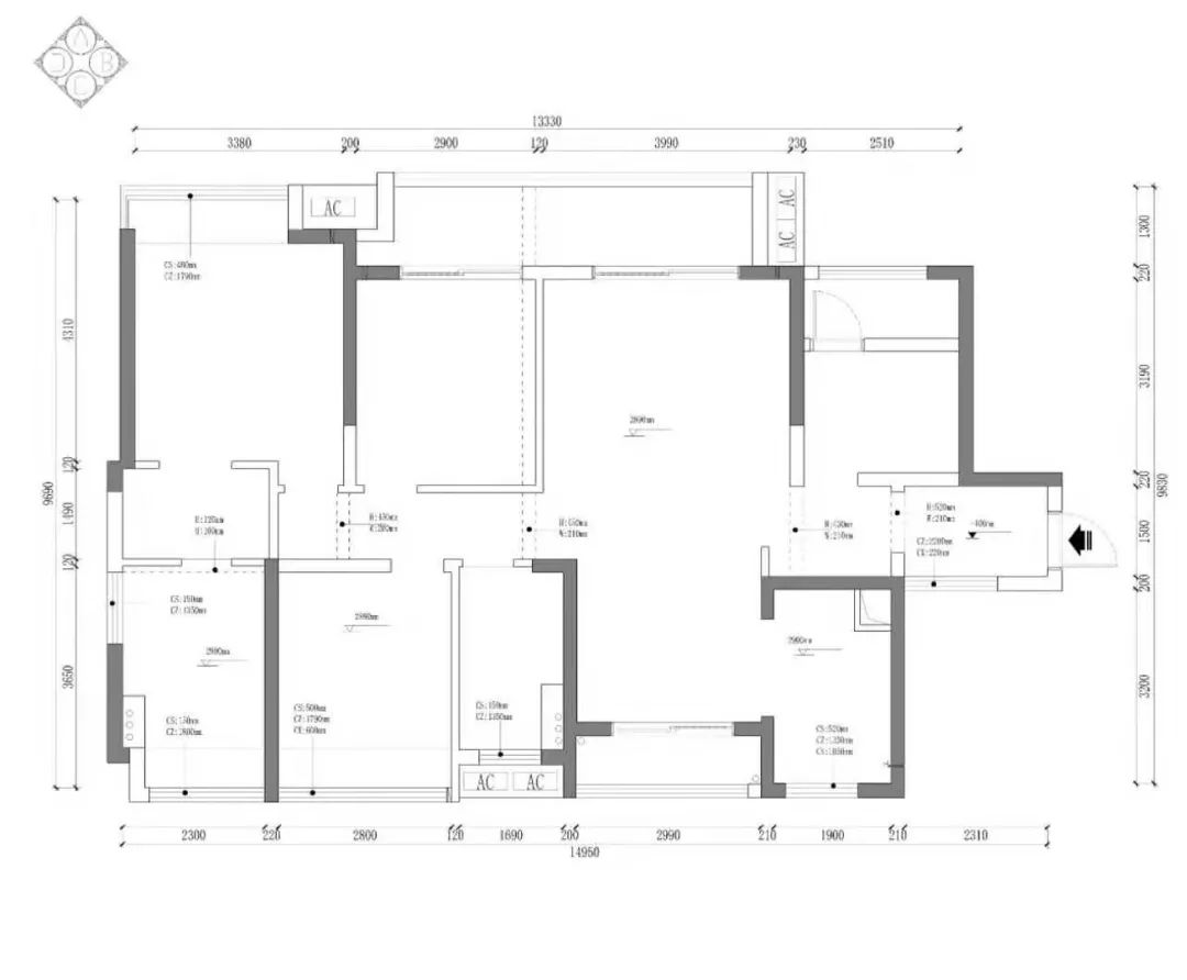
▲原始结构图
▲平面布置图
客厅
为了等孩子长大后可以在家里骑车玩耍,新手爸爸妈妈决定拆除一间卧室,扩大客厅的面积,让孩子有更多的活动空间。
爸爸妈妈坐在沙发上双目紧盯着孩子。活泼可爱的宝宝骑着车围着父母撒欢。在父母的陪伴下长大,这或许就是最幸福的童年吧。
餐厅
家就像一面镜子,映照出人们对生活的心态。餐厅以高级灰为主调,搭配暖色的暗藏灯光,在精致细腻又奢华的品味中,为生活谱上一段柔美乐曲。厨房
厨房白底大理石纹墙面搭配素净的白色橱柜,将厨房规划得井然有序,视觉上显得格外的温馨,幸福的欢声笑语仿佛就在耳畔。主卧
无主灯设计营造安静的空间气氛,温馨的气息布满整个休憩之所,靠着抱枕坐卧在飘窗上欣赏美景,与良人共度日出日落,坐看云卷云舒。洗手间
圆形镜增强了视觉上的设计感,暖光灯使得环境更加温馨。洗手间纯净的白色,搭配着墙面的浅调灰色,营造出简约大气的氛围。走廊。
浑然天成的大理石纹地面,让空间更加简约大气。通透明亮的光泽感,衬出时尚高级的生活氛围。高级黑灰,玄关。
玄关大方简约,科技感自然呈现,灯光布置新颖,营造宽阔的玄关空间。
滑动查看更多实景图
打破界限的布局
现代简约的色调
宽敞明亮的空间
将居住者对孩子的爱护、对现代风格的喜爱融入到设计思维之中,紧跟时代蝶变,用设计凸显人居质感。
客服
消息
收藏
下载
最近























