查看完整案例

收藏

下载
项目位于泉州石狮市灵秀镇创业园一路,东临屏山,紧邻石狮市外西环路。
The project is located on the First Road of Pioneer Park, Lingxiu Town, Shishi City, Quanzhou. It faces Pingshan Mountain in the east and is close to the Waixi Ring Road in Shishi City.
现场图
Site map
概念 |
Concept
运用闽南传统建筑元素结合产品裁剪手法,强化企业的独特性,诠释属于比裕服饰的企业美学。
在传统品牌和时尚品牌之间以元素为基础,打破结构,重述基因的跨界。
The use of traditional southern Fujian architectural elements combined with product tailoring techniques strengthens the uniqueness of the company and interprets Huafei's corporate aesthetics. Between traditional brands and fashion brands, based on elements, break the structure and restate the crossover of genes.
效果图 |
Effect picture
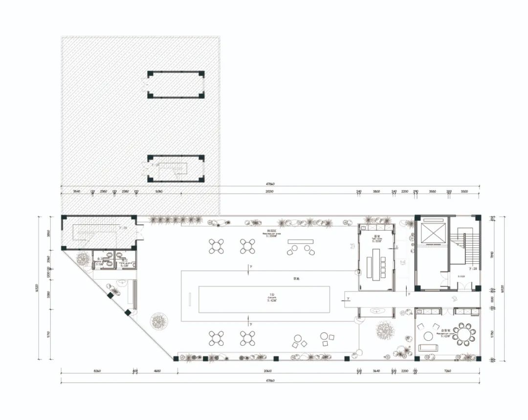
一层庭院
Courtyard
前厅
Lobby
前台接待区
Reception area
过道
Aisle
办公区
Office area
斜线打破了原空间的刻板审美,活跃了严肃的空间氛围,也带来了极富张力的内部空间。通过多层次的光线整理、纯粹明快的建筑材料、变化丰富的空间尺度、细腻的材质肌理使之与整个场所的精神气质相互呼应。
The oblique line breaks the stereotyped aesthetic of the original space, activates the serious space atmosphere, and also brings a strong internal space. Through multi-level light finishing, pure and bright building materials, varied spatial scales, and delicate textures, it echoes the spiritual temperament of the entire place.
休息区
Rest area
过道
Aisle
公共过道
Public aisle
过道
Aisle
董事长室
Chairman's Room
副总办公室
Deputy General Office
洽谈室
Negotiation room
会议室
Meeting room
卫生间
Toilet
楼梯间
Stairwell
剖析服装与建筑这两个都拥有“人类肌肤延伸”社会属性的艺术类别,不难发现其背后总会存在许多相互冲突而又密切关联的词汇:工业与自然、机器与手工、私密与裸露、窥探与掩饰等等。
Analyzing the two art categories of clothing and architecture that have the social attribute of "human skin extension", it is not difficult to find that there are always many conflicting and closely related vocabulary behind them: industry and nature, machine and handwork, privacy and nudity, Spy and cover up and so on.
裁剪车间
Cutting workshop
屋顶花园
Roof garden
入口处
Entrance
会客室
Reception room
过道
Aisle
茶室
Tea room
休闲空间
Leisure space
卫生间
Toilet
商业空间实践,不仅限于场地本身,而是希望通过这个空间的表达,引发对“新时尚”以及时尚背后企业独特性的思考和讨论。
The practice of commercial space is not limited to the venue itself, but hopes that through the expression of this space, it will trigger thinking and discussion about the "new fashion" and the uniqueness of the enterprise behind the fashion.
项目概况
Project Overview
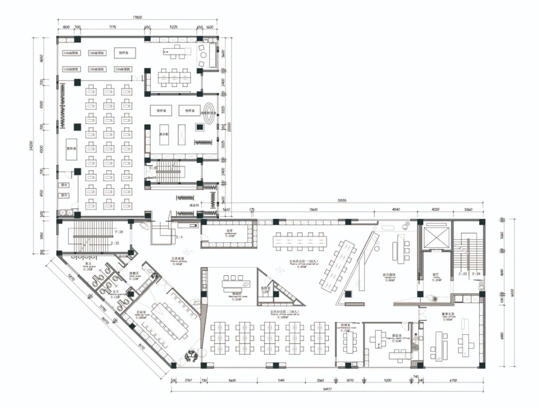
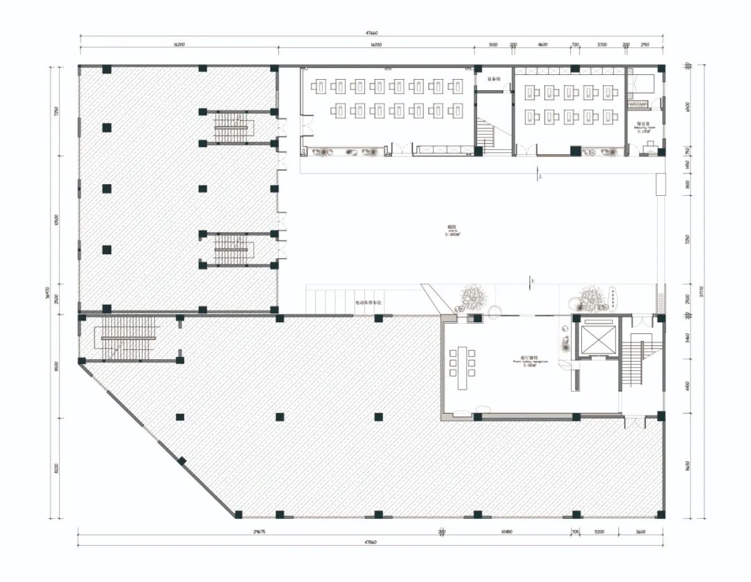
平面布置图
Layout plan
项目名称 | 石狮比裕服饰办公总部
项目地址 | 泉州石狮市
项目类型 | 办公空间
项目材料 | 老石头 水磨石 红砖
设计面积 | 2200 ㎡
设计公司 | 莫逆空间设计
客服
消息
收藏
下载
最近


































































