查看完整案例


收藏

下载
MOON DESIGN STUDIO
本案坐落于金鸡湖南岸,小区营造的尊贵与湖的恬淡是这里生活的本源。原建筑多露台,在此基础上,设计将原本 369 平的别墅扩展到 430 平,让新家成为奢阔的现代主义新居。
落成后的新家空间布局合理,回归生活与居住的本源;通透明净的奶白色基调将现代的高级与简约宁静发挥得淋漓尽致,为新生活拉开时尚精致的序幕。
∥
项目信息
Information
作品名称 NAME|回归
项目地址 LACATION|苏州仁恒观棠
建筑面积 AREA|430 平
竣工时间 COMPLETED|2020 年 4 月
原创设计师 ORIGINALDESIGHNER|陶丽萍
参与设计师 PARTICIPATINGDESIGHNER|陶丽萍
设计公司 COMPANY|苏州月和设计
“家的温度
Warm Space
“回家”是一个美好的词汇,艺术气息浓厚的玄关将这份美好放大数倍。
法国知名设计品牌 Ibride 的动物书架,发挥了品牌观赏与功能兼备的特点,简约的设计,流畅的线条,与空间的大气柔和十分契合。
奶油冰淇淋白的色调赋予空间静谧的基调和高级感,带来清爽大气的视觉体验。米色的真皮沙发、蓝色的抽象画、经典的钓鱼灯,这些元素和谐统一在空间基调中,用不同的美为未来生活拉开序幕。
猫咪灯具是意大利轻奢品牌 Seletti 的动物系列作品,灵活利用自然元素,有趣可爱,让创意为生活锦上添花。与玄关的元素遥相呼应,于夜晚点亮空间。
镂空楼梯与墙面一起,组成轻灵而浪漫的黑白琴键,踏上楼梯的每一步,都是组成优美旋律的音符。线性灯被嵌入扶手,照亮这份优雅美丽。
逢年过节与纪念日,三餐最能体现仪式感,餐厅的设计便凸显了这种仪式感。吊灯简单不失华丽,高档厨电彰显品位格调。
意大利顶级品牌 Molteni&C 的 Arc 餐桌拥有帐篷一般的支架,线条灵动流畅,设计感十足,荣获过多项大奖,低调简约精致,代表了屋主人对生活的要求。
“温柔良夜
GentleNight”
素净的色调诉说空间的静谧柔和,简单雅致的卧室让休息变得更纯粹。窗外流转的风情雨雪,都是空间天然的装饰画。
休息空间采用无主灯设计,开阔放松;灰白色调温柔,带来内心的平静;金属的精致,木质的温润,为空间的细节与质感增色。Ligne Roset 追求舒适的品牌理念与业主的生活观不谋而合,用简约舒服的设计诠释生活本身。
主色调的高雅浸润整个空间,打造清爽有格调的衣帽间。衣柜有着精细合理的布局,实用美观,充分发挥完美收纳的功能。大落地窗让自然光为空间镀上最美滤镜。
“以诗为用,以用为诗”。卫生间既有强大的功能,又有满满的情调。
双台盆黑白交错,优雅精致,同时保证生活的便利程度。
设计感的百叶窗与浴缸是绝配,拉满日常的幸福感与仪式感。
“写意时光 Good Times”
步入二楼就进入一方悠闲空间。玄关灯如同暖洋洋的小太阳,提升空间的居住温度。
繁忙的生活需要浮生半日闲,喝茶闲聊,享受时光静好。法国的高端设计品牌 Ligne Roset 的 Bloom 灯如其名,如花般绽放;流动的线条感与家具行业的“甜心”Moroso 品牌的沙发相互呼应,打造了艺术、复古、优雅的慢生活场地;让美好沾染生活每一个小日常。
书房是包罗世间万象的空间,有着相应的开阔与明朗。玻璃墙体连通外界,扩展视觉体验。
沙发同样是 Ligne Roset 经久不衰的款式,大胆的红色与空间的黑色碰撞,塑造经典耐看时尚感。
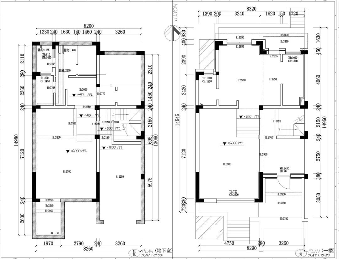
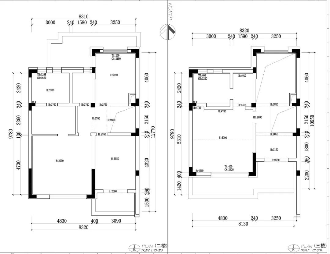
建筑应该保持沉默,让光线与风为建筑表达。地下室借用充裕的自然光,让舒适成为空间的最大特点。层层递进的台阶,恰如其分的艺术装饰,让影音区有了应有的仪式感。宽大的沙发提供了家的舒适与自在。摒弃形式与繁杂,不用外物禁锢,生活才会回馈你最真实、最简单的美好。原始结构图▽
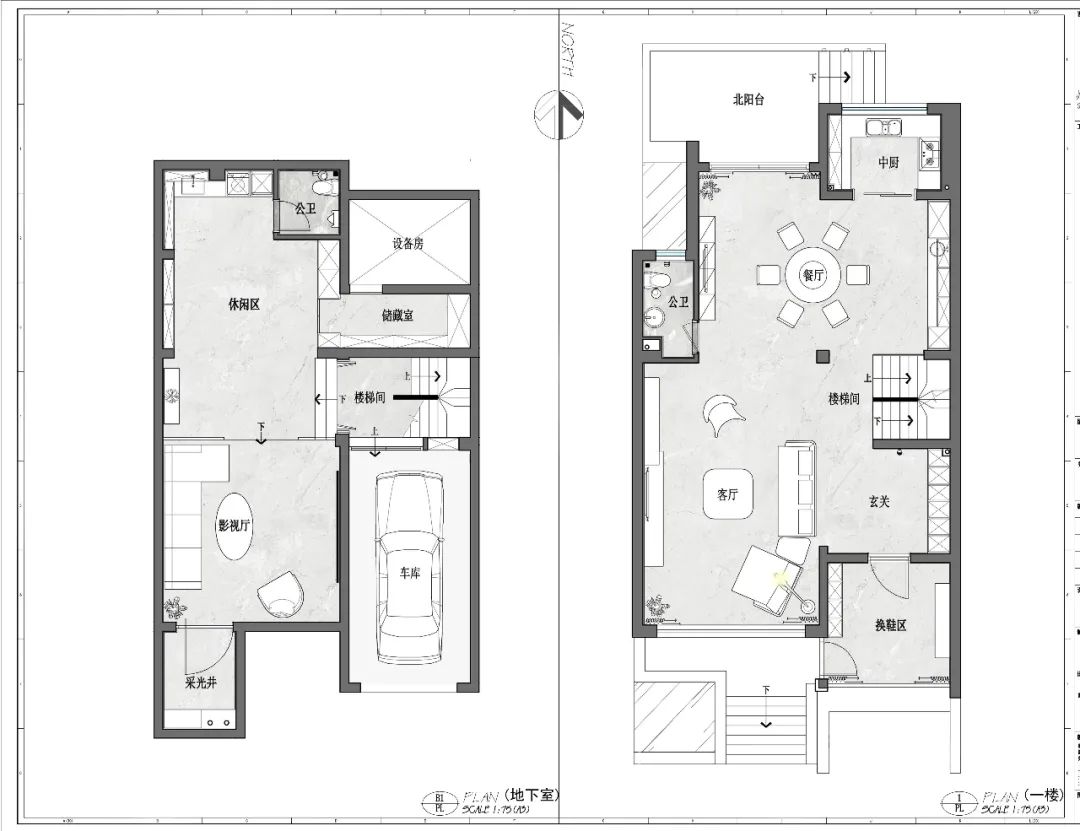
平面布置图▽
END
主要材料:
Main Materials
AXENT 卫浴、本杰明涂料、进口蜜蜂砖、拉丘那橱柜、HARO 地板、M77 全屋定制、星光智能影音、无主灯设计(除餐厅主灯)、CIVRO 大落地玻璃门窗、ULIVING 家具饰品
设计总监:陶丽萍
设计总监:陶丽萍(Ci Ci)(曾用名陶玥颖)
IP:苏州市工业园区金浦路 9 号设计小镇 J 栋 109
客服
消息
收藏
下载
最近












































