查看完整案例


收藏

下载
木白之间,自然恬静。
温暖质朴,岁月如歌。
绿意坠入,春日浪漫。
木白之间,融入甜味的糖果色调,温柔俏皮,元气满满。极简流线型的设计,佐以布艺、麻棉、草编质感,描绘出一幅自然恬静的生活画卷。见晨光微熹,看星光降落,空灵之间,随心参悟日式禅意。
木白色主基调,治愈系家居风。置一条长长的原木餐桌,于清透的光影之中,轻嗅自然芳香,感受生活温度。
厨房延续了极简质感,上下双色橱柜更添时尚气息。柴米油盐酱醋茶,食人间烟火,品人生百味。
一半书房,一半画室,以一张清新原木桌和谐交融,温暖质朴,岁月如歌。
卧室简雅清新,被原木风温柔包裹,目之所及,宁静如诗。一抹绿意坠入梦境,采撷春日浪漫。
木光森林,蔚蓝大海,步入玄关,扑面而来的自然气息,沁人心脾。
流畅的线性设计,勾勒现代家居之美。各色材质轻盈错落,光泽流转。
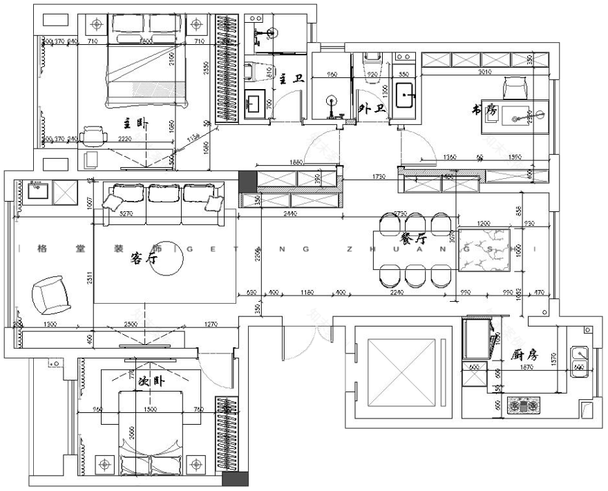
△平面图
项目地址|振兴家园二区
设计主题|日式风格
项目面积|109㎡
设计大咖|杨波
项目经理|郑云
主要用材|石材 木材 布艺 棉麻 草编 玻璃等
衢州总公司:衢州西区财富中心3号楼2层
龙游分公司:龙游龙翔路443-449号
常山分公司:常山县东方广场紫港街道琴雅路50号
江山分公司:江山市锦绣大道东方广场8号二楼
开化分公司:开化县金佰汇广场2幢2楼239-243号
客服
消息
收藏
下载
最近








































