查看完整案例


收藏

下载
寅虎 盛夏 Tiger Summer 题名之由 寓意深远
项目简介
Description du projet
项目地址 / Adresse du projet:大唐家园-二区
设计主题 / Thème de conception:现代极简
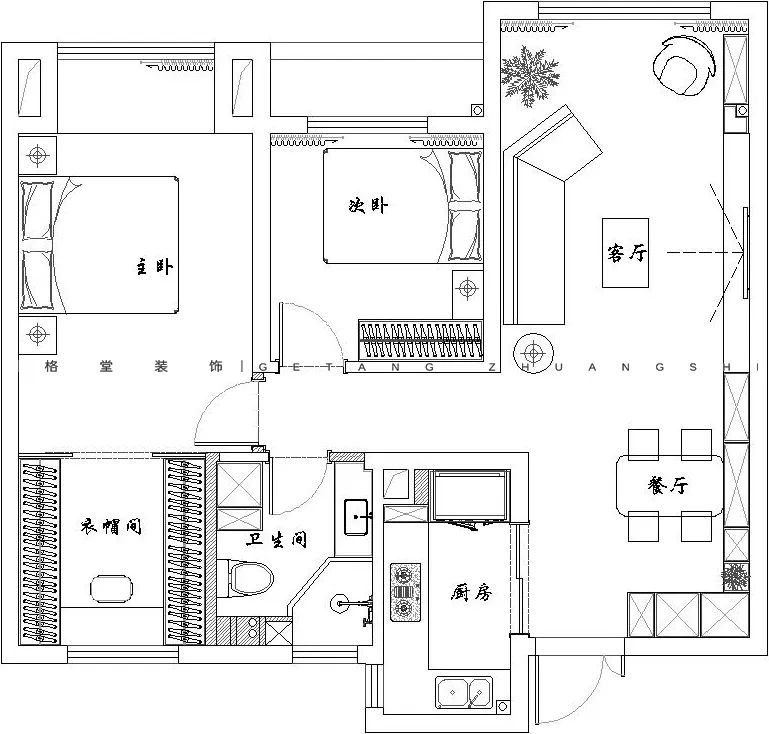
项目面积 / Zone du projet:78㎡
设计大咖 / Chief Designer:杨波
项目经理 / Project Manager:周远华
主要用材 / Principaux matériaux:石材 皮革 布艺 玻璃 亚克力等
十二生肖之寅虎
喜择本命年开工
以吾之夏姓
定完工之期
故题名为寅夏
寓意既深且远
Yinhu du zodiaque 12
Début de l’année de vie
Je m’appelle Xia
Date d’achèvement prévue
Il s’appelle Yin Xia
Le sens est profond et lointain
Salon
客厅 • 知性优雅
黑白
灰
铺叙知性优雅气度,极简线条交织软糯质感,慵懒治愈。
垂坠一盏艺术光影,现代美学氛围款款而来。
Noir et blanc gris épandage de l’élégance intellectuelle, lignes minimalistes entrelacées avec la texture collante douce, paresseux guérir. Pendez une ombre d’art, l’atmosphère esthétique moderne vient. Le restaurant 餐厅• 灰调糅合 细节生脉络,客餐厅一体化设计,绝妙扩容空间魅力。不同层次的灰调糅合优雅情境,材质艺术碰撞,光影穿透晕染,尽显现代潮流风范。
Détails, conception intégrée de la salle à manger, charme de l’espace magnifiquement élargi. Différents niveaux de gris mélangent des situations élégantes, des matériaux et des arts entrent en collision, la lumière et l’ombre pénètrent la teinture halo, montrant le style de mode moderne.
Cuisine
厨房• 细腻质感
中性色厨房极简优雅,线型灯一字点亮烹饪的仪式感。
在有限的空间内深化功能布局,质感细腻,动线流畅。
La cuisine neutre est très simple et élégante, et les lumières linéaires illuminent le sens rituel de la cuisine. Approfondir la disposition fonctionnelle dans un espace limité, avec une texture délicate et une ligne de mouvement lisse.
Chambre principale
主卧• 葳蕤生香
主卧简雅不凡,质感纯粹。
巨幅的后现代轻奢装饰画跃然于眼前,那缕缕风情,柔美绽放,葳蕤生香。
La Chambre principale est simple et élégante, avec une texture pure. De grandes peintures décoratives postmodernes légères et luxueuses sont soudainement apparues devant nous, avec des brins de saveur, de douceur et de parfum.
Vestiaire
衣帽间• 利落优雅
独
立式
衣帽间,利落优雅,细品秩序之美。
流光倒影,浪漫如诗,镜前描眉梳妆,悦享品质生活。
Vestiaire indépendant, élégant et élégant, belle commande fine. Reflets de lumière, romantique comme la poésie, le miroir pour dessiner les sourcils et se maquiller, profiter d’une vie de qualité.
Garde interne
主卫 • 隐逸奢华
光影浪漫交错,高级灰优雅铺陈。各色材质肌理碰撞交融,凝练隐逸奢华气度。
La lumière et l’ombre sont entrelacées romantiquement, avec une élégance grise avancée. La texture de toutes les couleurs se heurte et se mélange pour créer un sentiment de luxe isolé.
Xiaojing
小景• 光影浪漫
十二生肖之寅虎,喜择本命年开工。以吾之夏姓,定完工之期。故题名为寅夏,寓意既深且远。
Yinhu du zodiaque 12,Début de l’année de vie.Je m’appelle Xia,Date d’achèvement prévue.Il s’appelle Yin Xia,Le sens est profond et lointain.Plan
衢州总公司:衢州西区财富中心 3 号楼 2 层
龙游分公司:龙游龙翔路 443-449 号
常山分公司:常山县东方广场紫港街道琴雅路 50 号
江山分公司:江山市锦绣大道东方广场 8 号二楼
开化分公司:开化县金佰汇广场 2 幢 2 楼 239-243 号
客服
消息
收藏
下载
最近

































