查看完整案例


收藏

下载
Sweet Romance
忠于自己
热爱生活
每一刻的浪漫情节
都值得纪念
PROJECT OVERVIEW:
— 项 目 简 介 —
项目地址:观棠府
设计主题:现代简约
项目面积:125㎡
设计大咖:毛阿敏
项目经理:周洪标
主要用材:乳胶漆 岩板 木材 布艺 皮革等
0
1
▶Living Room◀
至简至美
纯净灰调
利落的线条描摹现代美学
岩板、木材、布艺等潮流元素
糅合温情浪漫的灯光
演绎知性优雅的格调生活
0
2
▶Dining Room◀
清雅的白交叠内敛的灰
石材的冷冽相遇皮革的质感
装饰趣意缠绕的线型灯
再缀一束纯白桔梗
流淌着现代浪漫
0
3
▶Kitchen Room◀
灰白主调的厨房
深浅木色橱柜带来视觉上的跃动感
彰显独特魅力
0
4
▶Master Bedroom◀
灰色基底的空间沉稳优雅,深棕皮革家具增添了一抹时尚质感,艺术感雕琢的网红玻璃吊灯,靓丽的爱马仕橙装饰,满载浪漫的生活情调。
0
5
▶Second Bedroom◀
榻榻米与书桌的一体化设计
打造实用性与舒适度并存的空间
清晰的木纹散发着大自然的气息
0
6
▶ Children Bedroom ◀
儿童房简约明亮
蓝色系的卡通四件套
趣味可爱的收纳盒
汽车飞机等各色玩具
陪伴宝贝快乐成长
0
7
▶
Hallway
◀
推门而入
沐浴在光束下的爱马仕橙艺术画
绽放着火焰一般的热情和美感
0
8
▶EnsuiteBathroom◀
灰色系卫生间利落优雅。金属元素时尚点缀,营造独特美感。0 9 ▶Little Scenery◀
Sweet Romance
忠于自己
热爱生活
每一刻的浪漫情节
都值得纪念
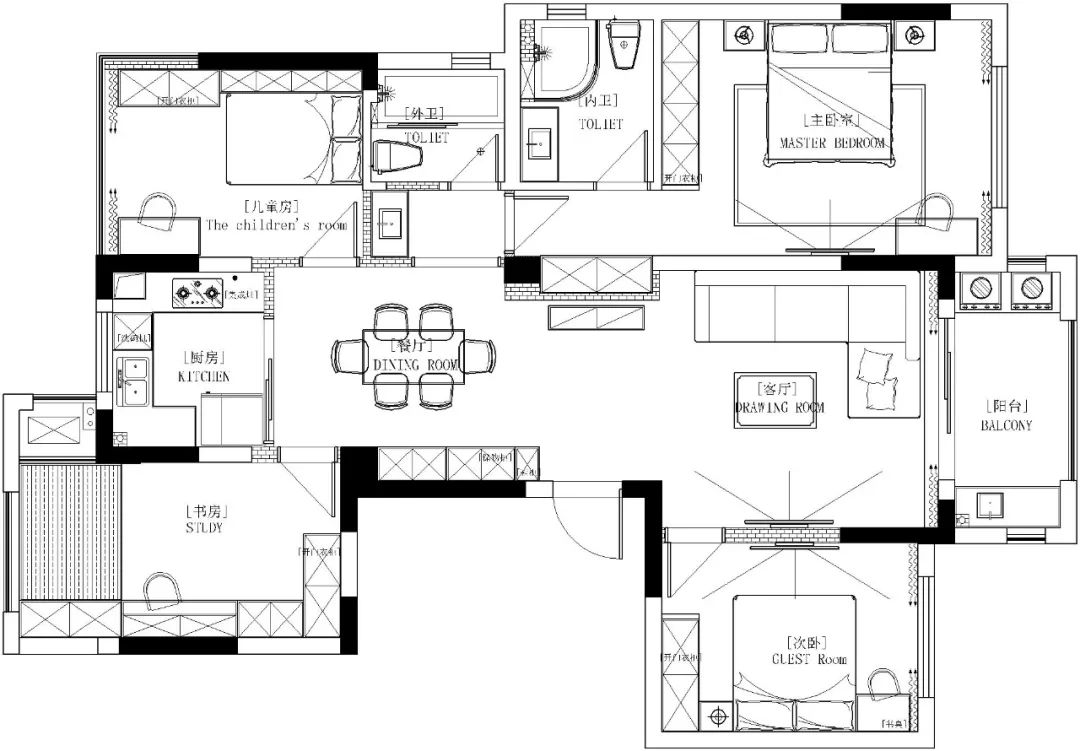
10▶Plan◀
往期精彩回顾
点击图片进入阅读
生活本色—现代极简
潮流共生—现代风
构筑生活—后现代
恰春风—现代风
高技派现代风—现代风格
乐动文雅—现代简约
拾光留声—现代极简
艺术觉醒—现代简约
衢州总公司:衢州西区财富中心 3 号楼 2 层
龙游分公司:龙游龙翔路 443-449 号
常山分公司:常山县东方广场紫港街道琴雅路 50 号
江山分公司:江山市锦绣大道东方广场 8 号二楼
开化分公司:开化县金佰汇广场 2 幢 2 楼 239-243 号
客服
消息
收藏
下载
最近














































