查看完整案例


收藏

下载
大理石、皮革等多元材质糅合成景
一抹爱马仕橙惊艳时光
呈现优雅纯粹的艺术空间
客厅
Living Room
客厅以灰白斜纹大理石搭配皮质为主调,天然大理石独特的艺术纹理呈现自然之美。优雅的深蓝皮沙发,赋予空间沉稳气质,自然舒适。靓丽的爱马仕橙成为视觉焦点,绽放着火焰一般的热情和美感。明媚的阳光蹁跹流淌,营造质感通透的家居生活。
茶室
Tearoom
深黑的家具成就了茶室的稳重典雅,烹茶会友,淡然品茗,让心境与时光慢下脚步。爱马仕橙的个性儿童休闲区就在茶室旁边,方便照看小宝贝,色彩绚烂张扬,透出满满的朝气与活力。
餐厅
Dining Room
黑色金边的圆形餐桌,搭配灰橙双色的皮质餐椅,展现生活的质感与品位。清雅的花束带来一丝甜美浪漫,家人们围坐在一起品尝美食,是幸福的滋味。
棋牌室
Cards Room
一张高档简约的棋牌桌,带来美好的休闲时光,可以坐这里品酒聊天,趣味盎然。深灰的时尚定制酒柜彰显摩登气质,美丽的灯带透过玻璃渲染出动人光影,品味生活的高雅格调。
厨房
Kitchen Room
厨房灰与白的色调发挥到极致,个性肌理的墙砖带来一丝灵动飘逸,双色橱柜营造视觉上的层次感,低调而雅致,充满时尚美感。中央岛台的设计完美增进了家人感情,互动交流增强,其乐融融。
主卧
Master Bedroom
浅木色的木饰面组合墨绿色的硬包,温润而清新,每一寸空间都流淌着勃勃生机,尽情拥抱大自然的温暖。
次卧
Second Bedroom
粉色的主色调营造温婉甜美的家居风范,米色系家具简洁舒适,整个空间流淌着温馨和雅致。
书房
Study
灰橙双色的定制书柜彰显时尚格调,触感细腻温润。暖白的灯带投射到灰玻上,折射出美丽光影。慵懒的周末与假期,赠与自己独处的静谧时刻,享受生活的热爱。
衣帽间
Cloakroom
宽敞的步入式衣帽间,集收纳展示于一体,尽显利落优雅。清雅的浅灰与靓丽的橙色形成鲜明对比,灰玻的融入质感十足,提升生活格调,于活力中散发优雅。
楼梯
Staircase
个性舒适的木板楼梯,一路铺陈而上,带来视觉上的延伸感,简雅大气。垂挂的雨滴吊灯,恰如漫天星光洒落,迷人而浪漫。各色的精美装饰画,提升了空间的非凡气度。
主卫
Ensuite Bathroom
灰色系空间尽显优雅气度,搭配深黑木质浴室柜,点缀金属元素,展现轻奢精致的时尚态度。一幅Q版的玛丽莲梦露装饰画可爱非常,成为空间里的点睛之笔,令人陶醉。
小景
Little Scenery
顶级现代,惊艳时光。
平面图
Plan
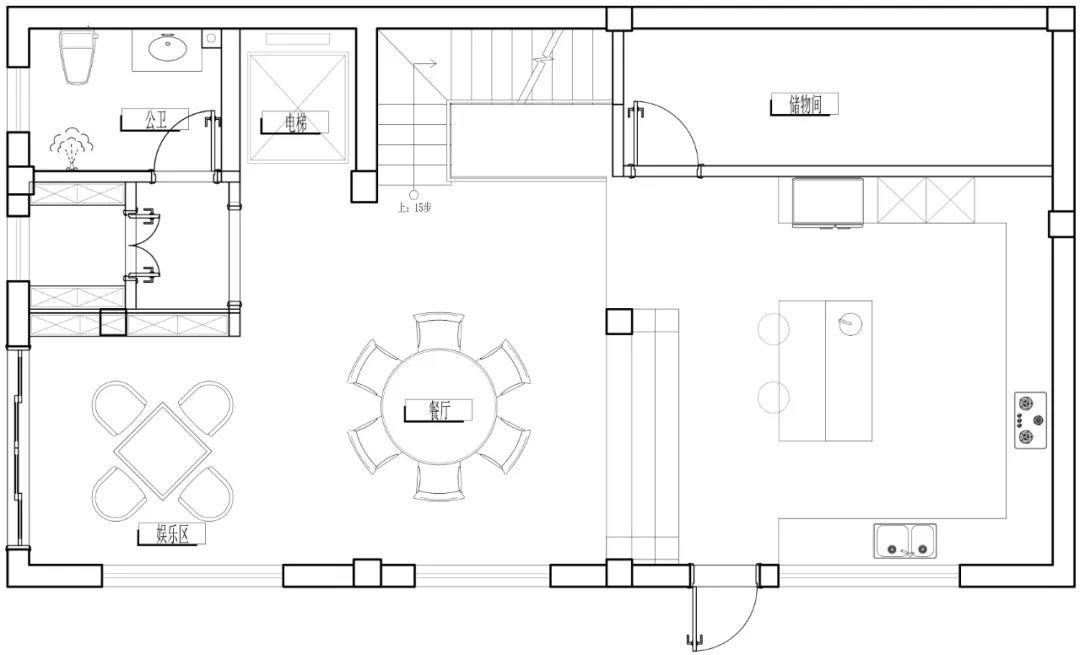
△负一层平面
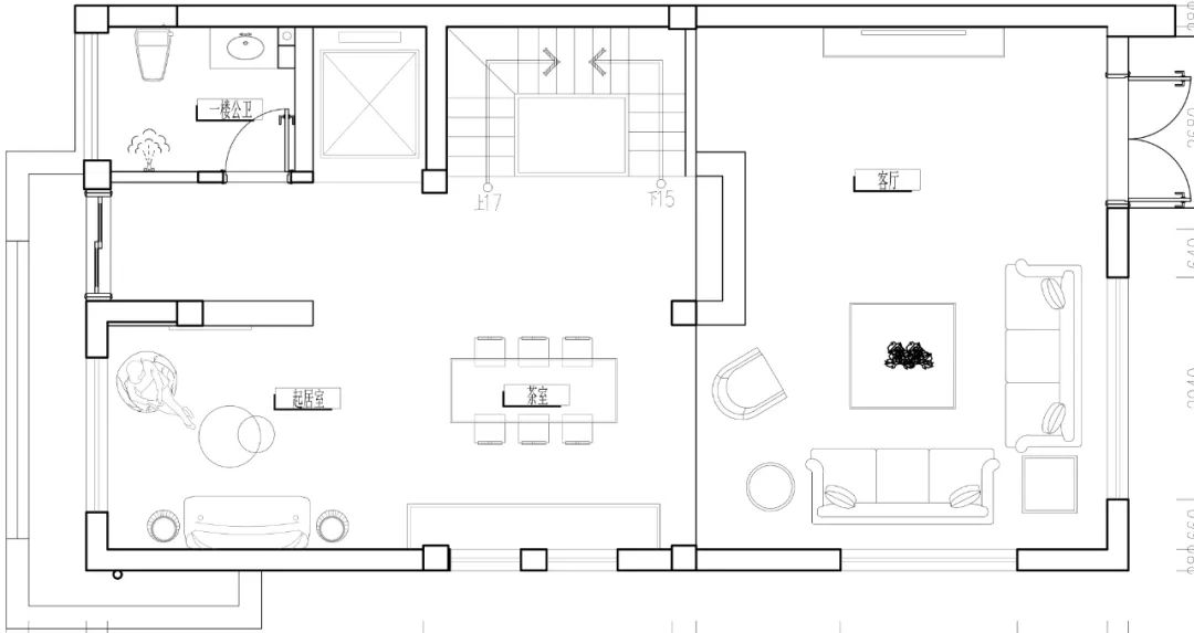
△一层平面
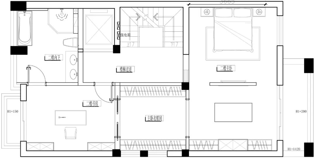
△二层平面
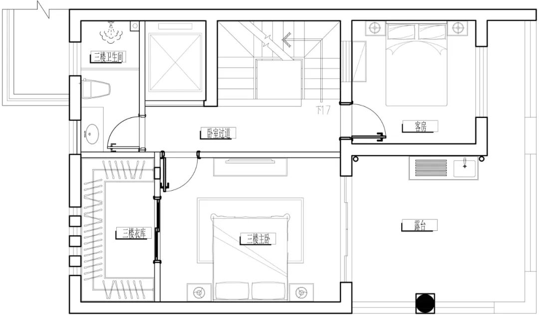
△三层平面
格堂设计 / 项目信息
项目地址 / 上林名墅5#
户型面积 / 360㎡
设计主题 / 现代风格
装饰公司 / 格堂装饰
设计大咖 / 周书实
周书实
Zhou Shushi
格堂装饰 / 品牌荣誉
2012年
衢州晚报家居俱乐部“顾问团”单位
荣获2012年度观众最喜爱家装设计奖
2013年
衢州市值得信赖的家装公司
2012-2013年
衢州市区家装行业2012-2013年度骨干企业
2014年
衢州市区2014年度诚信装饰公司
衢州市区绿色装修首批倡导单位
2015年
衢州市装饰行业2015年最佳设计单位
衢州市2015年绿色装饰装修示范单位
2016年
衢州市诚信装修公司
2017年
衢州市最美家装施工单位
荣获2017年度浙江地区全效达人奖
2018年
衢州市家装消费放心单位
2019年
衢州市家装消费信用单位
荣获2019年度浙江地区优胜奖、网络人气奖
2020年
荣获2020年G+设计精英大赛别墅空间优胜奖
客服
消息
收藏
下载
最近






































