查看完整案例


收藏

下载
此片查找的关键词:
中梁首府 · 陌上花开
# 案例信息 #
项目地址 | 中梁首府24#
户型面积 | 135㎡
设计主题 | 简美风格
主要用材 | 文化石、石膏线、调色乳胶漆、瓷砖、地板
装饰公司 | 格堂装饰
全包费用预计 | 23万
项目经理 | 彭志华
本案设计师 | 王辉
设计师说 | 也许世界上也有五千朵和你一模一样的花,但只有你是我独一无二的玫瑰。
▼▼▼
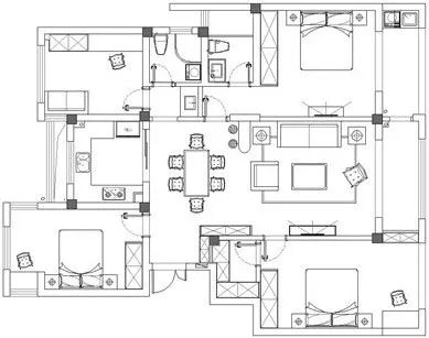
平面布置图
▼▼▼客厅
浅蓝色的沙发背景清新美丽,石膏线丰富了空间层次,精致时髦的装饰画成为点睛之笔。
黑色皮质沙发,搭配复古的千格鸟单人沙发,缤纷柔软的羽毛靠枕,空气中飘散着甜甜的味道。
纯白的文化石电视背景充满优雅质感,夜深打开幕布观赏影片,是向往的生活。
▼▼▼餐厅
餐厅选用吸睛的黄铜大理石餐桌,组合明黄色与祖母绿个性餐椅,带给人明媚好心情。
奶牛元素桌布,闪亮的荧光墙饰,都让空间充满趣味,流露出不经意的温柔。
▼▼▼厨房
经典的美式仿古砖铺贴出温馨空间,素白的U字型橱柜清新典雅,带来美好的烹饪体验。
▼▼▼卧室
卧室的气质清透又温柔,明亮的阳光穿透纱帘,微风浮动,正是美好的休闲时光。
▼▼▼手工室
量身定做的手工室,高贵典雅的祖母绿配色,流淌着复古浪漫。
温柔的白色羽毛灯,充满少女仙气,成为空间里的点睛之笔。
▼▼▼玄关
白色玄关清新纯净,可爱的白猫装饰画,二次元黑白挂钟,精致黄铜落地镜,让空间充满了生活情趣。
▼▼▼卫生间
卫生间干湿分离设计,跃动的米色墙砖带来独特的视觉享受,搭配优雅的白色系浴室柜和浴缸,营造美好的卫浴体验。
▼▼▼软装搭配
也许世界上也有五千朵和你一模一样的花,但只有你是我独一无二的玫瑰。
格堂贺岁大片连续放映,记住此片查找的关键词:
中梁首府 · 陌上花开!
客服
消息
收藏
下载
最近

























