查看完整案例


收藏

下载
此片查找的关键词:
郁金香郡 · 闲适雅居
# 案例信息 #
项目地址 | 郁金香郡16#
户型面积 | 151㎡
设计主题 | 新中式
主要用材 | 不锈钢、壁画硬包、壁画墙布、实木饰面、文化石、马赛克、瓷砖、地板
装饰公司 | 格堂装饰
半包费用预计 | 16万
项目经理 | 彭志华
本案设计师 | 胡小娟
设计师说 | 游走在传统与现代之间,唤起内心深藏的中式情结,彰显着一种独一无二的审美境界。
▼▼▼
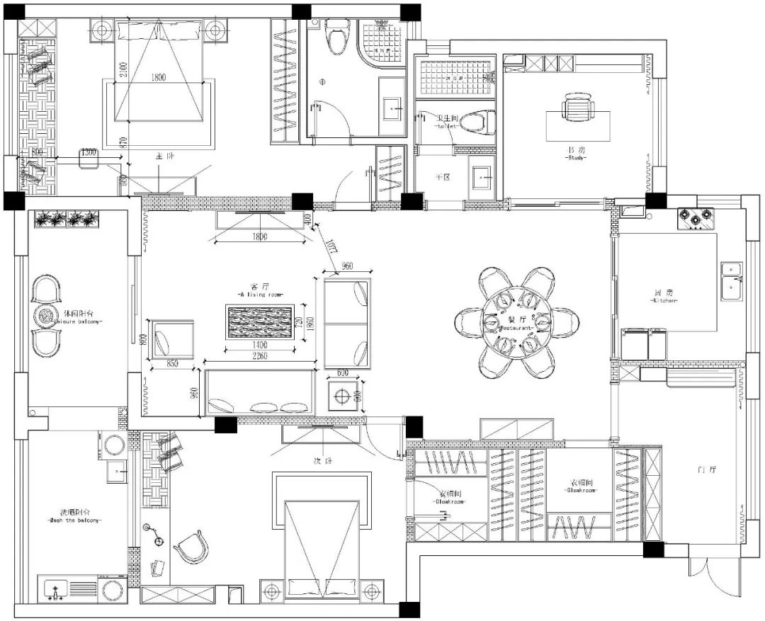
平面布置图
▼▼▼客厅
客厅中式风与现代风相互糅合,营造出极富意境的雅致空间。
清雅的渐变蓝山水背景,镶嵌黑色不锈钢条,带来独特的透视感,别有一番雅趣。
电视背景是泼墨纹理的大理石组合木纹护墙,营造丰富的视觉层次。
高档的新中式家具,时尚个性的叠层方形吊灯,倾诉着新中式美学,是一种文化和情韵的沉淀。
▼▼▼餐厅
餐厅一面水墨荷花的背景引人入胜,展现出浓郁的中式清韵。
时尚雅致的新中式家具,一抹蓝色点睛,美观而有格调。
明媚的灯光让就餐空间更加温馨,家人们围圆桌而坐,共度美好时光。
▼▼▼厨房
深色系的橱柜沉稳大气,清晰的木纹带来大自然的气息,丰富的收纳空间,让空间更加整洁明朗。
▼▼▼主卧
主卧静雅祥和,床头一幅深蓝花鸟画吸引视线,充满东方诗意,让人回归恬淡心境。
雅致的实木家具,透出淡淡的木香,恍若进入了森林,中式意境浮现,心旷神怡。
▼▼▼次卧
次卧布置休闲舒适,简约的黑色皮质大床,可爱柔软的卡通床品,还有一隅靠窗的学习小天地,这些优雅舒适的元素,营造出一个宁静的休憩空间。
▼▼▼书房
书房选用古朴的中式元素和现代风的利落线条,让中式与现代完美融合在一起,打造质感十足的书香氛围。
▼▼▼玄关
玄关灰色系质感地砖,展现优雅气度。
一侧高挑的深木色鞋柜,自然清新,收纳空间丰富。
端景处雅致的中式风落地鱼缸,增添了一抹灵动气韵。
▼▼▼阳台
阳台化身度假休闲胜地,充满个性的石砌鱼塘十分吸睛,郁郁葱葱的假山,可爱活泼的锦鲤,带来中式生活的诗情画意。
▼▼▼卫生间
内卫布局简约雅致,加长的木质浴室柜带来返朴归真的自然美,中间独特的黄铜置物架,提升轻奢格调。
▼▼▼软装搭配
游走在传统与现代之间,唤起内心深藏的中式情结,彰显着一种独一无二的审美境界。
格堂贺岁大片连续放映,记住此片查找的关键词:
郁金香郡 · 闲适雅居!
客服
消息
收藏
下载
最近































