查看完整案例


收藏

下载
项目地址
| 月亮湾沁园2#
户型面积
| 122㎡
设计风格
| 新中式
装饰公司
| 格堂装饰
半包费用预计
| 12.8万
项目经理
| 余德虎
本案设计师
| 郑春胜
设计师说
| 客厅运用了方正布局,以木质格栅作为电视背景装饰,和大理石材质碰撞出火花,展现了东方禅意之美。
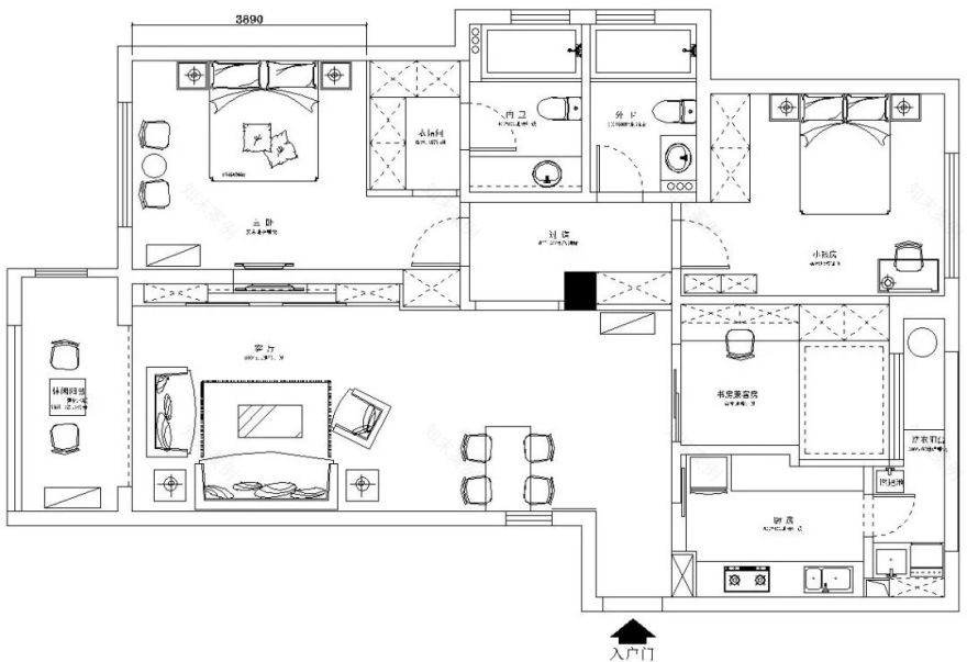
▼▼▼平面图
▼▼▼客厅
客厅运用了方正布局,以木质格栅作为电视背景装饰,和大理石材质碰撞出火花,展现了东方禅意之美。金色远山灵动浮现,客厅新中式的精美家具,融入静谧蓝和亮金色点缀,带来人文与自然的诗意。
舒适的榻榻米窗台,浅木色带来清新自然的气息,配以草编的蒲团、雅致的灯饰、轻柔的窗纱,休闲而浪漫。
▼▼▼ 餐厅
餐厅富有新中式的韵味,高档的实木餐桌搭配样式新颖的金色皮质餐椅,显得优雅而庄重。温馨的灯光、精致的餐具、美丽的装饰营造出沁人心脾的就餐氛围。
格力空调
▼▼▼厨房
一字型贯穿的厨房设计彰显个性,中间过道直通向阳台,白色橱柜与灰色瓷砖的搭配清新自然,带来美好的烹饪体验。
友邦集成吊顶
▼▼▼主卧
主卧将卧室、衣帽间、主卫的功能都集合在一起,设计成一个套房,更加实用舒适。温馨的色调,丰富的层次,时尚的壁灯,轻盈的家具,每一个细节都流露出主人对生活的审美和品位,优雅而从容。
▼▼▼ 儿童房
儿童房的设计以蓝、白、红配色为主,带来浓浓的英伦风情。舒适的家具,经典的英伦风元素,让孩子在休闲自在的氛围中释放个性。
▼▼▼ 主卫
暗色系卫生间格调高雅,独特的瓷砖肌理和细腻的光泽彰显时尚大气。智能化的家居,暖黄的灯带,搭配精美的台盆和装饰,带来独树一帜的新中式美。
▼▼▼玄关
视觉随着玄关延伸,端景台处的蓝色复古装饰柜与写意山水画的精美装饰,营造出东方特有的神韵。
▼▼▼过道
个性的白色谷仓门带来雅致的艺术感,兼具落地镜的功能可以整理梳妆。一盏华美的吊灯,一把中式休闲靠椅,温润了空间。
▼▼▼软装搭配
自古以来,文人雅士寄情山水,吟诗作画,我们仍然向往这种人文雅趣的生活方式。
格堂贺岁大片连续放映,记住此片查找的关键词:月亮湾沁园、将现代元素和传统元素结合!
客服
消息
收藏
下载
最近


























