查看完整案例


收藏

下载
项目地址
| 安居小区71#
户型面积
| 112㎡
设计风格
| 北欧风格
装饰公司
| 格堂装饰
全包费用预计
| 23万
项目经理
| 李金洪
本案设计师
| 郑春胜
设计师说
| 明亮地砖、浅蓝布艺沙发、原木家具、白色电视柜背景,冷硬与温柔,在缤纷色彩的点缀下,交织出美丽的平衡感。
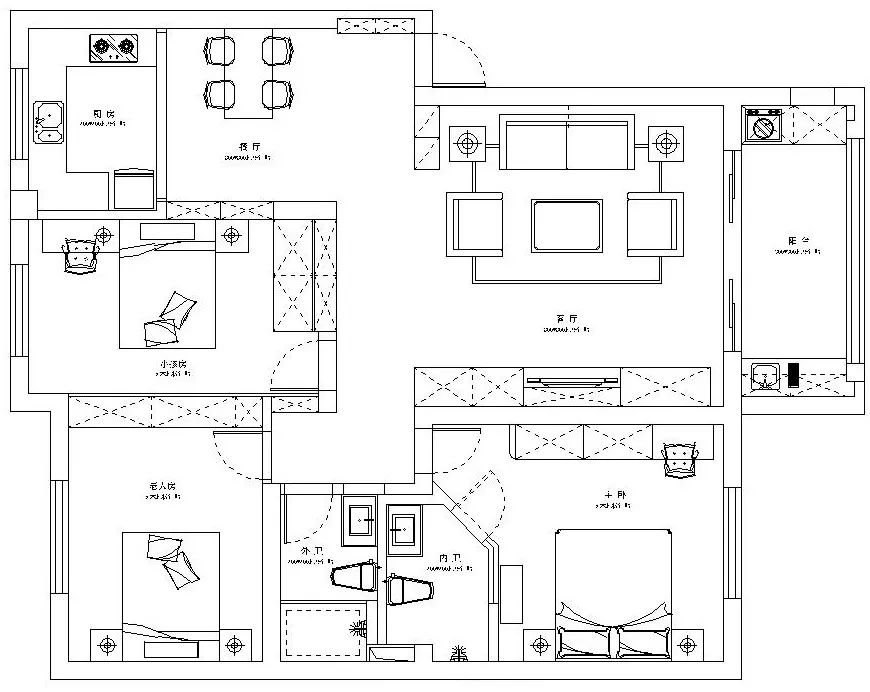
▼▼▼平面图
▼▼▼客厅
明亮地砖、浅蓝布艺沙发、原木家具、白色电视柜背景,冷硬与温柔,在缤纷色彩的点缀下,交织出美丽的平衡感。红火喜庆的气球,甜甜蜜蜜的婚纱照,成双成对的卡通公仔,都诉说着这一对新人幸福的爱情故事。
玛缇瓷砖
格力空调
▼▼▼ 餐厅
简约的灰色地砖,搭配自然的原木家具,经典的黑白格墙纸,丰富的纹理与材质,带来北欧的优雅质感。清新的绿植装饰其中,配上一盏黑色铁艺吊灯,简约纯净。
世友木门
▼▼▼厨房
厨房色彩素净,白色墙砖搭配经典的浅木色橱柜,干净而清新,大红的囍字高高挂起,带来甜蜜的新婚气息。
乐丽德橱柜
▼▼▼卧室
卧室以米色为基调,搭配清新的木色家具,带给人温馨放松的感觉。红艳喜庆的新婚床品,与火红靓丽的挂饰,演绎着浪漫迷人的新婚生活。
久盛地板
▼▼▼ 儿童房
上下铺满足了孩子爱玩的天性,趣味十足。原木色家具清新自然,搭配素雅的蓝色窗帘,营造安静的休憩空间。
▼▼▼ 卫生间
卫生间做了明确的干湿分离,清新的浅灰木纹砖带来大自然的气息,灰蓝色橱柜时尚典雅,给品质生活带来更美好的体验。
友邦集成吊顶
东鹏洁具
▼▼▼过道
明亮通透的过道,一幅静谧的蓝色大海挂画拉长了视线比例,美丽的盆栽装饰中间,清新怡人。
格堂贺岁大片连续放映,记住此片查找的关键词:安居小区、老房改造遇见不一样的美!
客服
消息
收藏
下载
最近














