查看完整案例


收藏

下载
项目地址
| 八角楼3#
户型面积
| 151㎡
设计风格
| 美式风格
装饰公司
| 格堂装饰
半包费用预计
| 13.3万
项目经理
| 刘永顺
本案设计师
| 郑春胜
设计师说
| 灰色布艺沙发、白色文化石背景、古朴的实木家具,让美式生活充满格调。浪漫的紫色成为空间里的点睛之笔,配以金属灯饰的点缀,营造温暖精致的生活。
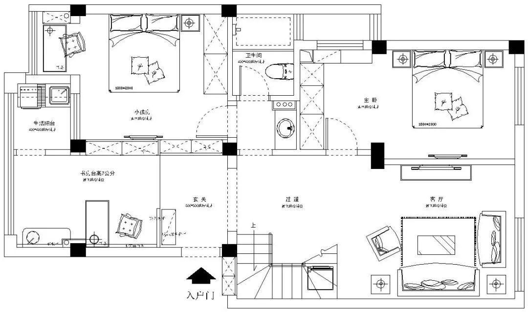
▼▼▼平面图
一层
二层
▼▼▼客厅
灰色布艺沙发、白色文化石背景、古朴的实木家具,让美式生活充满格调。浪漫的紫色成为空间里的点睛之笔,配以金属灯饰的点缀,营造温暖精致的生活。
格力空调
▼▼▼ 休闲区
原木色家具与白色收纳柜相互衬托,盈满宁静氛围,远离都市喧嚣,享受当下的惬意浪漫。
▼▼▼ 餐厅
仿古砖与古朴美式家具搭配,一盏经典风扇灯洒下柔和光芒,提升了空间格调。餐厅墙面配一幅明媚的向日葵装饰画,增添了浪漫的用餐氛围。
▼▼▼厨房
仿古砖和木质橱柜的搭配,展现出经典的美式风味,L型的橱柜更是充分利用了空间,简洁而舒适。
欧派橱柜
▼▼▼卧室
传统的美式床具烘托出经典的美式家居氛围。温馨的灯光,优雅的梳妆台,碎花的窗帘,营造一个浪漫休闲的休憩空间。
▼▼▼ 儿童房
马卡龙色系的上下铺床增加了活动的乐趣,床边摆放一架优雅的黑色钢琴,让孩子享受快乐的学习时光。
▼▼▼ 一楼卫生间
米色蓝色跳色的墙砖,与沉稳的木色浴室柜形成鲜明对比,斑斓的多边形吊灯折射出美丽的光影,有一种迷人的波西米亚风情。
▼▼▼ 二楼卫生间
白到极致,雅到极致的卫生间,设计简洁大方,干净而舒适。
东鹏洁具
▼▼▼玄关
独具个性的六边形地砖铺贴,外圈方形碎花砖装饰,清新美丽。玄关尽头一幅绿意盎然的油画,成为空间里的点睛之笔。
▼▼▼软装搭配
幸福不是刻意为之,把情怀融入设计,融于生活。
格堂贺岁大片连续放映,记住此片查找的关键词:八角楼、美式,生活处处有火花!
客服
消息
收藏
下载
最近





















