查看完整案例


收藏

下载
项目地址
| 新湖玫瑰园65#
户型面积
| 440㎡
设计风格
| 新古典
装饰公司
| 格堂装饰
半包费用预计
| 23万
项目经理
| 施申和
本案设计师
| 吕霞
设计师说
| 本案以新古典为基调,从整体到局部,精雕细琢、镶花刻金,将贵族式的雍容和优雅,淋漓展现。
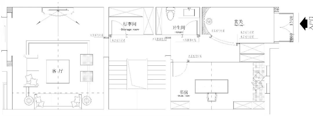
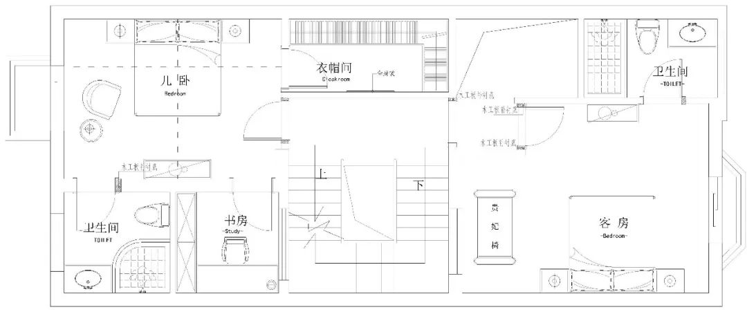
▼▼▼平面图
一层
二层
三层
四层
地下室
▼▼▼客厅
本案以新古典为基调,从整体到局部,精雕细琢、镶花刻金,将贵族式的雍容和优雅,淋漓展现。绮丽雕花沙发,华美水晶吊灯,为空间增添了贵气。华美大理石铺陈出层次丰富的电视背景,两侧的罗马柱与之呼应。质感精良的时尚电视柜摆放中间,展现出优雅闲适的都市轻奢风,再加上清新绿植的点缀,更让人心旷神怡。
▼▼▼ 餐厅
气势非凡的餐厅,将新古典的曲线美感展现的淋漓尽致,无论是圆形的造型吊顶对应精美的圆桌,还是璀璨的水晶吊灯,都成为引人注目的视觉焦点。纯白雅致的大型酒柜,收藏无数美酒,浓醇的酒香令人丝丝沉醉。
▼▼▼厨房
简洁优雅的白色橱柜温馨舒适,U字型设计最大化释放了操作空间,可以尽情享受休闲下厨的好心情。
▼▼▼主卧
卧室以柔美线条制造浪漫,暖黄的灯光、舒适的硬包床头和印花被套,都渲染出一种甜美的氛围,素雅的蓝色增添了宁静的点缀,使人轻松入梦。
▼▼▼次卧
房间以清新的墙纸装扮,添置简约的欧式家具,展现大方典雅的气度,在蓝色床品的浪漫营造下,空间舒适而温婉。
▼▼▼次卧
卧室设计将装饰艺术聚焦在实用性上,以深棕色实木家具、淡雅的床品和窗帘,增添舒适、端庄的气息。
▼▼▼ 儿童房
儿童房的设计俏皮可爱,搭配粉色的家具和饰品,甜美动人,将自然的清新落置于空间,带来轻快舒适的享受。
▼▼▼书房
书房的设计更多的是惬意和浪漫,深色调的书柜和书桌带给人一种欧式的典雅气息,通过完美的曲线,精益求精的细节处理,带给家人不尽的舒适触感。
▼▼▼ 外卫
外卫使用多样款式的瓷砖搭配,自然划分了区间。深棕色雕花的浴室柜精致秀美,营造出一种沁人心脾的新古典韵味。
箭牌卫浴
▼▼▼ 主卫
主卫布局井然有序,精美个性的双层集成吊灯,纯白的雕花浴室柜,使清新的空间多了一抹奢华和摩登感。
▼▼▼玄关
独具个性的马赛克鲜花装饰背景,配上地面漂亮的拼花,大大提升了玄关的装饰性,展现出空间的时尚和浪漫。
▼▼▼楼梯
大理石楼梯踏步尊贵典雅,配以造型精美的双色实木扶手,彰显艺术审美。
▼▼▼软装搭配
各具特色的装饰品都是新古典风格的点睛之笔,营造休闲浪漫的情调,描绘出主人浪漫、高雅的情怀。
格堂贺岁大片连续放映,记住此片查找的关键词:新湖玫瑰园、深沉里显露尊贵,典雅中浸透豪华!
客服
消息
收藏
下载
最近





























