查看完整案例


收藏

下载
项目地址
| 君悦东方2#
户型面积
| 98㎡
设计风格
| 美式风格
装饰公司
| 格堂装饰
全包费用预计
| 16.8万
项目经理
| 施申和
本案设计师
| 吕霞
设计师说
|
实木护墙板与清新印花墙纸搭配,
复古中不失甜美的魅力。实木家具搭配藏蓝色的真皮沙发,利用跳跃的亮色搭配,带来深刻的视觉感受。
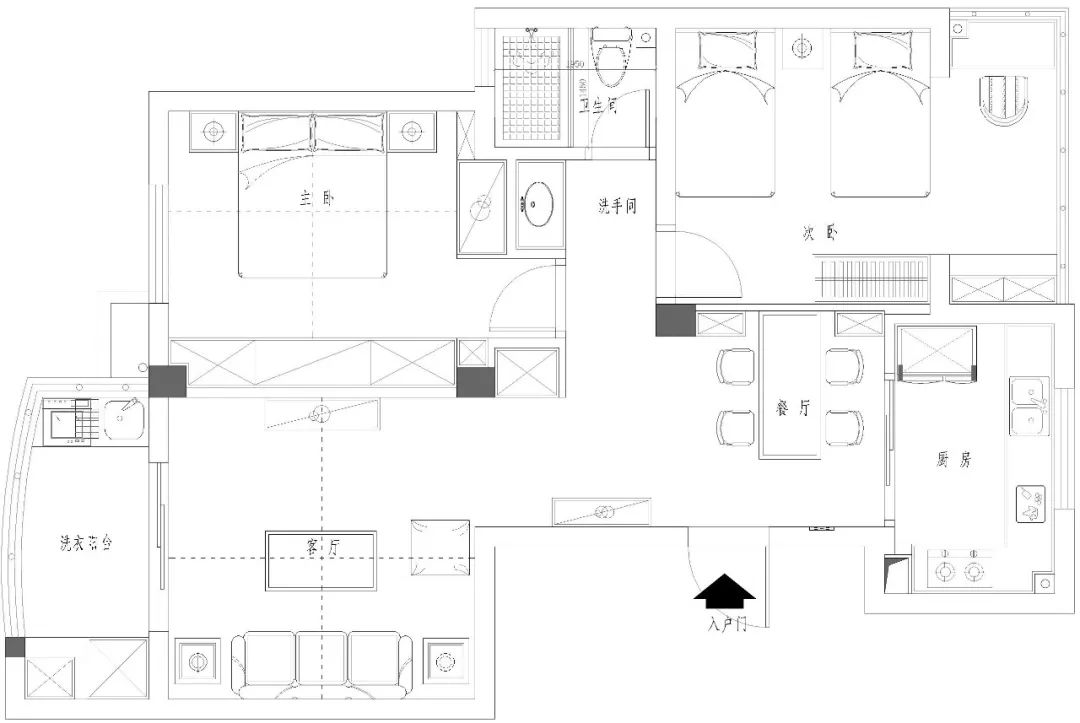
▼▼▼平面图
▼▼▼客厅
实木护墙板与清新印花墙纸搭配,
复古中不失甜美的魅力。实木家具搭配藏蓝色的真皮沙发,利用跳跃的亮色搭配,带来深刻的视觉感受。丰富的配饰让室内变得精彩生动,清新的绿植,精美的果盘,让整个空间充满了美好的生活气息。
▼▼▼ 餐厅
餐厅选用温润自然的木质家具组合,餐桌两侧分别竖立一列酒柜,
营造空间无限的视觉层次感,金属鹿头装饰中心,带来洒脱自然的美式气息。
▼▼▼厨房
深木色的厨房稳重大方,L型橱柜设计带来足够多的储物空间,空间显得干净整洁。冰箱恰到好处的放置在角落,解放了厨房的整体操作空间。
乐丽德橱柜
友邦集成吊顶
▼▼▼卧室
藏蓝色床头的古典美式大床,搭配海蓝色的柔软床品,清新的绿色窗帘,营造出一种漫步云端的梦幻感。一整面墙的棕色衣柜设计,以丰富的储物空间确保了室内的干净整洁,素雅的空间晕染出温暖、惬意的自然感受。
格力空调
▼▼▼ 次卧
利用阳台的空间设计了一个小书桌,整面敞开的设计让次卧的阳光可以洒入室内的每一个角落,满足了睡眠、学习的需求,温馨的配色成为空间最美好的装饰。
世友木门
▼▼▼玄关
玄关处,放置了一组竖条纹鞋柜和一个皮质换鞋凳,方便日常的生活使用。美式风格的麋鹿挂画成了玄关里的点睛之笔。
▼▼▼软装搭配
不想拥有太多情绪,一杯红酒配电影,在周末晚上,关上了手机,舒服窝在沙发里。
格堂贺岁大片连续放映,记住此片查找的关键词:君悦东方、美式典雅的生活态度!
客服
消息
收藏
下载
最近





















