查看完整案例


收藏

下载
项目地址
| 西江月8#
户型面积
| 100㎡
设计风格
| 美式风格
装饰公司
| 格堂装饰
半包费用预计
| 14万
项目经理
| 谢来富
本案设计师
| 胡小娟
设计师说
| 独特的彩色文化石电视背景打破了沉闷,与立体感十足的白色线条,米色墙面、蓝色窗帘、休闲的布艺沙发,共同打造惬意美妙的空间。
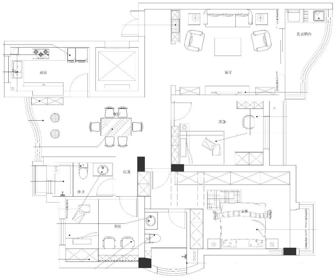
▼▼▼平面图
▼▼▼客厅
深棕色的实木家具,搭配温馨的仿古地砖,传递着美式的温度。独特的彩色文化石电视背景打破了沉闷,与立体感十足的白色线条,米色墙面、蓝色窗帘、休闲的布艺沙发,共同打造惬意美妙的空间。
马可波罗瓷砖
格力空调
▼▼▼ 餐厅
以温馨的米色为基调,整一面明媚的向日葵花田为背景,为餐厅增添了一丝精致。雅致的美式家具搭配经典的风扇灯,营造美好的用餐时光。靠近窗户设计了一个吧台区,可以品茶谈天,也可以读书办公,兼具了实用性和美观性,一举两得。
▼▼▼厨房
厨房大胆引入了轻快明朗的蓝色,清新的蓝色木纹橱柜优雅迷人,搭配温馨的米色瓷砖,让整个厨房更有质感。
▼▼▼主卧
主卧以浅蓝为主色调,素色的棉麻窗帘自由放松,色调沉稳的木质家具温润舒适,铺满阳光的卧室散发着慵懒气息。电视背景利用一整面墙,做了一排雅致的白色储物柜,实用性瞬间提升N倍。
▼▼▼ 次卧
次卧小空间大利用,设计成榻榻米和书桌,储物功能强大。主色调是米色和白色,极简放松。
▼▼▼ 外卫
浅色调的外卫,素雅的白色浴室柜和梳妆镜,带来视觉上的扩容感。设计大方简约,空间更显质朴整洁。
▼▼▼ 主卫
大面窗户采光让主卫明亮开阔,跳跃的蓝米色瓷砖拼贴,丰富了空间的视觉层次,清新的白色浴室柜增添了一丝优雅气质。
▼▼▼玄关
地面个性化的菱形瓷砖铺贴,带来视觉上的延伸感,营造独特的入户体验。墙上预留的一整面照片墙,记录美好生活的点点滴滴。
格堂贺岁大片连续放映,记住此片查找的关键词:西江月、有文化感、有贵气感,又不乏自在感与情调感!
客服
消息
收藏
下载
最近



















