查看完整案例


收藏

下载
项目设计丨DoLong 董龍设计
空间性质丨私宅
项目位置丨南京·海玥万物
项目面积丨330㎡
项目风格丨现代简约
写在前面 | 设计是保留生活的一种方式
本案是精装改造类项目,DoLong 董龍设计依托于原精装方案的设计精神和原理,遵循空间原有的配色以及用材方案,保留室内的地面石材、地板和部分墙体颜色,打造业主喜欢的现代极简风格,让空间布局更加贴合业主的使用习惯,共同演绎一场生活的美学之旅。
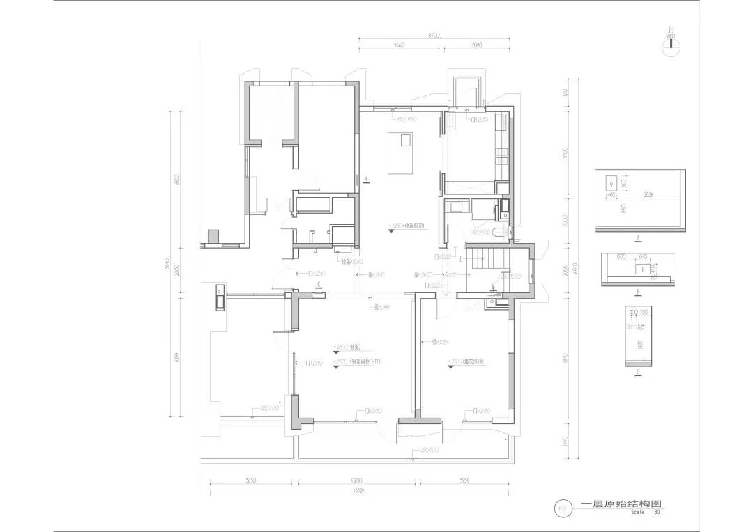
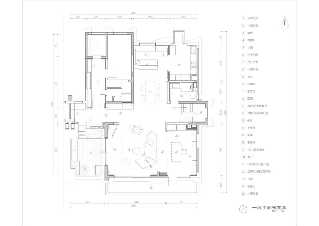
左右滑动查看平面。效果呈现 |近城远山 都是人间。客厅 Living Room
这间位于南京海玥万物的 330 平方米的精装新屋,是一家四口的未来新居,老人偶尔过来小住。在设计讨论过程中,业主就希望能将空间利用率达到最大化。所以我们将一楼空间打开,减少不必要的墙体,用可隐藏的折叠门连接一层原本的次卧和客厅空间,将次卧打造成阳光书房。坐案硬朗,沙发柔软,一张一弛之间传递出关于生活的动态与平衡哲学。
书柜中暗藏的折叠床可以满足屋主父母小住的需求,空间借此形成一个回游动线,在满足各种功能性诉求的同时,也为日后多场景改造预留了空间,阳光自由地在室内游走,呈现出雅致且富有活力的力量。
餐厨空间 KitchenSpace
原本的餐厨空间过于狭长,厨房的操作台面有限,设计根据业主使用习惯,将整个餐厅南移,拆除原本岛台,做了整个的西厨空间,形成开放式的 U 形厨房,让日后厨房忙碌的身影变得清晰温暖,形成了新的生活互动场景。
门厅&走廊
Entrance &Corridor
入户玄关处也增加了衣帽间的设计,让空间收纳面积增加。设计师充分利用楼梯下的死角区域,给家庭宠物配备了专门的居住场所,合理地分配空间中的每一块面积。
休闲区
LeisureArea
空中花园干净硬朗,繁忙的工作之余,在此处让时光与景色缓慢发酵,谱写出从容而舒适的空间旋律,让人倍感舒心愉悦。
主卧室 Master Bedroom
放弃一切突兀繁复的修饰,主卧背景墙温润的木色和窗帘在空间中形成半围合的姿态,不同材质的对比,在这里却相融地恰到好处。
衣帽间 Cloakroom
大面积的米色调在光线的晕染下让衣帽间尽显温柔,以弧形圆角手法打造的首饰柜增加了空间层次感。设计由外至内层层剥离外界的繁杂,开启充满仪式感的个人私享时光。
女儿房 Girl’s Room
设计将主卧与女儿房之间的墙体变成移动墙,最大程度扩充了女儿房的面积,让衣柜的位置得到伸展,空间分布上更加均衡,充满柔和的线条和色彩在房间中均匀散布,落满了一室温柔甜蜜。
Boy’sRoom 男生房
男孩房借用卫生间面积,让空间布局更加合理,房间中雾霾蓝格栅和木饰面层层递进,放置的积木、玩偶、艺术凳子,像是行走在艺术的空间里,在每一个饱含生机的日常里感受活泼童年。
动静皆宜的多功能房满足孩童学习娱乐等的所有需求,满溢童颜笑语的家才是我们内心深处最期待的模样。
颜旭
设计一线工作者
丨DoLong 董龍设计丨
联合创始人 设计总监
OTHER CASES 其他案例 点击图片,了解更多
DoLong 董龍设计
南京 DoLong 董龍设计
成立于 2008 年
设计为本 工程直营
将客户满意度作为唯一标准
专注大宅别墅高端项目
服务过 1000 多位尊贵业主
客户满意度数据:
“优秀”92% “满意”100%
80%+客户来自口碑
累计实景作品 300+套
获国内外重要设计奖项 100+座
公司荣誉【部分】(可滑动哦)
2021 年上海设计周新锐设计奖
2021G+AWARDS 全球设计精英大赛-中国(南京)TOP10
2021 金住奖中国(南京)十大居住空间设计师
40UNDER40 中国(南京)设计杰出青年(2021-2022)
2021 营造家奖年度设计 TOP500
2020VIFA 威法最美产品大赛特等奖
2020DESIGN FOCUS 国际空间设计大奖年度优秀奖
2020 金外滩奖最佳居住空间奖
2019 国际空间设计大奖-艾特奖最佳住宅建筑设计奖
2019 中国设计力青年榜中国杰出青年设计师奖
2019 中国室内装饰协会金腾奖全国 100 强
2019 芒果奖中国别墅优胜奖
2018 蒂森克虏伯别墅设计师大赛新锐设计师奖
2018 金堂奖中国室内设计年度优秀住宅公寓设计
2016 第七届筑巢奖最佳公寓户型设计奖
2015 国际空间设计大奖-艾特奖最佳公寓设计奖
2014 江苏省室内设计学会永隆·星空杯住宅空间工程类金奖
2013 金堂奖中国室内设计年度优秀餐饮空间设计
2012 金堂奖中国室内设计年度优秀别墅设计
2011 金堂奖中国室内设计年度优秀住宅公寓设计
2010 第一届中国国际空间环境艺术设计大赛
筑巢奖住宅空间类金奖
2010 第一届金堂奖中国室内设计年度住宅公寓设计金奖
2009 中国室内空间环境艺术设计大赛住宅空间三等奖
如果您对新家
有更多的期许
欢迎与我们联系
感受不一样的家装体验
400-799-6869
南京市建邺区泰山路 8 号舜天产业园内主楼 4F
DoLong 设计(溧阳)公司
溧阳市燕城大道 253 号通用大厦 3F-305 室
END
客服
消息
收藏
下载
最近































































