查看完整案例


收藏

下载
倦鸟归巢,扁舟靠岸
家,是心灵的栖息之所
每个家都有自己的独特风格
这是主人生活品味的最好诠释
他们看过大千世界,又重新回归到东方审美
现代中式风格干净、素淡、自由
兼具东方情韵与现代元素质感,不轻佻不厚重的姿态
仿佛缓冲了都市生活的快节奏,让人不自觉慢下来
寻回属于自己的恬静与诗意
享受生活的舒适
■ 项目地址:
中冶锦绣华府
■ 项目面积:140平
■ 户型结构:
三室两厅一厨两卫
■ 合作模式:全案托管
■ 设 计:焦凤茹
■
主要材料:科技木饰面、定制柜体、壁纸画、银鼎灰瓷抛砖、金色拉丝金属
■ 竣工时间:
2019.9.15
■ 摄 影:Emma
设计思考
DESIGN THINKING
从设计的角度
运
用现代块面状的手法
以自然的木纹、写意的山水、干练的线条
将东方的诗意凝于空间、彰显气质
写意浑然天成,
风雅与清韵
▽
原始毛坯房内部结构图
▽
▽
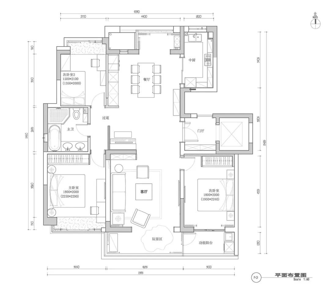
平面方案图
▽
整体户型根据生活习惯及常驻人口做了一定的改动。
将原衣帽间及客卫归纳到客餐厅空间,使公共区域更加舒展。
在功能上做了区分,增加了独立的玄关及放置钢琴的位置,餐桌边的高柜设计以及简约的门板部位均搭配中式元素线条,让空间层次感更加有致。这样不仅增加了足够的储物空间,同时有足够的区域放置双门冰箱。
细长条的南阳台一部分归纳给了客厅作为休闲区。同时,次卧阳台的部分则作为洗晒区;
在视觉上、空间上、实用性上有了提升。
实景展示
LIVE SHOW
软装的甄选部分选用中式元素,从色彩到造型都是点到为止,尽量去装饰化,做到合适为佳。
关于设计师
ABOUT DESIGNERS
焦凤茹
主案设计师
工作年限:8年
代表作品:
《遇见你》、《尋·回》
服务项目:雅居乐滨江国际、金浦御龙湾、恒大华府、水晶蓝湾、涟城、五矿崇文金城、朗诗蔚蓝、钟山颐府、吉庆里、五矿宴山居、佳兆业、铂悦秦淮、中冶锦绣华府,清竹园,翠屏湾花园城等
设计理念:
设计源于生活,细节成就品质
成立于2008年
设计为本 工程直营
超过80%客户来自口碑
实景作品超300套
了解更多
南京市建邺区泰山路8号舜天产业园内主楼一楼
客服
消息
收藏
下载
最近






















