查看完整案例


收藏

下载
云澜尚府
1
ST
143㎡全案解析
项目名称丨云澜尚府
ProjectName丨Yun Lan Shang Fu
空间性质丨143㎡
SpatialProperties丨143㎡
设计风格丨现代
DesignStyle丨Modern
全案服务机构丨DoLong 董龍设计
Whole Case ServiceDepartment丨DoLong 董龍设计
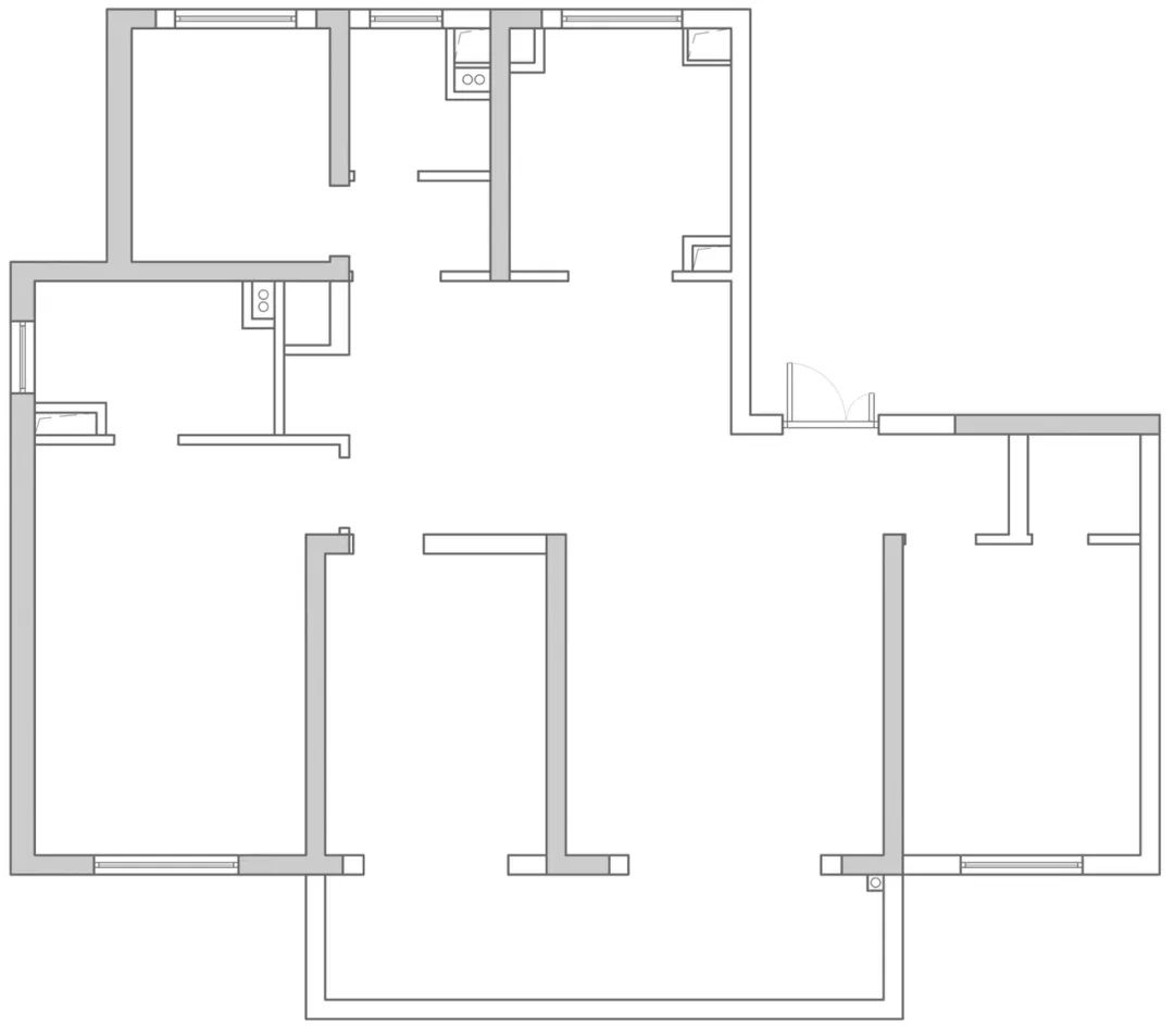
░ 原始结构图
░平面布置图
此次设计反复推敲系统精装房改造边界,打造潮品生活空间。
优化如下:
【1】将左侧卧室的门由右侧换到左侧,延伸了门厅的横向空间,视野更加开阔;
【2】将原厨房的墙体打通,设计为餐厨一体化的开放式空间,进一步增加空间的宽敞性和使用率;
【3】将连接阳台的部分墙体拆除,为新家注入充足的光线,使得空间的活力倍增。
01DesignIdeas & DesignSketch
设计思路和效果展示
—
本次设计突破了传统的设计思路,紧紧围绕业主的生活习惯和审美方式,去除意义不大的繁琐装饰,转而用凝练有加的设计语言突出了人与空间的合二为一,使得居住者更大程度上感受到舒适、自由、自然和放松。比如自然光线的丰富摄取;比如贯穿环绕的动线组织;比如规整讲究的面块关系……使得此次空间设计让生活更具不同的可能性。
家的模样往往因为时间的变化、光影的变化、心态的变化而缓慢变化,正因为这些不同的空间氛围赋予了家最迷人的魅力。本次设计的娱乐厅,白日拥有浩瀚天空的蓝天白云之感,此时空间如水洗一般,干净穿透人心;夜晚犹如童话世界,一边温暖,一边好似梦幻的海底世界。
木元素构筑了娱乐厅的整体温润基调,所以空间始终散发着家的温暖,无时不刻环绕在周围。而在朦胧的矩形展示架里,每一个玩偶都是自己世界的主人,都有一段自己独特的故事,正如每个空间设计一样,要让业主拥有独一无二的家庭氛围。
侧面的模样,决定了空间设计审美的高度,衔接、转换、配合、融合,把不同材质置于和谐的角度中,从各个维度调度愉悦的身心。
银白的开放式餐厨空间中,点缀一笔跳跃复古红,便从视觉上抓住所有注意力,以此为餐厨生活注入无限活力。宽敞的操作台设计,透露出烹饪艺术该有的轻松写意,无所拘束,方能享受美味佳肴。
卧室轻盈地只剩美好的轮廓,多一物都显得繁冗。进入这个世界,唯一要做的就是卸下生活的重量,感受无压的自如。
衣着装扮是人生最重要的审美活动之一,它配得上艺术的庄重感,每一件衣物都犹如甚是喜爱的藏品,精致地陈列在极简的橱窗里。
影音室追求更加现代化、更富效率的光影生活和工作场景,小而精的设计理念,让此空间由内向外散发着无以言表的质感。
设计师丨王盟
王盟首席设计师
#代表作品
《Rain’s Life》、《清谧》、《融》、《梦幻Ballet》、《致可爱的你》、《沐光之澄》、《雕刻时光》、《相佑》、《清宁》、《馥郁时光》、《雯华》……
#近期荣誉
2022 年 LHDA 国际奢居设计大奖-优胜奖
2022 年 长三角室内设计·联盟奖
2021 年 金堂奖住宅公寓年度杰出
2021 年 上海设计周新锐设计奖
2021 年 凭作品《融》荣获金堂奖入围奖
2020-2021 年度 40 UNDER 40 中国(南京)设计杰出青年
2020 年 第 15 届金外滩奖“最佳居住空间奖”
2020 年 DESIGN FOCUS 国际空间设计大奖·年度优秀奖
2020 年 凭作品《清宁》荣获 2020 年度 VIFA 威法最美产品大赛特等奖
2019 年 艾特奖-陈设艺术(软装)设计奖
2019 年 艾特奖-公寓设计奖
2019 年 十间坊-中国城市优胜奖
云澜尚府 2ND 168㎡全案解析
项目名称丨云澜尚府
ProjectName丨Yun Lan Shang Fu
空间性质丨168㎡
SpatialProperties丨168㎡
设计风格丨现代
DesignStyle丨Modern
全案服务机构丨DoLong 董龍设计
Whole Case ServiceDepartment丨DoLong 董龍设计
░ 原始结构图
░平面布置图
此设计方案利用了原房型的优点,几乎没有作结构方面的改造。
01DesignIdeas & DesignSketch
设计思路和效果展示
—
此设计方案透露着浓厚的现代艺术氛围。白灰,从视觉到知觉的双纬度,都为空间编织了触之可及的的质感,黑色线面反衬银亮的灯光系统,使得每一件家具摆设,都像镌刻了历史故事的艺术品,悠悠静守于此。当业主身临其境,便是一副精心雕琢的当代画卷。
书籍用字符书写感人故事,钢琴和吉他用音符谱写动听乐章,而设计师用设计语言打造令人倍感温馨的家庭生活空间。
所有的艺术都关乎时间,所以,优秀的设计都能让业主意识到时间的重要性,并享受它的每一分每一秒。
当艺术画摆在床的对面,当被角耷拉在地板上,当业主从美好的梦境中醒来,那才是真实的美好。纯净的生活被艺术滋养,纯净的心灵被生活浸润。
设 计 师:庄 婷
庄婷 首席设计师
#代表作品
《轻喃》、《玄·彩》、《角·色》、《青·禺》、《微光》、《侧颜》、《弦·娴》、《恣由》、《风聆》、《自在·观》、《長夏》、《艾》、《夏光浮影》、《空白格》、《瑾年》……
#近期荣誉
1、4040 中国设计杰出青年(2022-2023)
2、《筑梦家·2022 人居空间设计大奖》厨房命题年度杰出设计奖
3、4040 中国(南京)设计杰出青年(2022-2023)
4、上海国际设计周 新锐设计师 2021-2022 年度省际榜
5、2021 年“星空间杯”江苏省室内设计大赛 优秀奖
6、2021 上海国际设计周新锐设计奖
7、4040 中国(南京)设计杰出青年(2020-2021)
8、Hi-Design 第八届室内设计大赛华东区设计精英奖
9、江苏省室内、陈设设计大奖赛 优秀奖
10、DESIGN FOCUS 国际空间设计大奖 优秀奖(实景类)
OTHER CASES
其他案例
点击图片,了解更多
DoLong 董龍设计
南京 DoLong 董龍设计
成立于 2008 年
设计为本 工程直营
将客户满意度作为唯一标准
专注大宅别墅高端项目
服务过 1000 多位尊贵业主
客户满意度数据:
“优秀”92% “满意”100%
80%+客户来自口碑
累计实景作品 300+套
获国内外重要设计奖项 100+座
公司荣誉【部分】(可滑动哦)
2021 年上海设计周新锐设计奖
2021G+AWARDS 全球设计精英大赛-中国(南京)TOP10
2021 金住奖中国(南京)十大居住空间设计师
40UNDER40 中国(南京)设计杰出青年(2021-2022)
2021 营造家奖年度设计 TOP500
2020VIFA 威法最美产品大赛特等奖
2020DESIGN FOCUS 国际空间设计大奖年度优秀奖
2020 金外滩奖最佳居住空间奖
2019 国际空间设计大奖-艾特奖最佳住宅建筑设计奖
2019 中国设计力青年榜中国杰出青年设计师奖
2019 中国室内装饰协会金腾奖全国 100 强
2019 芒果奖中国别墅优胜奖
2018 蒂森克虏伯别墅设计师大赛新锐设计师奖
2018 金堂奖中国室内设计年度优秀住宅公寓设计
2016 第七届筑巢奖最佳公寓户型设计奖
2015 国际空间设计大奖-艾特奖最佳公寓设计奖
2014 江苏省室内设计学会永隆·星空杯住宅空间工程类金奖
2013 金堂奖中国室内设计年度优秀餐饮空间设计
2012 金堂奖中国室内设计年度优秀别墅设计
2011 金堂奖中国室内设计年度优秀住宅公寓设计
2010 第一届中国国际空间环境艺术设计大赛
筑巢奖住宅空间类金奖
2010 第一届金堂奖中国室内设计年度住宅公寓设计金奖
2009 中国室内空间环境艺术设计大赛住宅空间三等奖
如果您对新家
有更多的期许
欢迎与我们联系
感受不一样的家装体验
400-799-6869
南京市建邺区泰山路 8 号舜天产业园内主楼 4F
DoLong 设计(溧阳)公司
溧阳市燕城大道 253 号通用大厦 3F-305 室
END
客服
消息
收藏
下载
最近















































































