查看完整案例


收藏

下载
一粒沙中见世界,一朵花中见春天
A world in a grain of sand, and spring in a flower
——
刘墉
项目名称丨「春之物语」
项目地址丨复地御钟山
项目性质丨私宅
设计风格丨现代
项目面积丨178㎡ 顶跃
设计机构丨DoLong 董龍设计
施工单位丨大品大工程
摄影机构丨Ingallery
前言
Foreword
设计始终需要贯穿一种合理又兼具创造性的想象,要让房主人看到蓝色沙发,眼前便呈现自己端坐于此、陷入阅读和思考的投入情景,生活的美丽便藏在这样的深刻体验之中。而越深刻的哲思,往往寓意于最简单的事物。
纯净空间的私藏与创造
The privacy and creation of pure space
环视本案空间,平顺的如抚摸猫身一般;色彩纯净,浸透如水的心灵。外部世界越简练,精神深处就越自由。“主黑白灰+蓝棕点缀”的色彩融合,前者让故事的讲述贴近真实的生活,后者升华对家庭的纯挚爱意。
传统的餐厨空间比较注重功能,较易放松与家庭整体氛围的联系。本案借助平顺的线条延伸和色彩统一的面块关系设计,让此空间承接客厅的纯净意境,从而提高空间的艺术色彩。
从某种角度说,淡化不同空间的功能属性,实际上有助于拓展空间的外延。生活方式的诸多可能性就在于打破墨守陈规的认知。当然,这更加考验动线设计的紧密衔接、自然过渡。
旋转、蜿蜒、向上的生活互联
Revolving, meandering, upward interconnection of life
说到过度,本案上下层的连接利用了流畅的曲面曲线。楼梯一如生命核心——DNA 双螺旋结构,又如流水的自然截面,轻盈地蜿蜒而上。
在连接点的休憩与玩耍,谁说不是一处难得的悠闲时光。拾级而上,生活的美好落实在一步一个脚印的温润阶梯上。
感受最松弛的生活状态
Feel the most relaxed state of life
阁楼的不规则空间关系,是制造惊喜的客观存在;而那份对生活的好奇和热情之光主观地由内而外地散发。
此处更加私密的休憩环境,用温馨的火光照耀自由与舒适,照耀更真实的自我妆容。
我们对待生活的爱意,展现在对生活空间的氛围把控和设计之中,展现在对一猫一狗的细心养宠之旅途中,展现在对伴侣和家人的赤诚与用心上。灯光洒落的角落里,书本页与页的拥抱中,皆有迹可循。
卧室将一切生命中不能承受之重倾卸,所以,轻盈的浅色往上漂浮,深色的往下部沉落,要在这里感受生命之初的松弛,并从其中汲取生活的强大动能。
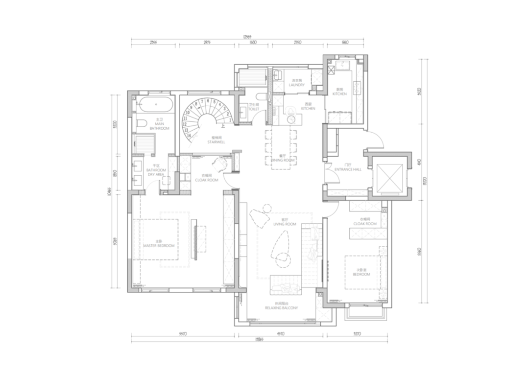
■ 一层
原始结构图
■ 一层平面布置
图
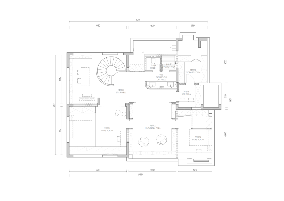
■ 二层
原始结构图
■ 二层平面布置
图
设 计 师:庄 婷
庄婷 首席设计师
#代表作品
《影》、《轻喃》、《玄·彩》、《角·色》、《青·禺》、《微光》、《侧颜》、《弦·娴》、《恣由》、《风聆》、《自在·观》、《長夏》、《艾》、《夏光浮影》、《空白格》、《瑾年》……
#近期荣誉
1、2022 年十间坊实战赛全国十强
2、4040 中国(江苏)设计杰出青年(2022-2023)
3、《筑梦家·2022 人居空间设计大奖》厨房命题年度杰出设计奖
4、4040 中国(南京)设计杰出青年(2022-2023)
5、上海国际设计周 新锐设计师 2021-2022 年度省际榜
6、2021 年“星空间杯”江苏省室内设计大赛 优秀奖
7、2021 上海国际设计周新锐设计奖
8、4040 中国(南京)设计杰出青年(2020-2021)
9、Hi-Design 第八届室内设计大赛华东区设计精英奖
10、江苏省室内、陈设设计大奖赛 优秀奖
11、DESIGN FOCUS 国际空间设计大奖 优秀奖(实景类)
OTHER CASES
其他案例
点击图片,了解更多
DoLong 董龍设计
南京 DoLong 董龍设计
成立于 2008 年
设计为本 工程直营
将客户满意度作为唯一标准
专注大宅别墅高端项目
服务过 1000 多位尊贵业主
客户满意度数据:
“优秀”92% “满意”100%
80%+客户来自口碑
累计实景作品 300+套
获国内外重要设计奖项 100+座
公司荣誉【部分】
(可滑动哦)
2022 年
LHDA 国际奢居设计大奖·优胜奖
2022 年 长三角室内设计·联盟奖
《筑梦家·2022 人居空间设计大奖》年度杰出设计奖
2022 金外滩奖最佳居住空间奖
40UNDER40 中国(南京)设计杰出青年(2022-2023)
2021 年上海设计周新锐设计奖
2021 金堂奖住宅公寓年度杰出奖
2021G+AWARDS 全球设计精英大赛-中国(南京)TOP10
2021 金住奖中国(南京)十大居住空间设计师
40UNDER40 中国(南京)设计杰出青年(2021-2022)
2021 营造家奖年度设计 TOP500
2020VIFA 威法最美产品大赛特等奖
2020DESIGN FOCUS 国际空间设计大奖年度优秀奖
2020 金外滩奖最佳居住空间奖
2019 国际空间设计大奖-艾特奖最佳住宅建筑设计奖
2019 中国设计力青年榜中国杰出青年设计师奖
2019 中国室内装饰协会金腾奖全国 100 强
2019 芒果奖中国别墅优胜奖
2018 蒂森克虏伯别墅设计师大赛新锐设计师奖
2018 金堂奖中国室内设计年度优秀住宅公寓设计
2016 第七届筑巢奖最佳公寓户型设计奖
2015 国际空间设计大奖-艾特奖最佳公寓设计奖
2014 江苏省室内设计学会永隆·星空杯住宅空间工程类金奖
2013 金堂奖中国室内设计年度优秀餐饮空间设计
2012 金堂奖中国室内设计年度优秀别墅设计
2011 金堂奖中国室内设计年度优秀住宅公寓设计
2010 第一届中国国际空间环境艺术设计大赛筑巢奖住宅空间类金奖
2010 第一届金堂奖中国室内设计年度住宅公寓设计金奖
2009 中国室内空间环境艺术设计大赛住宅空间三等奖
如果您对新家有更多的期许
欢迎与我们联系
感受不一样的家装体验
咨询 400-799-6869
南京市建邺区泰山路 8 号舜天产业园内主楼 4F
DoLong 设计(溧阳)公司
溧阳市燕城大道 253 号通用大厦 3F-305 室
END
客服
消息
收藏
下载
最近





























































