查看完整案例


收藏

下载
端庄大气的东方韵味,曼妙灵动的现代美学与之邂逅,摆脱束缚,寻一片静土,心无旁骛,对这城市的感知,正如身处繁华云境,却处处可观人间烟火,在这意韵之境寻人间百味。
01 诗心品茗清皎,听雨知花杳杳。
The poem heart tastes the clear tea, listens to the rain to know the flowers.
负一楼玄关
步入屋内,大理石与胡桃木定制造型的端景台与暖调定制墙画相互衬映,柔与刚、动与静之间赋予空间灵动的生命力,提炼宁静与安逸的环境和谐之美。
Entering the room, the marble and walnut customized end platform and the warm customized wall painting set off each other, giving the space flexible vitality between soft and rigid, dynamic and static, refining the beauty of quiet and comfortable environment harmony.
负一楼茶室
处处明朗 处处融通:地下室设计有采光天窗,引日光下来,在侧边镜子上进行第二次反射。此刻,飞扬的光影,完全掩盖了地下室的压抑和幽暗。屏风,古代建筑内部挡风用的一种家具。它用极简营造了“少即是多”的中式意境,落落大方,让人想到中式山水画的儒雅飘逸。
Screen, a kind of furniture used for wind protection in ancient buildings. It uses minimalism to create a Chinese artistic conception of "less is more", which is elegant and elegant, and reminds people of the elegance and elegance of Chinese landscape painting.
月光从天井倾泻,一轮明月配以随意采摘的一枝绿意,冷意的夜晚,也有了暖暖的禅意。开灯,月色温柔地流淌进房间。随便摆放些什么,绿枝、枯叶、茶器,不同的事物令空间意境完全不同,烟火气和诗意并存得刚刚好。
Turn on the light and the moonlight flows gently into the room. Put something casually, such as green branches, dead leaves and tea utensils. Different things make the space artistic conception completely different, and fireworks and poetry coexist just fine.
负一楼休闲区
静谧空间成为传统与现代汇聚融合的地方,突破形式至上的桎梏,引自然入室。席地而坐的畅意,自纯粹本真的生活场景中流露出来,返璞的器物以独一无二的姿态为居者提供一片平静天地。
The quiet space has become a place where tradition and modernity converge, breaking the shackles of the supremacy of form and bringing nature into the room. The smooth feeling of sitting on the ground is revealed from the pure and authentic life scene. The primitive implements provide a peaceful world for the residents with a unique attitude.
负一楼健身房
负一楼走道
通过屏风的划分,有了相对独立的空间,确保了一定的私密性。屏风延续玄关的不锈钢条的做法,做一些演变,相映着深色水景,星星点点,交织着一缕阳光,层层叠叠、烨烨生辉。
Through the partition of the screen, there is a relatively independent space, ensuring a certain degree of privacy. The screen continues the practice of stainless steel bars in the porch, and makes some changes, reflecting the dark water scenery.
负一楼影音室
璀璨如星空,浩渺如宇宙。于幽深之中聚焦视线,塑造纵向连续性和深邃的时空感,功能立面上的变化也给予了影音室极好的收音效果和视觉感受。
It is as bright as the starry sky and as vast as the universe. Focusing on the vision in the deep, shaping the vertical continuity and deep sense of time and space. The changes in the functional facade also give the studio excellent radio effect and visual experience.
02 相知无远近,万里尚为邻。
We know each other far and near, and thousands of miles are still neighbors. 一楼客厅
庄重雅正的会客厅如同这间住宅的命脉,承载起人文情怀与文化信仰。规整典雅的家具,串联起古意与现代。遵循着循序渐进的过程,秉承着内敛含蓄的心境,每一隅角落中都暗藏巧妙用心。场景随着光影跃动,衍生出曼妙的姿态。
The dignified and elegant reception hall is like the lifeblood of this house, bearing humanistic feelings and cultural beliefs. The orderly and elegant furniture connects the ancient and modern. Follow the step-by-step process, and uphold the introverted and implicit mood.
一楼餐厅
餐厅将矜重的礼序与烟火气悄然结合。硬朗的混合金属、剔透的玻璃、颗粒均匀细腻的大理石等材质并不跳脱于周围的人文意蕴。不同材质间的包容与融合,描绘出生活的具象场景。讲究空间层次和跳跃感是中式古典风格的重要特点,厨房用屏风般的中式木门隔绝视线,体现着层次的美感。
The restaurant quietly combines the solemn ceremony sequence with fireworks. Tough mixed metal, transparent glass, even and fine marble and other materials do not escape from the surrounding cultural connotation. The kitchen uses a screen like Chinese wooden door to isolate the view, reflecting the level of beauty.
一楼公卫
03一眼青葱绿满窗,炊烟几缕尽和祥。
The window is green at a glance, and the smoke from the kitchen is peaceful. 二楼女孩房
笼罩着一层云雾的粉色系,是设计师赋予女孩房的氛围定调,梦幻的色彩中蕴含着温馨与明净的观感。在设计师的笔下,空间的柔软曲线与柚粉色调源,柔软的布艺曲线碰撞墙面的线条,浅色调营造出的空间氛围,正在为孩子编织梦幻的成长乐园。
The pink color system shrouded in a layer of clouds is the setting tone of the girl’s room given by the designer. The dreamy color contains a warm and bright feeling, and the space atmosphere created by the light tone is weaving a dreamy growth paradise for children.
二楼次卧
二楼老人房
老人房贯穿东方韵味的素雅与庄重,沉静儒雅的床品,营造出朴实的氛围,给人一种气定神闲的感受。
The old man’s room runs through the elegance and solemnity of the oriental charm, and the quiet and elegant bedding creates a simple atmosphere, giving people a feeling of calm and relaxed.
二楼公卫
04 去留无意,望天上云卷云舒。
I have no intention of going or staying. I hope the clouds in the sky are rolling.
三楼主人房
居于自然,我们称赞精神的归宿,于是空间在干净、雅致中落地。银白与红棕的色阶体验在休憩空间里上演,空间的层次感从屋顶的线条延伸至地面。
"Living in nature, we praise the destination of the spirit, so the space falls to the ground in a clean and elegant way. The experience of color gradation of silver and red and brown is performed in the rest space, and the sense of space hierarchy extends from the lines of the roof to the ground."
三楼书房
三楼男孩房
空间的主题来自星际,光环与漩涡的魅力,在迷幻的视觉冲击与形态下进行有机融合,带着“冲破以往印象与规则”的理念,符合着小主人进取向上的人生观,青春自有无限可能。
The theme of the space comes from the charm of stars, halos and eddies. It is organically integrated under the illusion of visual impact and form. With the concept of "breaking through the past impression and rules", it is in line with the young master’s enterprising outlook on life. Youth has unlimited possibilities.
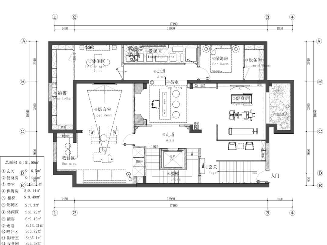
负一楼平面布置
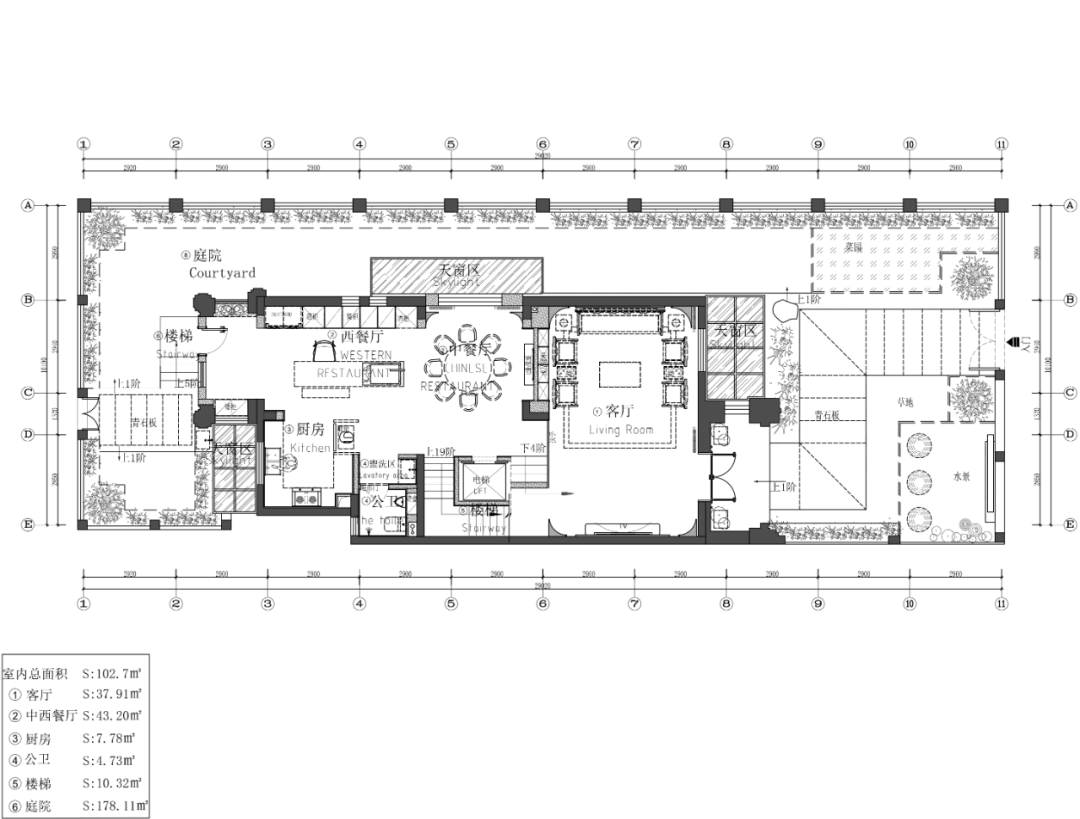
一楼平面布置图
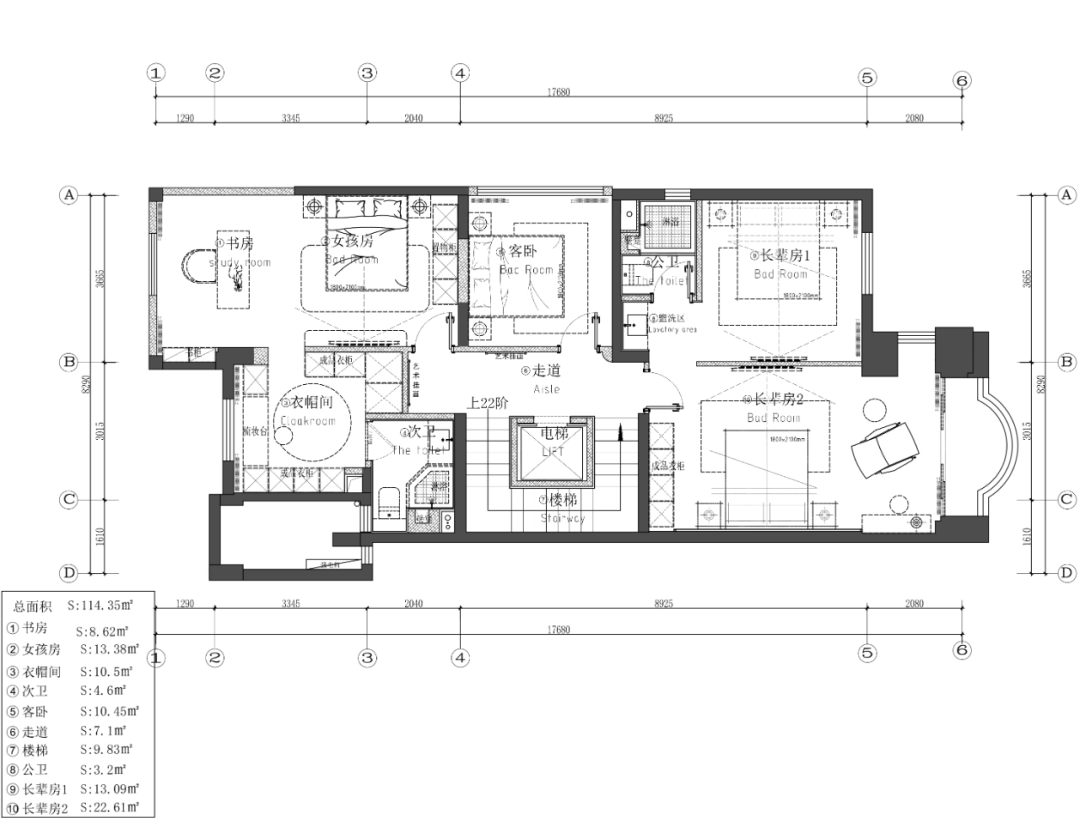
二楼平面布置
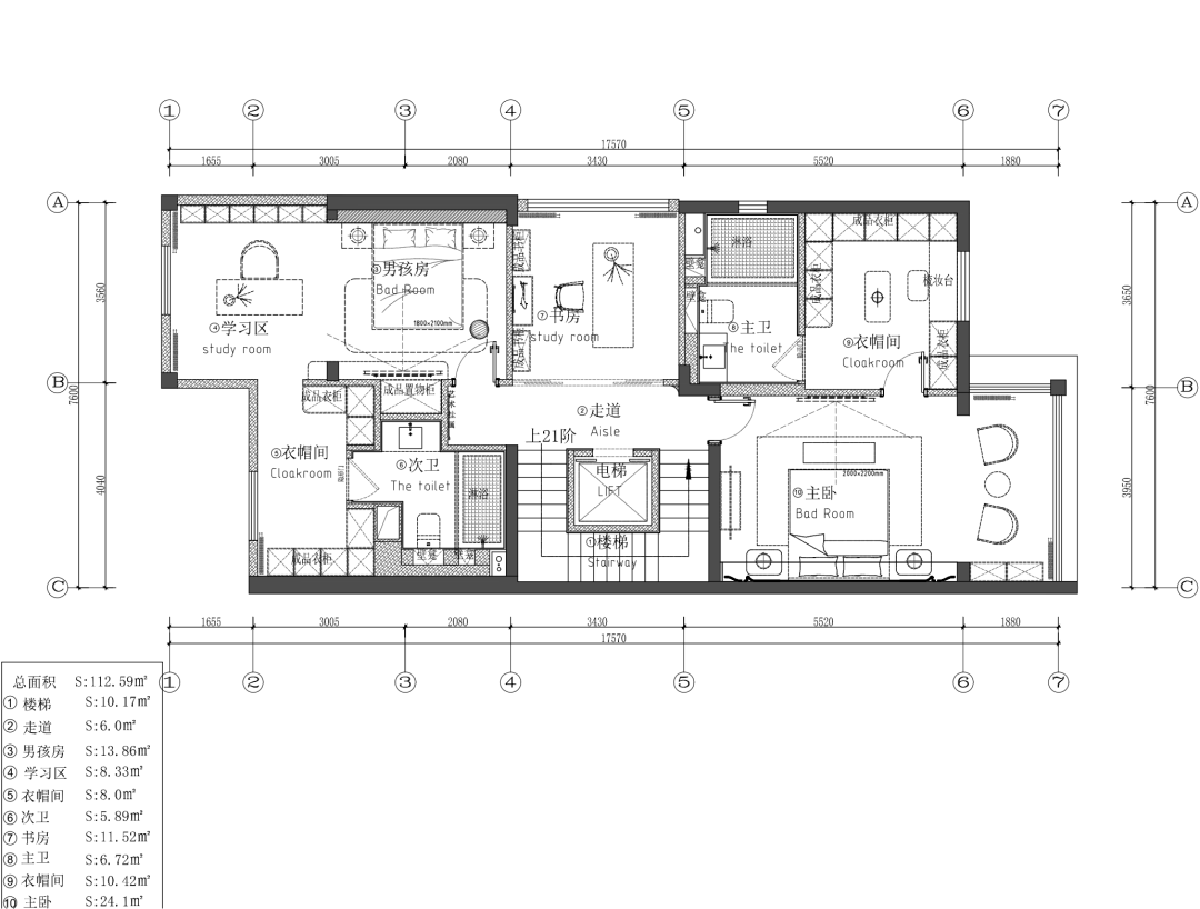
三楼平面布置
项目名称:厦门·中海别墅
项目地址:福建·厦门
室内设计:JLD 设计
软装设计:JLD 美学
设计面积:600m²
设计时间:2022 年
主创设计:刘庆辉
关于 JLD 设计
创始人.创意总监:刘庆辉
▼Awardexperience
客服
消息
收藏
下载
最近






































