查看完整案例


收藏

下载
生活的诗意不在远方,而在于外物唤醒的本心。
The poetic life does not come from afar,but from the heart inspired by external.
——德国诗人荷尔德林曾写下诗篇《人,诗意地栖居》
舒适·自在
COMFORTABLE SOFT
作为城市喧嚣的喘息之所,内部的风格与建筑物的外观形成鲜明对比。
希望设计能够赋予每一个项目独特的设计风格,让每一个项目都具有符合自己的品味和气质;
As a respite from the hustle and bustle of the city, the interior style is in sharp contrast to the exterior of the building. I hope that the design can endow each project with a unique design style, so that each project has its own taste and temperament;
色彩作为一种视觉语言,予以人不同的情感和意识;而软软糯糯的奶油色系,配色温柔,没有冲突的美,充满疗愈身心的力量;
As a visual language, color gives people different feelings and consciousness; The soft and waxy creamy color system, with gentle color matching, no conflict beauty, is full of healing power;
厨房区域将一种干练与理性诠释。在这两者之外,又诉说出道不尽的温柔与感性。有序整洁的一体壁橱让空间更整体、更宽敞。不同家具纵向与横向的摆放形成了明显的区域划分。
The kitchen area will be a concise and rational interpretation. In addition to these two, it also tells the endless tenderness and sensibility. The orderly and tidy integrated closet makes the space more integrated and spacious. The vertical and horizontal arrangement of different furniture forms an obvious regional division.
男孩房以黑白灰为主色调,让空间看起来简约而又沉稳,极简的风范,来自对纯粹、直观自然之美的执念,让低调的美感充盈在每一个角落。
The boy's room is mainly in black, white and gray, which makes the space look simple and calm. The minimalist style comes from the obsession with the beauty of pure and intuitive nature, and fills the low-key beauty in every corner.
弧形楼梯,互不干扰且各具灵动之感,流畅的曲线在视觉上具有一定的延展性,精致而不刻意。
Curved stairs are non-interference and flexible, and the smooth curves are visually malleable, delicate and not deliberate.
一抹色彩蓦然迸发,简洁雅致的布局激发了空间的探索。细腻温润的墙体和大理石铺陈的地面相互呼应。
A flash of color burst out, and the concise and elegant layout inspired the exploration of space. The delicate and warm walls and marble floors echo each other.
休闲区的绿植,让这片区域变得更有生活气息,盎然有趣。
The green plants in the leisure area make this area more lively and interesting.
主卧位于房屋二层,延续了极简的设计风格,以线条勾勒空间的背景,简约大气,美观而实用。
The master bedroom is located on the second floor of the house, which continues the minimalist design style and outlines the space background with lines. It is simple and atmospheric, beautiful and practical.
卫生间这个私密的空间是家里最让人放松的地方之一,不仅要满足日常洗漱所需,也代表着主人的生活层次和审美品位。
The private space of the bathroom is one of the most relaxing places in the family. It not only meets the needs of daily washing, but also represents the life level and aesthetic taste of the host.
为了增加卫生间的采光,映衬出材质的自然肌理,淋浴间采用无挡水条设计以及把卫生间的隔断墙设计成一面通透的玻璃墙,简约并不是缺乏设计要素,而是更注重细节。
In order to increase the lighting of the bathroom and reflect the natural texture of the material, the shower room adopts the design without water bar and the partition wall of the bathroom is designed as a transparent glass wall. Simplicity is not lack of design elements, but more attention to details.
女孩房采用石膏线条,
在细节处的设计,亦具女孩特质表征。法式背景、书桌设计,床艺择选,处处贴心,质美相合。
The girls' room adopts gypsum lines, and the design at the details also has the characteristics of girls. French background, desk design, bed art selection, intimate everywhere, quality and beauty match.
以功能划分的过道式衣帽间,空间在严谨的比例布局中点缀着干净纯洁的花艺,无论是材质还是尺度,都在表述着精致优雅的生活态度。
The corridor style cloakroom divided by functions is dotted with clean and pure flower art in the strict proportion layout. Both the material and the scale are expressing the refined and elegant life attitude.
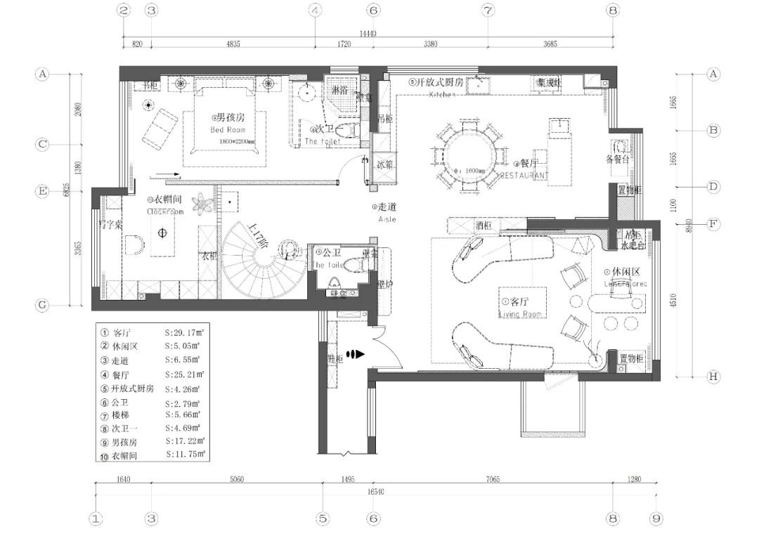
一楼平面布置
二楼平面布置
项目名称:南星小区
项目地址:福建·漳州
室内设计:JLD设计
软装设计:JLD美学
设计面积:400m²
设计时间:2022年
主创设计:刘庆辉
关于JLD设计
创始人.创意总监:刘庆辉
▼
Award experience
客服
消息
收藏
下载
最近


































