查看完整案例


收藏

下载
别墅是一个生命体。这是丹迪对别墅设计的解答。每一座别墅大宅,都昭示着一种独特的生活模式,它是身居其中的主人生活习惯与气质神韵的延伸。
设计理念:空间中的奢与雅,是家居环境自然的舒适与安宁,是文人精神生活的写照与寄托。本案例融合了艺术、人文、自然三者,营造现代轻奢、低调时尚的感受,把旅行家、探险家、精英阶层或高品位人士对未来的憧憬与好奇,镌刻成自己的生活态度,筑梦理想生活可能。
01 花园
落在诗里
……
garden falls in the poem
在院落听水声惬意,看夕阳云彩,赏临湖风景,生活的点滴散落于空间中,与不同时分的光景相融。方寸间驻足、观赏、游玩,一处宁静之地能瞬间抚平那颗浮躁的心。
走进绿意环绕的花园,感受一席流动春意,意趣横生消弭了边界,浓烈且寂静的自然气息由内而外,漫溢而出。
02 玄关
空间的情绪……
The mood of the hallway
Emotions of Space
由境及意,探知空间的情绪,先要往“题眼”探去。依玄关而入,空间被划分为两个块面。一面是厨房空间的烟火寥寥,代表生活;
一面是客厅向光而生的生长力,表达理想。玄关置于其间,形成天然的中心,空间相互串联,不做打断,于是空气是流通的,人在其中的行动也变得顺畅无拘。
03 客厅
雅趣天成、光韵自来……
Living room
elegantand charming
最是中意这客厅一角,最大尺度将阳光引入,超大采光面将生活的生机带入生活的每一天,以空间尺度感达到最佳视觉与体验上的舒适,营造尊贵归家礼仪。
色彩明亮却不过分张扬,人陷入沙发的包裹之中,再披上一层毛毯,空调的风也被驱散地和缓。恰好迎着阳光落座,满目木色在光影下,质感柔和细腻,光阴似水流长,享受空间本身带来的情绪感染力,一切都变得轻慢。
04餐厅
美食美事……
Restaurants
Gourmet events
就餐区充分运用技术性和艺术性,融合光元素和实用、美学、精神功能于一体,使就餐空间与光相映成趣。就餐者置身其间,感受着明亮、韵律、层次、对比等艺术效果,塑造满足视觉明暗光影空间。
05休闲区
清幽雅谈,意趣人生……
Leisure area
quiet and elegant talk, interesting life
手玩储藏柜与健身器材临窗而落,眼前是清风白云,身后是童心意趣,娱乐健身两不误。
光影在空间中游走,时间在自然中沉淀,不经意间滋养着居者的精神与生活。
审美,是一种情绪,是一种美好,是一种智慧。
06 书房
光有诗情,影有画意……
Study
poetic light, picturesque shadow
看似简单空阔的阅读室,是经过精细琢磨,线条的布置,材质的糅合,隐蔽的工艺,皆是细节,所有的一切融合到一起赋予空间内在,也是设计师期望的一个自由、丰满的精神场所。
溢满书香的空间具有持续的生命力,彷佛将时间流逝安静地收敛进来,利落且温柔,深沉又不失明媚,看似冲突的词语都能在设计语境中逻辑自洽,用利落线条构建这样的精神陶养的书房,独一无二,也饱含情致。
07 主卧
包围在温柔里……
Master bedroom
surrounded by tenderness
大尺寸步入式衣帽间,与盥洗区相对而立,视觉上给与空间延伸感,舒适感。
衣柜通透的格栅,加上大面积凹凸木饰面的连续,使睡眠区呈现沉稳克制的极简感同时,也保留与衣帽间的关联性。衣柜与梳妆台的弧形点缀,为空间多添一份柔软。
08客卧
自在闲情……
Guest bedroom
leisure
客卧简单而纯粹,饱含艺术性的高品质追求空间。自然木色与高级米白组合,成就了一个现代、舒适且静谧的空间,温馨且充满典雅的气质。
【关于本案】
案例信息
Caseinformation
项目名称:金碧御水山庄水云台
项目面积:377㎡
项目风格:现代极简
所属分部:广州丹迪设计院
设计师:邓科松
设计师说 designer said
设计亦如作画,恰到好处的留白,空间中的轻重缓急层次分明,剩下的,则交给漫无目的飘散的思绪,交给生活本身。设计是希望提供一种生活方式,在经年的浸润中,给予你对生活的把控力。
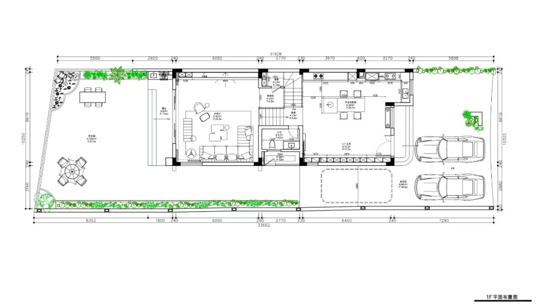
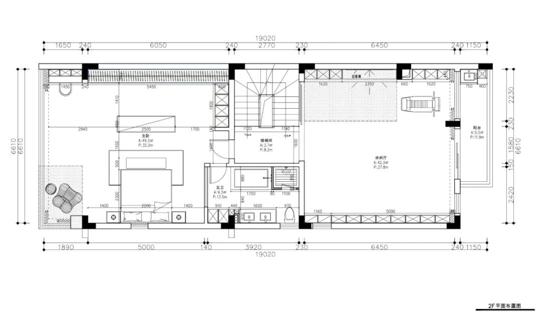
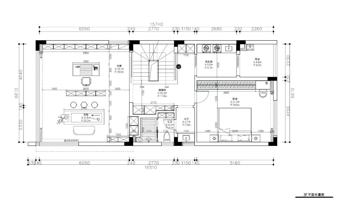
平面图
planar graph
客服
消息
收藏
下载
最近






















