查看完整案例


收藏

下载
传承生命之墅,雕琢传世之家
DANDI HOME 丹迪别墅装饰
现代轻奢风
把生活过成诗,不羡远方
与家人亲邻相守,且歌且行
所谓生活,一半烟火,一半清欢。生活的氛围和理想的居所体现在生活的每一个细节里面,干净的色彩、简单却不失大气的线条,卓越的工艺协调出舒适的生活氛围,每一处空间低调又不失腔调。
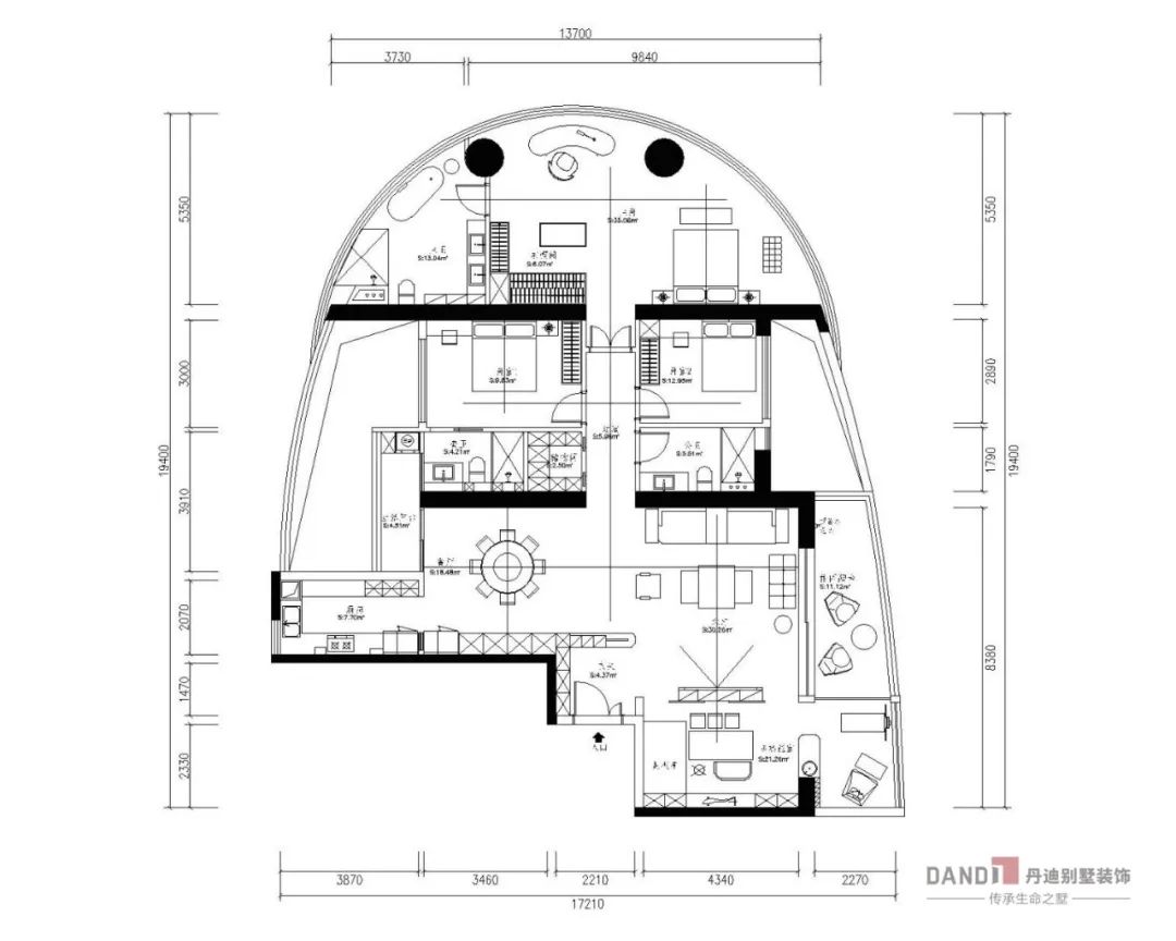
原始户型图
平面布置图
一个理想的家,需要美好的氛围,完美的环境,合理的空间,无论是畅想中诗意的远方,还是现实中理想的家,都跟生活体验密不可分。它更像是一个传承,上一代到新力量的传承,将由他们去谱写。
0
1
入户
进门玄关,映入眼帘的是一半东方,一半潮流,巨大的背景挂画极其考究,取大川山河之影,笔触雄伟罗列,古朴苍劲不失生机,阿童木的摆件时尚可爱,在这简洁的空间里恣意挥洒着自己的个性。
0
2
双厅
随之进入客厅与餐厅,落地窗让屋内的每一寸都接受着阳光的洗礼,雅致的大理石奠定了大厅的精致,简洁的线条勾勒出空间逻辑感和层次;顶面的灯光犹如日夜星辰熠熠生辉。
白色落地储物柜满足了收纳功能,利用淡淡的家具布局把原有的空间净化,软装及艺术品的姿态游走其中,把主人气质和品位含蓄地表现出来。
米色和棕色沙发综合考虑了不同的需求,黑曜石般的茶几,在阳光的映射下一尘不染,素净澄明,诠释着极致奢华的现代氛围。
0
3
卧室
卧室主要是用来放松和休息,所以在氛围上讲究雅致,宁静,让人心安,舒缓。
主卧是现代元素的巧妙运用,线条简练的家具,结构简单的陈设,很好的融洽了床头的创意灯饰,给人自然有序的感觉。
当清晨的第一缕阳光照进卧室的时刻,生活是美好又愉悦的。
无需过多的装饰,自然原木的地板传递着质朴与舒适的氛围,暖金色的灯光能感受到温馨宁静的氛围,柔软的寝具安抚忙碌了一天的疲惫。
其实每个人都有着对生活独特的见解,用心的品味,就不难发现其实远方就在身边,生活是一杯清水,我们往里加糖,水会变得很甜来回馈你。
四月的微风,有繁花锦簇的微甜,有温暖人心的爱,有生机勃勃的希望。温柔的,轻轻地吹拂着人们的面颊与胸襟,那风吹过的地方,让居所有了自己的氛围与生命。
关于本案
项目名称:天誉半岛
项目风格:现代轻奢
项目面积:201㎡
设计团队:广州丹迪设计团队
设计理念:
人为的设计生活方式,是为了努力去创造一种更好的生活状态。
设计说明:
狭隘意义上的设计,即从建筑到剧院、体育馆、教堂等等所有场景化领域,所涉及的都是气氛的营造。一件音乐作品或艺术品、一栋建筑物或某个空间态势,散发的都是气氛,是那种对在场的人具有情感作用的气氛。
「本案
设计师
」
涂民,广州丹迪别墅装饰设计总监
//
设计师说
气氛的塑造早已遍布我们生活的每一处领域。空间设计师就是“气氛制造者”, 设计师主要从五个维度上(空间、色彩、家具器物、材料、光环境)制造空间的统觉,这样的统觉用人所能感知的精神方式表达,就是“气氛”。
杨帆,广州丹迪别墅装饰设计总监
//
设计师说
大宅不是用来堆砌各种华而不实的场景,而是从设计出发就开始界定一种生活方式,确定这是为了获取一种什么样的居住感受,进而每个场景都围绕所设定的居住理念展开诠释。
客服
消息
收藏
下载
最近

















