查看完整案例


收藏

下载
点击蓝字“新派空间”关注我们
东海国际公寓实景 (图片来自网络)
在工业标准化的今天,从物质到艺术都开始趋于一致。人们普遍开始焦虑,不断追求标新立异、追求自我认同感与个性。但很容易就忘了想究竟什么是个性,我们的个性从何而来?
■
起
·
缘起
ORIGIN
-
本案位于深圳福田CBD中心东海国际公寓高层,
原室内设计由梁志天大师担纲,
坐拥270°无敌海景,为深圳福田区顶级楼盘,
素有“福田区的深圳湾一号”的美誉。
业主希望将
F、H
俩个住宅户型贯通变为私人会所。
-
Project View
项目视野
Site Photos
现场照片
■
承
·
再造
RECREATE
-
我们始终认为审美是应该有传承的,设计自然也不例外
因此本案我们摒弃了很多主流设计手法、形而上的立意
而是充分领悟原先的设计语言,让新与旧相互印证
同时通过以人为本的功能布局、空间开合来营造艺术体验
品味云端之上,星空之下的顶奢生活
-
Construction Site
施工现场
■
转
·
穹顶之下
UNDER THE DOME
-
一个空间可以有千万种模样
穹顶之下我们遇见的那个希望是每个人心中该有的模样
有一点故事
有一点心思
有一点情怀
尽管,每一个人对此的理解都不尽相同
-
Reception Room
会客厅
-
华灯初上,绚烂了星空穹顶。今夕复何夕,共此灯烛光
-
Reception Room
会客厅
-
穹顶之上,点点星光,美轮美奂,熠熠生辉
-
Reception Room
会客厅
-
“星际熊”是空间的守望者
-
Reception Room
会客厅
Tea Area
品茗区
-
骋怀游目便是海阔天空,无敌海景尽收眼底
笑看云卷云舒,静观潮起潮落
-
Tea Area
品茗区
■
合
·
新生
NOWLY BORN
-
空间华美的蜕变,充分体现着【云端之作,星际会所】的设计主题
-
Dining Room
餐厅
-
临窗,映入眼帘的是鳞次栉比的高楼大厦
以及静伏不远处——落霞与孤鹜齐飞,秋水共长天一色
每一个繁华地标唤醒的,是人们向往的城市生活
-
Dining Room
餐厅
-
日式“祥云飞鹤图”以新的表现方式运用到铁板烧区域的墙面
-
总监笔记
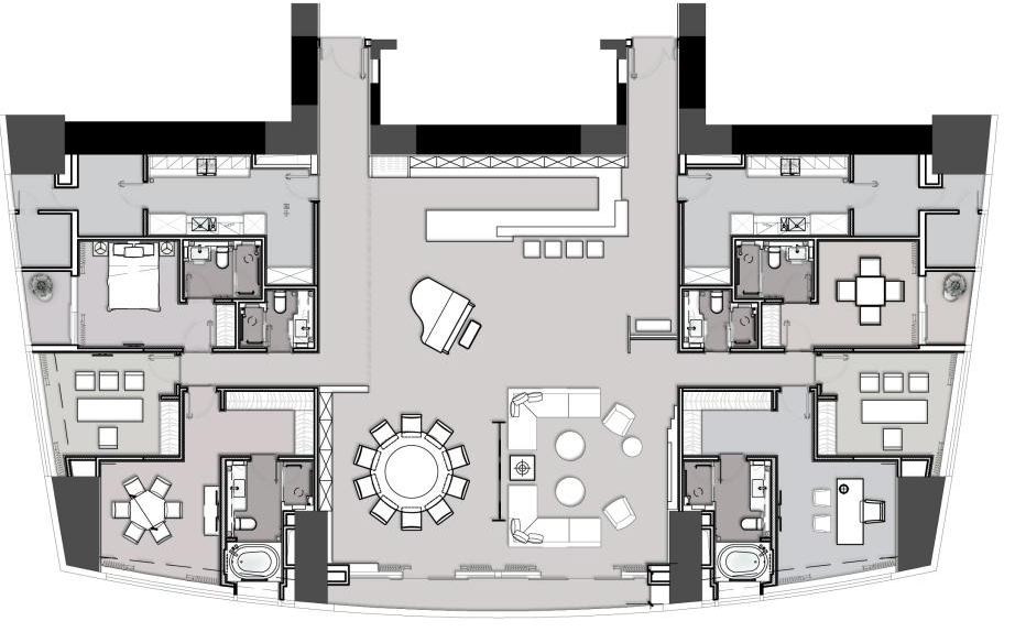
初次接触此项目,是在2017年。项目位于深圳顶级楼盘,最初是由梁志天老师做的批量精装修设计,从设计角度和用材用料,做工工艺上都比较高端细致,也突显了东海公寓的品质。如果全部翻新是很可惜的,所有业主希望保留原有的港式轻奢风格,以及部分装饰面材,仅对场地进行部分改造。在保持空间风格的整体延续基础之上,如何更好的呈现新旧材料整体结合工艺的细节处理是对施工较大的考验。
业主希望将两个住宅户型贯通一体,三分之二用作私人接待会所。三分之一仍保留原有装修。将两户三室二厅的公寓户型统一为接待会所,对入户会客厅要求满足会客、接待、品茶、会议等需求,要求空间具有一定的开敞通透性。现场打掉分户墙以后,发现漏出来横在中间的梁最低点距离地面仅为2.2米,如何把梁与天花造型统一结合,是我们对整体空间研究的最大思考点。
来到露台,我们看到了一望无垠的海景和对面的香港景色。如何把如此得天独厚的自然美景映射到室内,使主人在沙发上与客人谈笑风生,抬头仰望,就能看到天海于一色,成为我们本次项目的设计初衷。在此初衷之上,我们采用了现代简约的创作风格,以科技灯光与空调风口相结合,采用镜钢反射的视觉效果,把原有梁体隐藏在映射的海景之上。同时对原有景观露天的面积进行了部分加大,使此区域满足观景品茗交流的功能。功能分区上采用会所接待与休息住宿双通道动线,使空间开合自如,满足不同功能的使用需求。
方案
A
方案
B
在方案
B
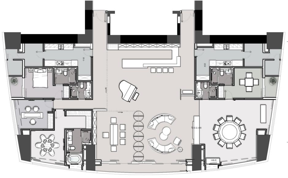
的基础上进行优化调整,增大景观活动区,确定了最终
平面。
最终确认平
面
分析图
项目名称 | 东海国际-云端会所
Project | East China Sea International- Cloud clubhouse
项目地点 | 中国 深圳
Location | ShenZhen ,China
硬装设计 | 新派空间
Hard Outfit Design | NEW DESIGN
项目面积 |
375㎡
Project Acreage |
375㎡
完成时间 |
2020.05
Completion Time
|
2020.05
-
End
-
客服
消息
收藏
下载
最近























