查看完整案例


收藏

下载
点击蓝字“新派空间”关注我们
NEW DESIGN | 新派空间 | 星光城公寓样板间
PRELUDE
序幕
01客厅
LIVING ROOM
温暖而含蓄的棕色系,它是入口即享丝滑的热咖啡,它既拥有基础的大地色调,又拥有百搭的灰色调。暗橙色与高级灰是客厅的主色调,灰色的不同明度也让空间更加丰富,透过大面的落地窗,阳光洒落在客厅中,整体色调营造了一个温暖舒适的氛围。
02 餐厅 DINING ROOM
每个物品都不是独立存在的,它们与使用者、空间发生关系,显得格外用心别致。餐具、摆件、花瓶呼应画眉棕的基调,将那份仪式感拿捏得恰到好处。
03厨房
KITCHEN
04主卧
MASTER BEDROOM
对于喜欢安静环境的人来说,棕色十分适宜装扮卧室。安静的浅灰色墙面与浅色的家具打造柔美、温婉的感觉,干净简洁的装饰画与电视柜上的红色饰品形成对比,空间立体构成丰富而饱满。
05 儿童房
CHILDREN ROOM
萌趣猫咪是儿童心中最好的陪伴者,猫咪元素充满整个空间,充满能量的整体色调激发天马行空的想象,在饱满的饰品与玩偶的烘托下,空间既童趣又温馨。
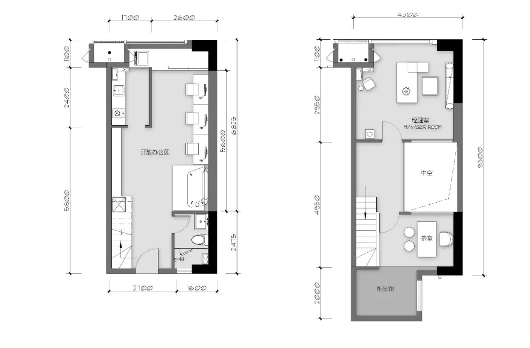
06平面图
FLOOR PLAN
NEW DESIGN | 新派空间 | 星光城办公样板间
Prelude
序幕
01开放办公室
OPEN OFFICE
随着经济日新月异的发展,年轻人群体作为职场的中坚力量,传统的办公模式与空间规划已不能适应新一代群体的需求,更多自主权及物理范畴被迫切需要。
作为空间设计师,能够做的已不再是单纯展示设计本身,而是以设计的方式,根据用户的特点,描述一种可能的工作生活状态。
打破传统封闭压抑的办公形式,通过削弱空间些许的独立性,营造办公室里高低处围合讨论的场景,实现公共区的视觉贯通,创造预留高效交流的物理动线。
02 茶水间 TEA ROOM
03 经理室 MANAGER OFFICE 二楼为独立的办公空间,设计简约、精致,将办公、会客接待、休憩等空间功能有机整合,体现安静、纯粹的状态。空间中的细节在不经意间展现出人文关怀,同时又营造了具有质感的格调。
04 会客室/作品间 RECEPTION ROOM/WORK ROOM
极简形态的办公属性,立面效果通过洞洞板的自由组合形式来完成创想办公理念,营造丰富的视觉层次。
黑白灰无色系双重视觉传达手法,既简洁明了的体现时尚办公氛围,又弱化硬装金属线条的突兀感,黑金的对撞形式增添酷酷感觉。
05 平面图 FLOOR PLAN
项目名称 |江门台山星光城样板间
项目地点 |中国 · 江门台山
软装设计| 新派空间软装团队
项目面积 | 45㎡、48㎡
完成时间 |2020.12
- End -
客服
消息
收藏
下载
最近

















































