查看完整案例


收藏

下载
点击蓝字“新派空间”关注我们
盘古.云世界
WORLD BIG DATA
对于新事物,人们往往只看到场景下的“金玉其外”,而形式和功能总是相辅相成,越来越多的年轻群体在满足功能的需求下追求个性化与差异感,创造性与艺术感,设计师立足于“以人为本”的基础上从功能出发,不再单是满足物理层面的居住功能,更是要达到有所栖、有所依,更多创造性、更多可能性的生活和家。
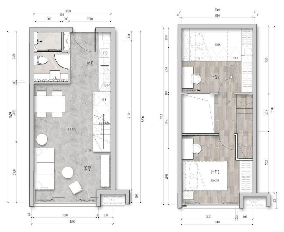
01. RESIDENCE 优美浓重浪漫 轻奢
户型 A 建筑面积:35㎡
定位:时尚优雅又富有个性的年轻夫妻
设计突破点:生活场景预设,合理空间分配,三口之家
定位于本地区从事科创工作的地缘性年轻客户群体,对生活情调与生活品质有着较高的要求。户型拥有两个卧室,解决三口之家的居住问题。空间多采用了富有造型感的装饰配件,打造符合年轻人的审美特征的生活环境。餐厅中空挑高的设计,弥补了复式结构压抑的特征,增强空间感。━
大面积落地窗将光与景自然地漫进空间,空间主调配以明亮温暖米黄色,让一切都缓慢了下来。居住者在一种自在且随意的舒适中,享用品质生活的美好与安然。
空间涵容着当代设计的美感和深度,饱含艺术的张力与渲染力。随温润的色泽缓缓流淌进居者心底,还原生活本来应有的容貌。
一杯敬朝阳,一杯敬月光,一杯敬自由,一杯敬梦想
在享受物质文明的同时,得到更多具有幻想力的精神上的慰藉,构成一个温暖且个性的理想 LOFT 居住空间。|平面图|
▲住宅样板间
02. OFFICE SPACE
时尚干练办公 简洁
户型 B 建筑面积:35㎡
定位:具有国际化视野的创一代年轻群体
设计突破点:空间做多元化的功能区划、“办公+茶室”的空间组合
考虑到创业群体的工作与生活方式的特殊性,在结构上对空间做多元化的功能区划,一层为员工办公区,二层为总经理办公区与休闲区,同时满足了“办公+休闲”的空间属性。
空间采用了明亮温暖的暖色调和科技蓝作为空间的主色彩,表现明亮的天花灯带犹如科技的脉络联系整个空间,让窄小的空间在视觉上变得宽阔修长,眼前一亮。━
浅色系墙面搭配具有科技感的蓝色艺术墙饰,为空间输入了强烈的科技感元素和艺术效果。客厅设计感十足的吊灯搭配高品质的办公用品,使“办公+居住”的空间组合既舒适又充满科技艺术感。
我们在自然的节奏流动中,在极简的空间中注入对科技的形态之美,让人感受来自不同形式冲击带来的韵律感。
二层的总经理办公室用充满神秘感的蓝色配饰引导空间中的科技感,阐述了对宇宙的好奇与向往,用纯净的白色家具来体现该空间高贵优雅、不容侵犯的气韵。
当现代与未来开始对话时,我们能通过空间的起承转合来找到衔接点。
|平面图|
▲办公室样板间
▲现场照片
项目名称:福州盘古.云世界样板间
项目地点:福州长乐区滨海新城区
设计团队:张楠、曹源、严奉华
设计面积:住宅样板间 35㎡ 、办公样板间 35㎡
设计时间:2019 年 10
完工时间:2020 年 05
End
客服
消息
收藏
下载
最近

























