查看完整案例


收藏

下载
MINSE DESIGN
民舍制作空间
设计工作室
Space 光与自然的共生
Feb 21th.2022
Copyright@MINSEDE
SIGN DESIGN / © 陈佳峰 贺赞辉
内心对质朴低奢日常的趋往,营造起居与自然的结合。
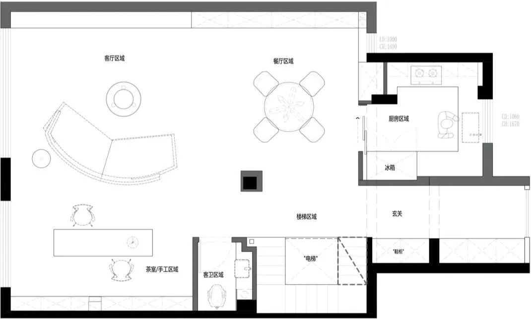
1F 平面布置图 1F Floor plan
2F 平面布置图 2F Floor plan
3F 平面布置图 3F Floor plan
将空间中的光、景、物等元素解构重塑,构筑出一处全新的空间形态。
Deconstruct and reshape the light, scenery, objects and other elements in the space to build a new space form.
顶面木天花的形态将灯、梁、设备等功能一体化归纳处理。
The shape of the top wooden ceiling summarizes the functions of lamps, beams and equipment.
室内陈设元素以原始质朴为主导,营造整体的空间艺术氛围。
The elements of interior furnishings are dominated by primitive simplicity to create an overall space art atmosphere.
将空间顶面的原始结构进行修饰,从中寻找一种平衡状态的关联性。
The original structure of the top surface of the space is modified to find a correlation of equilibrium state.
墙面石材斜面铺设处理方式是希望空间中光线能在某一时刻与其产生关联,为空间增加一些小惊喜。
The processing method of wall stone slope laying is to hope that the light in the space can be associated with it at a certain time, so as to add some small surprises to the space.
充满线条感的奶白色空间,罗马柱与石膏线条为空间增添趣味,营造温馨舒适的空间氛围。
The milky white space full of lines, roman columns and gypsum lines add interest to the space and create a warm and comfortable space atmosphere.
衣帽间区域水磨石与线条木门板的结合表现了现代主义的极简美感。
The combination of terrazzo and line wooden door panel in the cloakroom area shows the minimalist aesthetic feeling of modernism.
項目名稱:/ 光与自然的共生
項目地址:/ 江西
設計單位:/ 民舍製作空間設計
設計主創:/ 陈佳峰、贺赞辉
建築面積:/ 260 m²
項目類型:/ 住宅空间
歡迎轉發分享本文
You are welcome to share and repost this article.
以空间承载乐 以色彩记录趣
贺赞辉
杭州民舍制作空间设计工作室 联合创始人
2021 百度馨居奖全国 top50
2020 UNDER40 中国杭州设计杰出青年
2020 中国设计新青年华东 TOP50
2020 ADA 菲斯曼设计优秀作品
2019 金堂奖年度杰出作品
2019 年 IDS 设计星十佳作品
2019 亚太空间设计新锐设计师
绿洲:
-三贝-
add:杭州市滨江区江南岸艺术园区
圖文涉及隱私版權.如需轉載.請先通過文末的郵箱地址與公眾號管理員聯繫.我們會第一時間回覆.謝謝!
客服
消息
收藏
下载
最近


























