查看完整案例


收藏

下载
CHQMMA 鳄鱼综合格斗馆
综合格斗
CHQMMA
综合格斗即 MMA(mixed martial arts),是一种规则极为开放的竞技格斗运动。MMA 比赛使用分指拳套,赛事规则既允许站立打击,亦可进行地面缠斗,比赛允许选手使用拳击、巴西柔术、泰拳、摔跤、咏春拳、跆拳道、空手道、柔道、散打、截拳道等多种技术,被誉为搏击运动中的“十项全能”。
现代综合格斗运动把拳击、巴西柔术和摔跤等各种运动相融合,使其成为一个非常精彩的运动项目。
# 序言
设计 DESIGN
每个人的生命中,都有最艰难的一年,是你的奋斗目标,将人生变得美好而辽阔。
综合格斗对于人们热爱的“传统运动”来说,相对小众。但近年来,却有越来越多的人们开始热衷于“它”。
也许就像曾获第 39 届日本电影学院奖提名的日本电影《百元之恋》的女主一样,我们只有离开自己的舒适圈,才能真正改变自己。圣者渡人,强者自渡。
跑步、跳绳,没日没夜地对着沙包打拳,每一滴汗水,每走一步路,都是一个人的朝圣。这是一场心灵的救赎,对生活的奋力反抗。
前厅 功能性 Functional
露天花园 艺术感 Artistic sense
训练区
力量 Physical strength
次门头惊艳 Amazing
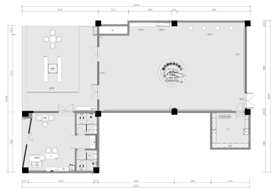
▼项目平面图
▼项目设计分析
这个项目的起初几经波折,因为甲方确定了几次才确定好最后他们需要设计的区域。(花园为商铺赠送面积)
我们需要的功能区:
1. 接待前台(需要谈单区、教练休息区)
2. 卫生间(淋浴房、蹲便、换衣区)
3. 等待打卡区、换鞋区、存包区(容纳 10-20 人)
4. 训练区、设备区(至少保证 130 平米)
5. 库房(洗衣机、晾晒区、存放区)
在分析了人流的走向后,商铺原始的入户大门,被我们改为了备用通道,全落地窗加上红色的消防门却有别样的视觉冲击力。我们大胆的把后街的区域作为我们的主通道入口,将赠送的花园区域围合起来作为我们的休闲打卡区,把一个原本只有 200 平米的店面,利用出了 300 平米的价值。
重庆鳄鱼综合格斗|CHQMMA
项目面积:300 平方米
项目地点:重庆市渝北区汇祥林里 3000 商业圈
全案设计:JD 集點设计工作室
设计师蒋宇婷毕业于四川美术学院(公共美术学院)室内设计专业,并一直从事室内空间设计相关工作至今。期间先后从事过地产住宅、酒店、小型商业等业态的设计服务工作,并最终在 2019 年成立了自己的设计品牌 JD 集點设计工作室。集點设计工作室,一家注重空间设计灵魂,空间的实用多变性,提倡空间内外的交互性与创造性的设计机构,尤其擅长酒店、餐饮、新零售等多种新型商业模式的空间设计。
客服
消息
收藏
下载
最近



















