查看完整案例


收藏

下载
标题:
瑶台人间一模样
揽过万般风情入怀
墨香花开千回百转
序言 PREFACE:
和Seven相识已是第七个年头,他是著名美妆品牌的区域讲师,可谓是护肤界的“李佳琦”。他对家的定义是“舒适”、“独特”、“鲜明”就如他多彩的生活一般,有声有色,不被风格的定义所拘谨。
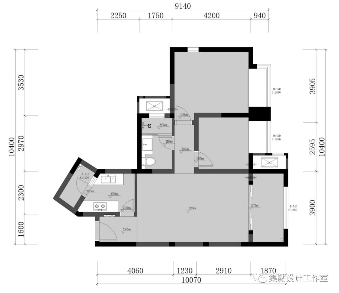
改造前户型:
1.
原始入户没有鞋柜储物空间,一进门就看到强弱电箱。
2.
厨房动线不合理,没有冰箱的置放处。
3.
开发商预留的空调位置全是柜机和挂机,无法满足当下的实用
性
和美观性。
4.
卫生间无法满足业主需要浴缸的需求,布局需要改动。
5.
墙面造型老气过时,卫生间浴室柜俗气,客厅踢脚线是黑色砖踢脚。
改造前现场:
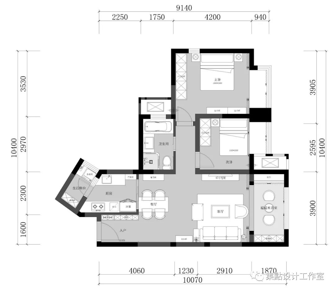
改造后功能布局:
一、
未改动区域:
1.
地面:客厅地砖未改动,卧室木地板未改动。
2.
墙面:厨房和卫生间的墙砖未改动,工程改造损坏的区域挑选接近的砖补贴。
二、
改动区域:
1.
原始厨房单门洞重新起砖墙,厨房重新开双门洞。可以放下双开门冰箱。
2.
原始橱柜粗糙不合理全部拆除重新做。
3.
客厅砖踢脚线全部拆除换做
80mm高黑色实木踢脚线。
4.
原始卧室的门全部喷黑色漆,卫生间门重新做谷仓门。
5.
卫生间全部水路改动,改动后的卫生间有浴缸,淋浴房,智能马桶,地砖改动。
6.
空调全部加装风管机,重新吊顶及石膏阴角线。
7.
客厅墙面做分色半墙设计,石膏线条作为装饰。卧室用上蓝绿色彰显业主的
“独特个性”。
客厅
DRAEING ROOM:
客厅墙面的拼色设计,运用了蓝绿色和淡绿色,电视柜和单椅的撞色将空间变得鲜活明亮,地毯主沙发的中性色调,又将空间沉稳的协调。黄金比例分割的石膏线条将原始平淡的空间变得灵动有层次感。
原始休闲阳台滑门拆除后,延伸了客厅的视觉感受,榻榻米的设计充分扩大家庭的储物空间,榻榻米左右两边分别是业主供奉的“佛台”(有福帘作为私密遮蔽),右边是业主平时会办公及美妆的空间。
因为业主美妆货品很多,所以在坐墩的选择上也是带储物功能的,坐墩可以足足存放100瓶精华液。茶几不仅通透美丽,还有很大的储物空间。沙发背景装饰画的大小设计,也显得空间趣味十足。
餐厅
DINING ROOM:
Seven的香水有100多瓶,玻璃装饰柜充分满足了业主的收纳爱好(只展出了一部分业主收藏)。原始餐饮区域并不宽裕,所以装饰柜以及餐边柜我们都选择了玻璃柜门,这样不仅满足了业主的储物需求,也不会使得空间压抑。
从餐厅处可看到入户厅,入户从墙面和顶面都用木色做了一个围合设计,使得回到家里有安全感,左边鞋柜连着顶面及右边有黑色拼色柜体设计,黑色鞋柜对着黑色背景的全身镜,确实别致。
改造后的厨房滑门,将生活阳台的光线通过厨房引导餐厅,加上玻璃滑门的改动,使得整个餐厅变得明亮,视线也变得开阔有延伸感。色相明度更高的蓝色座椅和灰色座椅与客厅色彩相得益彰。黄色与红色的装饰画,点燃空间的“情感”。
卫生间
BATHROOM:
改造后的卫生间更改了地砖,墙砖未改动,增加了浴缸、热毛巾杆、淋浴房、智能马桶。黑色金边的浴室柜显得精致高雅,黄色浴缸开启自己的放松与愉悦。这样的卫生间让精致的seven有了更加美丽的心情开始每一天的归途与旅程。
卧室
BEDROOM:
将回到卧室引入眼帘的窗户加以装饰,将客厅蓝绿色运用到主卧室背景墙,湖蓝色作为其他空间的色彩。与客厅主沙发统一风格的美式床,在混搭风情中又有自己坚守的独特品味,家里的每一处都是业主精致生活的展现。
项目信息
项目地址 | 重庆金科.十年城
设计单位 | 集點设计工作室
项目设计 | 林丰 蒋宇婷
项目性质 | 全案设计
商业合作 | 设计咨询
E-mail:
ADD:重庆市江北区龙湖新壹街A馆1号楼20-04
客服
消息
收藏
下载
最近


























