查看完整案例


收藏

下载
前言:
设计单位|KD恺邸设计事务所(设计师蒋宇婷在职案例)
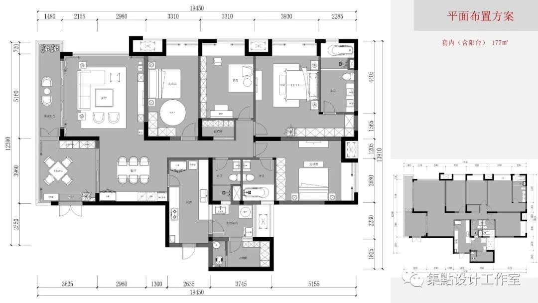
项目面积|177平米
项目设计|蒋宇婷 JIANG
项目地址|雍江艺庭
改造费用
|
20W
改造前平面布置图
改造前入户
改造前客厅
改造前餐厅
改造前主卧室
改造前儿童房
改造前次卧
改造后平面布置图
改造内容
1. 除入户地面,室内地暖改造,地面全部改为木纹砖
。
2. 墙面原始白色乳胶漆剔除,全部改为艺术质感漆。
3. 局部插座位置改动,顶上造型未改动。
4.
卫生间原始墙砖地砖改动。
5. 柜子重新设计,整体软装搭配。
改造后效果呈现
入户
HOME ENTRY:
客厅
DRAEING ROOM:
餐厅
DINING ROOM:
主卧室 MASTER
ROOM:
儿童房 CHILDREN′S
ROOM:
次卧室 SECOND
ROOM:
三年前软装方案鉴赏 后期家具方案有调整
商业合作 | 设计咨询
E-mail:
ADD:重庆市江北区龙湖新壹街A馆1号楼20-04
客服
消息
收藏
下载
最近












































