查看完整案例


收藏

下载
——让灵感自由释放,创造一个心灵渴望的空间!
项目名称
▏ 旭辉府
项目面积
▏ 107㎡
主案设计
▏ 杨伟杰
软装设计 ▏ 郑莎莎
设计风格
▏ 现代低奢
▼ 方案展现
现代低奢风格,注重功能和空间组织,造型简洁大气,深度展现生活品质
▼ 光照分析
本案通过对光照二十四小时的分析,还原真实光照状态。室内充分引入自然光,房间角落无采光死角,空间通透明亮,极大程度提高居住舒适性
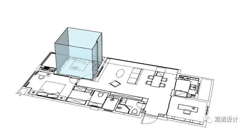
▼ 动线说明
户型动线主要分为三条线:居住动线、家务动线、访客动线。它们之间明显地分隔开来,起到各不相同的作用,很好地将住宅更为合理、科学地分成了不同的活动区域
▼ Porch / 玄关
入户玄关以深色调为基调,沉稳而低调
▼
Show
/ 细节展示
玄关右侧一组黑色玄关柜,归家之时可放置包包或随身钥匙;
墙面以同色系木饰面搭配金属凹槽,通往卫生间的暗门隐藏的恰到好处
入户玄关左侧以护墙形式打造了一组封闭式柜子
打开柜门,左侧两块木板给人以装饰性的误导
实则里面暗藏玄机,强弱电的位置便在这里
▼ Study / 书房
时尚的诗意隐藏在世间的创作中
黑色木饰面吊顶延伸至书房门口,神秘且安宁
深玻穿梭于世俗之间,延伸了空间,沉稳而不失韵味
▼
Kitchen
/ 厨房
▼
Show
/ 细节展示
橱柜色彩搭配与玄关处色彩相呼应
橱柜三面围合
尽情收纳人间烟火气息
▼ Living Room / 客餐厅(客厅)
空间游走于黑白灰之间,搭配棕色木饰面,一抹中黄便成为点睛之笔,活跃跳脱
飘窗部分木格栅与LED长条灯的完美结合,足以撑起整个气场
▼
S
how
/ 细节展示
玄关处木饰面延
伸
至客厅收纳柜
采用封闭和开放式装饰柜相结合的表现形式
空调出风口、回风口设置在柜体上方,合理巧妙的避开了空调摆放位置的尴尬
一定程度打破了传统柜体呆板单一的形式
集空调、灯光、窗帘、音乐控制于一体的声控
、
触控面板
及涵盖三种灯光模式的智能面板
打破常规开关模式
将科技融入家庭
便捷的同时促进人性化体验
电视机背景以岩板搭配深棕色木饰面
台面岩板延伸至木饰面柜体
丰富层次感的同时也加强了视觉体验
▼
Restaurant
/ 客餐厅(餐
厅
)
客餐厅一体,空间整齐划一
采用餐桌和导台相结合的方式,导台下方做烤箱和收纳
顶部仅以白色乳胶漆,净如天空
黑色磁吸灯、LED射灯组,以及餐桌上方下挂的玻璃主灯
不同角度的介入
宛若人与人的相遇是星辰,相互辉映,彼此照耀
▼
S
how
/ 细节展示
餐厅导台一侧为储物,以深色亚克力板做柜门,和黑色大理石飘窗很好的融为一体
右侧则是烤箱的摆放位置
台面延
伸
至窗台
大大增加了导台的使用面积和美观性
厨房和书房大门同时使用深玻作移门
一定程度上保证了空间的整齐划一
▼ Master Bedroom / 主卧
背景的原木色彩挺阔直接,线条清晰可见
背景与灯光结合,丰富了层次,彰显了细节
步入式衣帽间选用长虹玻璃,简约不失时尚
空间处于开合之间,别有一番风味
轻纱浮动,灯光微醺,让整个世界柔软起来
▼
S
how
/ 细节展示
长虹玻璃的巧妙运用
隔绝了主卧、衣帽间和主卫
让看似并无关系的三个空间成为一个整体
▼ Bathroom / 主卫
功能的运用还体现在创造和动线合理上
主卫以深色为主基调
沐浴后,移门打开,豁然开朗
衣帽间引入眼帘,卧室仅在眼前
取衣换衣,一收一放,为平凡的生活注入仪式感
▼
S
how
/ 细节展示
主卫台盆柜的使用与收纳功能
▼Guest Bedroom / 客卧
咖色绒面硬包搭配深色木饰面,低调且内敛
空间游离在黑白灰之间,注重硬装手法的简洁,但也并不像一般的简约风格那样随意
顶部一缕射灯的送达,透露出纯净以外的灵性
▼
S
how
/ 细节展示
次卧矮柜的使用与收纳功能
一本书,便可心静良久
一杯茶,足以忘却尘梦
...
椒江:开发大道1500号东泰·万华汇五楼
路桥:银安街127号天和壹号商铺
黄岩:西城街道世纪大道10-4号
温岭:万昌中路鞋业大厦8F
客服
消息
收藏
下载
最近






























































