查看完整案例


收藏

下载
“最高级的表达并不是从无物中创造事物,而更像是轻叩既存之物,从而呈现出这个世界更加鲜活的一面。”——李禹焕
放松 自然 素雅
温馨 趣味 热情
项目名称:京都悦府叠墅
项目位置:浙江省台州
设计范围:全案设计
设计面积:230平方
风格定位:现代风格
主案设计:徐波
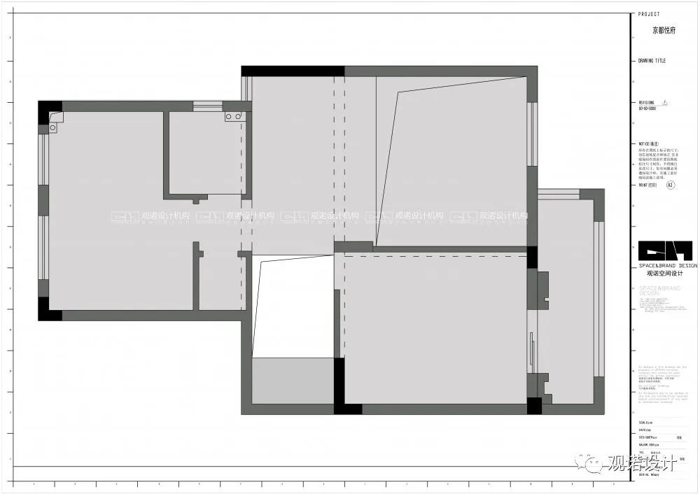
一层原始结构图
一层平面图
二层原始结构图
二层平面图
三层原始结构图
三层平面图
滑动图片往左,翻看更多
▼客厅 /THE SITTING ROOM
灵活运用黑白灰和艺术装置,不仅贴合了整体空间的设计主题,而且营造出一种品质高雅的气质。
▼书房 / THE STUDY
▼餐厅 /THE RESTAURANT
▼主卧 /THE MASTER BEDROOM
<空间的形成>
简约素雅的设计,在色调与材质上的相互呼应,让层次感与格调兼备!淳朴自然的素净居家,设计简洁但具有充足机能,不过分雕琢的自然素材,发自内心的冷静,无意间的雅美。
椒江:开发大道1500号东泰·万华汇五楼
路桥:银安街127号天和壹号商铺
黄岩:西城街道世纪大道10-4号
温岭:万昌中路鞋业大厦8F
十一周年庆典
8月24日—9月20日
随时等候您的莅临!
客服
消息
收藏
下载
最近




















