查看完整案例


收藏

下载
点击蓝字 关注我们
Mid-Autumn
Festival
家是一种文化,是一段时光,一种情怀
......
这路遥马疾的人间,有个简约温馨的家就好。
设计师雷佳和业主的合影
设计师
:质鼎国际设计 雷佳
地址
:浦东新区世贸湖滨花园
户型
:两居室
面积
:120平方
预算
:19万
业主需求:
业主一家四口,夫妻二人和两个孩子。业主家希望装修适合生活且不失时尚,化繁就简,归于日常。
设计理念:
设计师大胆选用莫迪兰灰作为主色调,房间整体现代时尚却不浮夸,时尚中充满了生活的气息。设计师在简单而不失质感的设计中,为业主量身定做了一款精致且温馨的简约风家。
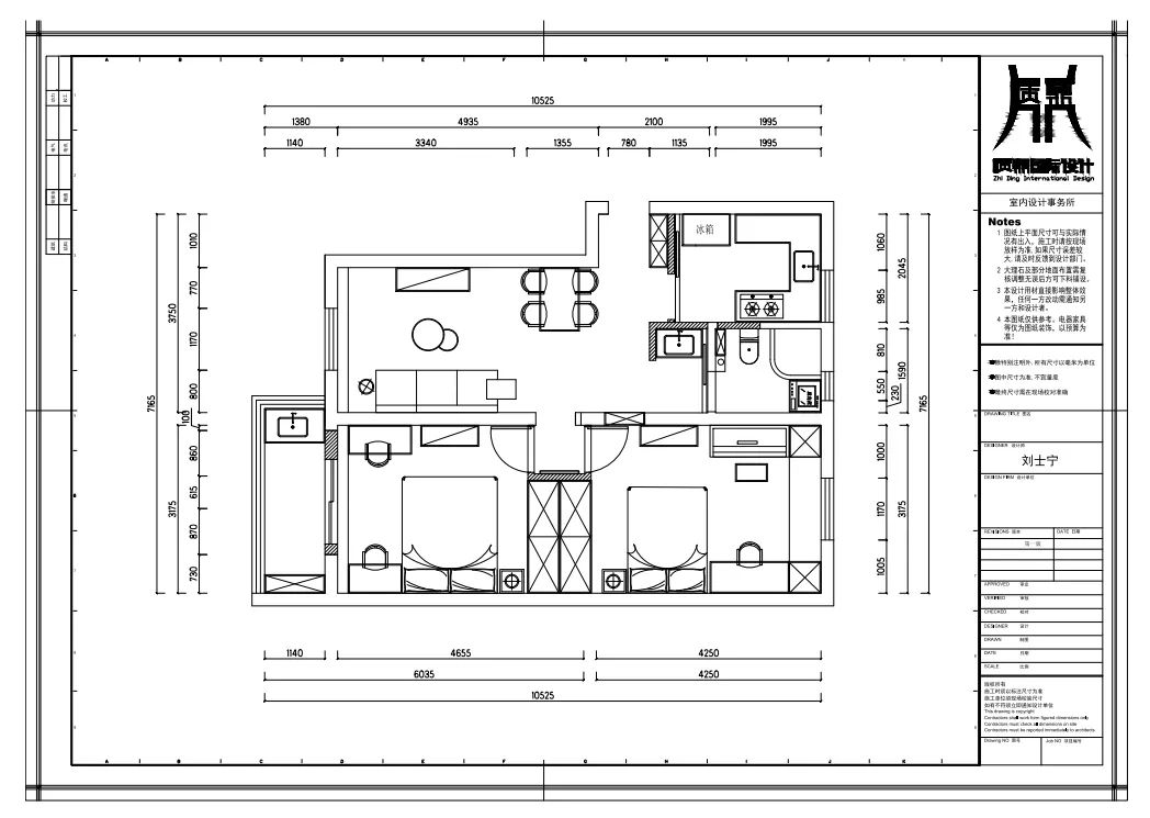
▲
平面图
客厅
客厅使用白色作为空间的主色调,为整体简约的风格奠定了基调,小小的黑木茶几搭配别致的沙发,精致的家具营造了不同的韵感与雅致。
一个人,一本书,一杯茶,一帘梦。
客厅
餐厅与客厅一体设计,棕与白的碰撞,将肤感板材与木饰面的肌理纹路与触感完全释放,更显温度与温情,一体化的定制,做到小空间大制作的视野感受。厨房与餐厅毗邻,方便于日常生活!
卧室
卧室作为主人休憩放松的空间,主卧室沿用了客厅同样的莫兰迪灰为主色调,柔软的布艺家居在复古高级感的台灯点缀下显得十分的温馨浪漫,通过不同材质的对比,巧妙地营造出了法式轻奢与舒适共存感。
儿童房
上床下桌不仅节省空间
,
室内空间得到有效利用,让儿童房能多住人的同时也添加了孩子的游戏空间。书柜放置于卧室,更有利于孩子未来的学习和兴趣的培养!
厨房
厨房是长形的户型结构,设计师采用方形地砖铺设,色彩跳跃富有活力,原木的橱柜更能保持厨房的卫生,L型橱柜搭配白色吊柜,构建出干净清爽的厨房空间!
卫生间
几盆花摆放与阳台,给空间增添三五分绿意。简易沙发放置于阳台,方便随时享受温文的阳光!
往期推荐
教师节|致敬恩师,盘点各科老师喜爱的装修风格
超有用的装修攻略!按照这些步骤,不走歪路!
现代简约风,小户型要这样搭配!
或拨打400-805-0808
了解更多家装资讯
客服
消息
收藏
下载
最近


















