查看完整案例

收藏

下载
日新月异的时代里,我们的家早就已经告别了“住”这种最低要求,软装设计越来越受到业主们的关注。家不仅仅是生活,也需要诗意的空间感受,来满足每个人心中对于“美”的追求。视觉设计是融合了色彩,图案,材质,光影等等多学科的综合体系,作为设计师,这简直是没有尽头的修行~~好吧,那我们就从每一个案子入手,在学习,探究,比较,融合中成长。今天分享的这个案子是一个售楼中心,这样的空间往往集合了更多元更前端的软装设计手法,第一眼就被它优雅的质感,冷静的艺术表达所打动。能营造出情绪的空间,就是好的设计!有时候,我们无需跋山涉水,只需要花些小心思,家中就能有诗和远方。
——诗享家:程启超
项目名称:西安万科翡翠国宾营销中心
项目地址:陕西 西安
业主单位:西安万科
项目面积:2023㎡
软装设计:深圳市布鲁盟室内设计有限公司
冷静优雅的当代空间
现代人对空间的追求早已不止于舒适和美观,设计师把对生活空间的思考转变为对艺术的态度,让当代艺术与人文美学携手营建风景,西安万科翡翠国宾售楼处正是这样的实践——艺术观照下的当代空间,冷静而优雅。
古典和现代、极简和装饰,并不是一种进化论式的关系,无所谓先进与落后,无所谓深刻与浅显。在喧嚣骚动的当代创造一番宁静肃穆的优雅,以艺术的丰富和New Art Deco的审美取向成就一种独特的创意营造,设计向人们呈现了一个美学力量和艺术精神兼具的空间。
洽 谈 区
New Art Deco的优雅形制和现代设计的凝炼笔触交叠,艺术与生活于此交错。空间色彩能够在第一时间影响人的情绪体验,布鲁盟设计结合当代人的审美特点,综合考量了色彩的艺术特质和感受体验质素。
原木的自然亲和平衡着人的内在情绪,而相对降低饱和度的绿色、灰紫等显示出时尚气息,以及介于传统与现代之间的独特个性,别致而耐咀嚼。
空间软装陈设在理性秩序中体现艺术品味,糅合古典元素的当代艺术符号让空间迸发出鲜活的美学力量,空间气韵妙然新生。
外观简约现代的沙发带有几何纹理的装点,而象征着抽象表现思维的几何造型水晶体、隐喻古典人文的石膏雕塑,则以摆设艺术品的角色出现,让异质化的审美体验和人文哲思共同丰盈空间的精神世界。
质感灰色奠定了空间沉稳内敛的底色,局部沉郁神秘的黑色,气质尽显。木饰面墙上的几何组合挂画,拥有鲜明的装饰效果与简洁的形式,不同的色块组合,不同的材质碰撞,直入想象和感受的本真境地。
设计师提取New Art Deco的摩登多元,形成丰富的视觉单位,让当下的实存与艺术的瑰奇世界联姻。
VIP 室设计
VIP接待区设计,典雅和现代的气息并重,这里有情感的纯粹,但摒弃了抽象逻辑语言的冰冷,略带有“杂质”的灰色调,从清晰明朗过渡到暧昧多义,它是沉稳的,也是舒缓优雅的。
空间的家具配设同样遵循此理,几何造型的规则感和浪漫的沙发裙摆,共同演绎着当代质感空间的美学风度。
沙 盘 区
沙盘区的设计中,灰色的当代空间,天花是设计的亮点,不胜枚举的水晶石由上垂落,仿若纷飞的雪花,自漫漫天穹飘散而来。整个空间在简洁中散逸出悠然的气息,设计的当代感与自然的气韵交融。
过 道
过道空间亦将艺术的气脉静静抒写,黑与白的世界默然相望,涵容着古典和抽象表现的精神,端然的姿态,沉静的形式语言,指向更高远的意识领域。
经过一个旋转楼
梯,可通往位于负
一层的运动、休闲空间,这里特设有瑜伽室、室内泳池等。布鲁盟设计将当代设计的艺术品味引申至此,让雅致格调去向生活的每一个层面。
沉凝的大理石地面,在静寂无声中,流散出如水的轻灵安详气息。拥有优美弧线造型的楼梯,与天花的吊灯形成互动,从不同角度都能呈现出绝美的艺术风韵。
设计图纸
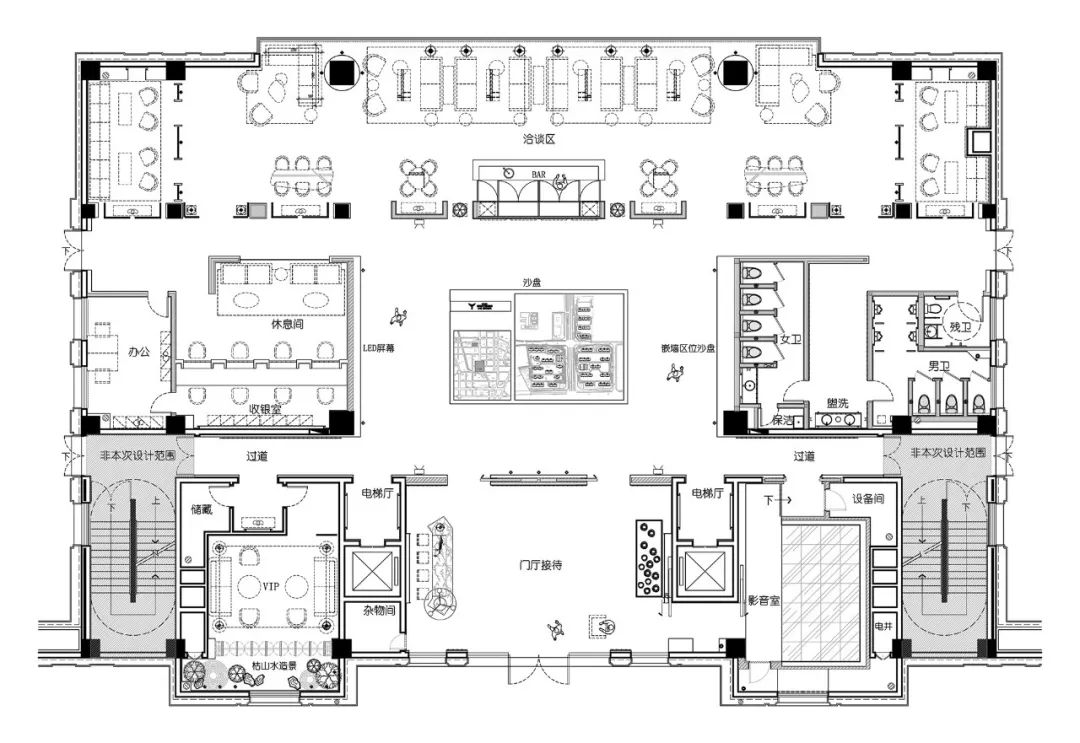
一层 平面图
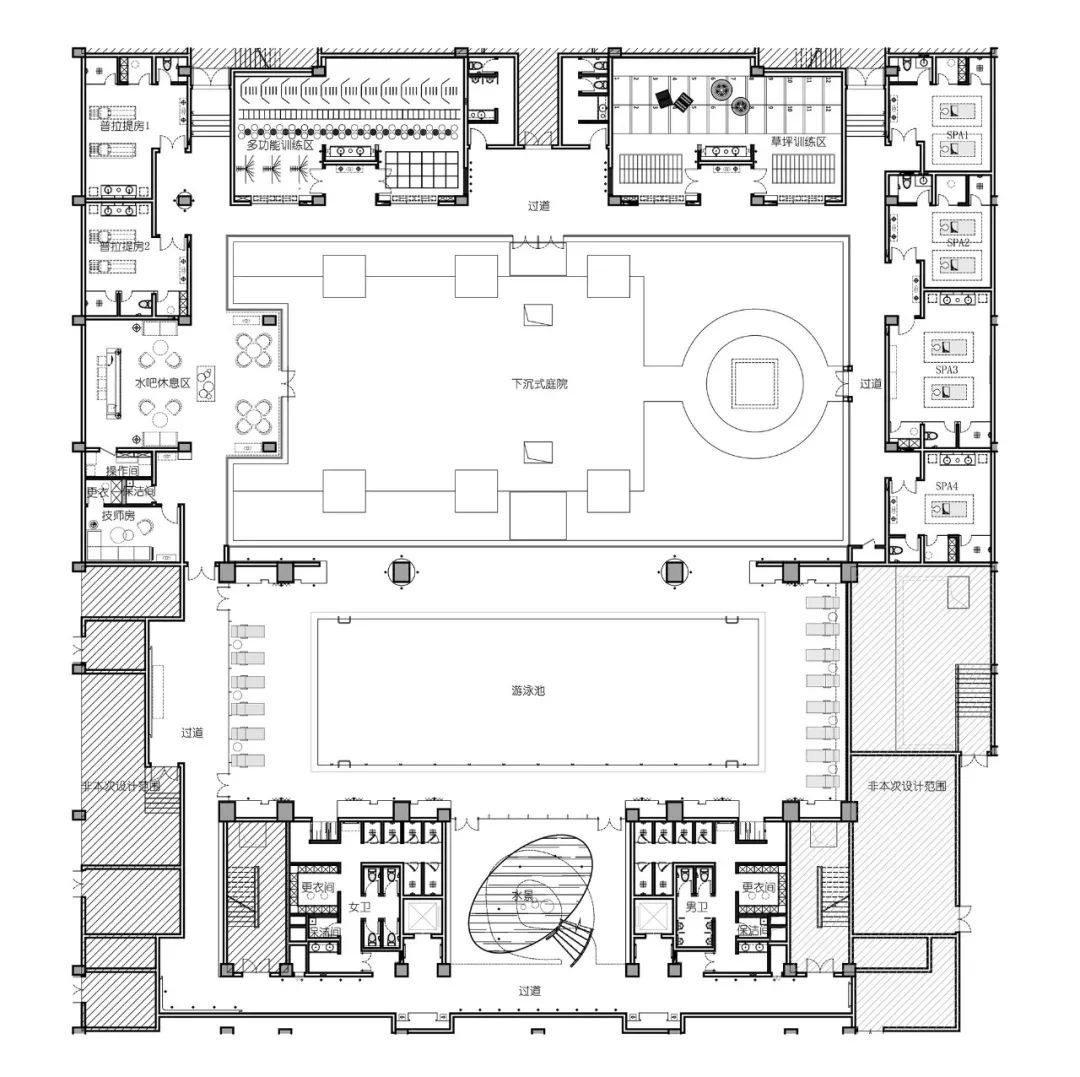
负二层 平面图
●
●
●
|您可能还喜欢|
🔗
作品实景:当我们让空间更“open”,竟收获一个如此惊艳的家!
🔗
作品实景:大胆的材质与配色,打造酷感十足的摩登工业风!
🔗
作品实景:拥有一个少女感炸裂的家是种什么体验?
🔗
作品实景:这个时尚而精致的家,就是最美好的官宣!
🔗
作品实景:用柔和的色彩,把网红INS风装进家!
🔗
作品实景:一套房子7种不同配色方案,现代简约风也能如此出“彩”!
🔗
作品实景:楚天都市雅园|打通两套三居室,颠覆性改动带来一个极具互动感的家!
🔗
作品实景:万科金域蓝湾|这个家把高级灰演绎得如此惊艳
🔗
作品实景:复地东湖国际|优雅新中式,做隐居都市的浪漫客
🔗
作品实景:汉口城市广场|鸭梨家,就要如此俏皮又前卫
🔗
作品实景:华侨城|饱满的色彩打造质感空间
如果你也喜欢这么美好的家
可以咨询小诗预约设计师哦
▼
我们的荣誉
2018Hi-Design第六届室内设计大赛优秀奖
2018年度得意家专业设计引领品牌
2018广州设计周 40UNDER40中国(湖北)设计杰出青年奖
2017中国空间设计大赛“鹏鼎奖”十佳豪宅空间奖、十佳公寓空间奖
2016国际空间设计大奖“艾特奖”
最佳陈设艺术设计奖
2016Hi-Design第四届室内设计大赛优秀奖
2016湖北室内设计总评榜住宅空间优秀奖
2016第七届“筑巢奖”优秀作品
2016得意生活最受网友欢迎装饰/设计品牌
2015年青年文化创意奖
2012-2013中国国际建筑装饰及设计博览会年度50强商业规划及空间设计师
2011广州设计周金堂奖
2011“亨特窗饰杯”首届软装100设计盛典优秀作品奖
2008年武汉十大设计师优秀奖
2007威能杯设计师大赛武汉赛区银奖
发表的设计作品也被国内各大杂志采用,如《瑞丽家居》、《精品家居》、《南方周刊》、《BOSS》、《顶尖样板房》、《装潢世界》、《名石、名师、名宅》等,武汉的《第1生活》、《幸福》、《易网湖北》《腾讯大楚网》等等
TEL / 027-88925856
地址 / 徐东国际联发大厦1111
- 诗意家居 雅致生活 -
有人说,设计是放,艺术是收。
我们旨在一收一放间,
将艺术完美地融入到生活的柴米油盐中,
让每一个作品都成为生活的艺术。
设计,让生活更美好。
客服
消息
收藏
下载
最近













































