查看完整案例


收藏

下载
点击蓝字,关注我们
高级的空中花园餐厅都是需要通过高级的设计来凸显的,如何设计才能让自己的空中花园餐厅在餐饮界脱颖而出呢?广州天台餐吧就做到了这一步,其通过专业的餐饮设计公司为其打造高端、时尚的空中花园餐厅设计来营造一种时尚氛围。
为何要给空中花园餐厅铺设计营造一种高端、时尚的时尚氛围呢?因为既然是空中花园式餐厅,就需要营造一种时尚可以让年轻人形成打卡的心理,这样才能让餐厅在开业以及后续运营中获取持续的复购跟引流。所以在空中餐吧设计中还是需要花费不少的心血。
基于空中餐吧负责人对于空中花园餐厅的设计需求,壹零柒餐饮设计公司结合现场的情况考核:
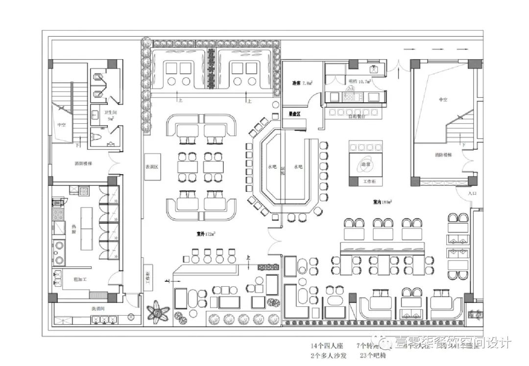
【餐厅类型】:空中花园餐厅
【客户需求】:高端,时尚,灯光,氛围
【设计时间】:22天
【场地面积】:1050平方米
【风格】:现代高端
【主题】:科幻而神秘
【功能空间】:室内,室外,露天,吧台,卡座,舞台,包间
壹零柒设计师为其空中花园餐厅设计的思路是:
以“天外来物”为设计理念,将地外科幻元素带入到设计中,融合现在时尚潮流元素,意在打造一个地外空间,一个充满神秘感的高端餐饮空间,仿佛置身于地球之外。
最终空中餐吧负责人的品牌负责人给予了此次空中花园餐厅设计案例很高的评价,认为设计师真正站在客户角度和消费者角度为我们去解决问题,真正做到了为客户着想,最终设计效果也超乎预期。
毕竟广州壹零柒餐饮设计公司从业10余年来积累了丰富的项目经验,曾获得广州设计周餐饮、酒吧最佳设计公司等知名奖项,餐厅老板通过其过往的一些餐饮设计方案及其效果图,就能看到很多广州旺铺的例子,也得到了不少网友的推荐。
通过空中花园餐厅设计效果图可以看得出来,实际落地效果还是不错的,凸显高端时尚风,为空中花园餐厅的后续运营吸引更多顾客,壹零柒餐饮设计公司是认真的。
对于有设计需求的空中花园餐厅可参考此案例,广州壹零柒设计团队将会是你的不二之选。免费咨询领取餐饮空间设计效果图,为您定制出网红空中花园餐厅设计方案。
客服
消息
收藏
下载
最近










