查看完整案例


收藏

下载
项目地址|清华园
建筑面积|305
㎡
风格定位|欧式
空间性质|排屋
设计施工单位|嘉兴市青禾装饰工程有限公司
设计师|范小瑛
摄影|Andy
记得是2017年初秋的一个午后,那是我第一次见到本案的业主曹总,给我的第一印象就是温文尔雅,待人诚恳。在相互介绍后的交谈中,我渐渐了解到业主一家人
享受生活,热爱旅游的生活理念
,每年总会抽出时间去世界各地旅游。常年负责公司销售业务的曹总侃侃而谈,不管是浪漫的欧洲之旅中经历的点点滴滴,还是原始热情的非洲旅途上的人生感悟,都毫无保留地与我共享。这次充满乐趣的初识,说是本案设计工作的灵感源泉,那是一点都不为过了。
正是由于业主对欧洲文化的喜爱,最终决定以欧式风格装饰新居
。欧式风格的特征是强调线形流动的变化,将室内雕刻工艺集中在装饰和陈设艺术上,色彩华丽且用暖色调加以协调。
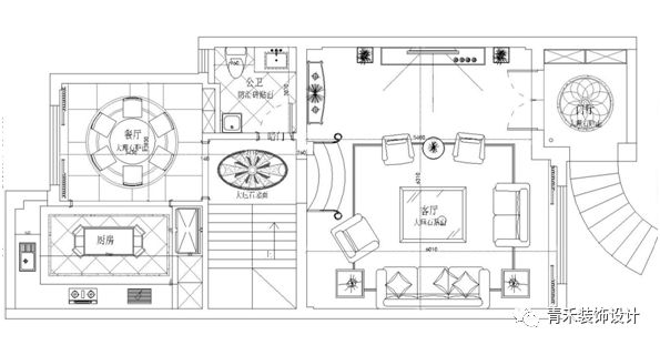
一层为会客的一个大厅,餐厅与厨房的一个区域,最能体现整个风格的一个区域。它在形式上以浪漫主义为基础,常用大理石,华丽多彩的织物,精美的地毯,多姿曲线的家具,让室内显示出豪华,富丽的特点,充满强烈的动感效果。
二层为主卧室区域,南面房间面积挺大,拦出一个衣帽间的区域来用于收纳空间,业主喜欢有造型,线条凹凸明显,所以在床背景用了木饰面与硬包相结合做的一个凹凸感明显的欧式造型。北面房间用于工作,做了书房与客房的结合。工作晚了则可在不打扰对方的情况下在客房休息。书房是个私密的空间,收藏业主喜欢的东西,连家具都是用了一部分中式家具。
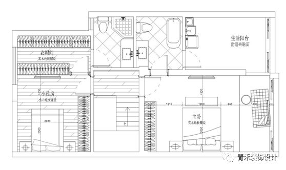
三层是业主的女儿房间,便不像二层那样使用深色,三层以素雅,清爽的浅色为主。墙面护墙与墙纸的结合,简约大方又不失典雅。女儿房进深比较深,在窗口位置做了抬高,放置贵妃椅,使空间有一个层次感。
整个装修过程中,真心感谢曹总一家人的大力支持,才有了现如今的整体效果。在农历新年即将来临之际,我代表青禾装饰,恭祝业主新居鸿运,百福具臻!
客服
消息
收藏
下载
最近





























