查看完整案例


收藏

下载
Introduction: “初九:潜龙,勿用。”《易·乾》
“初九”不是住宅,他只是罗先生的“玩场”,避世,游戏人生。
侘寂(Wabi-sabi),是一种思想,一种美学,一种世界观,指的是朴素又安静的事物。在这个案例里,HSU 重塑空间“侘寂”,营造出了初九的寂静、谦逊、自然感,似乎带来了另外一种全新的侘寂风。
步入玄关,光院营造的绿意衬托出锈板雕刻的“初九”,通过交椅的力量带入另一个时空。进入室内,运用灯光营造出了空间的神秘、深邃感。李小龙作为空间的视觉焦点,他的眼神凝聚成一股力量从柱子嵌入的圆球穿透出来,放大了视觉效果,带来破坏感和虚实感。设计主张“不对称主义”,呈现一种不对称却包容的美。
空间在一定程度上遵循着解构主义的设计原则,用分解的概念,将部件进行叠加、重组,对整体呈现出一种分散却又统一的不确定感。设计中弱化了空间中的线面穿插感,同时在胡桃木盒子包裹的时光长廊中,情感被李小龙牵引穿越到另一个平行宇宙中。
古董马的高级感涌晒出来,真系无得顶啊!
设计用一种冷淡的折衷主义,以灰色调为主。水磨石及胡桃木色系的搭配,让空间的冷峻感更温润和富有自然气息。就像许工所追求的那样:“初九的设计以新侘寂为概念,老的东西需要重复到访和思考,意在和当下重新组合焕发新生。”
Name|项目名称:The Horizon |初九
Location|项目地点:Shantou,China|中国汕头
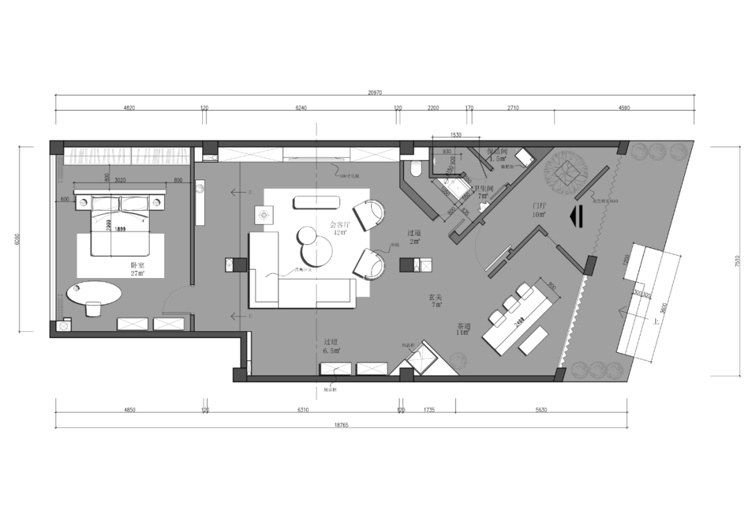
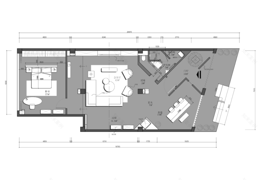
Design area|设计面积:133M²
Completion Time|竣工时间:2020.11
Executive Creative Director |设计总监:许业功
Interior Design|主案设计:陈晓生
Photography |摄影:邱少雄
公司自创立起,品牌秉承“5H 精神”-高级的(High),真诚的(heartily),活力的(Happy),可期的(Hope)和 Hsu 的。HSU 设计善于将空间的实用性及艺术性发挥到极致,创造属于自己的设计潮流。不断从生活方式中汲取灵感,重塑空间美学,打造优雅时尚的生活体验。
设计总监/许业功
殊荣|Award
2021「设计千人
|公司地址|汕头市金园路弘烨楼 801
0754-88880191
客服
消息
收藏
下载
最近























