查看完整案例


收藏

下载
Introduction
引言
设计就是生活方式的设计——索特萨斯
-----------------
这是一个中国汕头尚海阳光的案例,
同时也是设计师之家。
这个平面设计的目的
是为了满足实用的空间完整性和生活功能的流畅切换
,我
从生活方式中获得灵感,
创造出
一个干净,实用,富有生命力的
空
间
,
在轻松的氛围中加强人
与人之间的
交流与沟通。
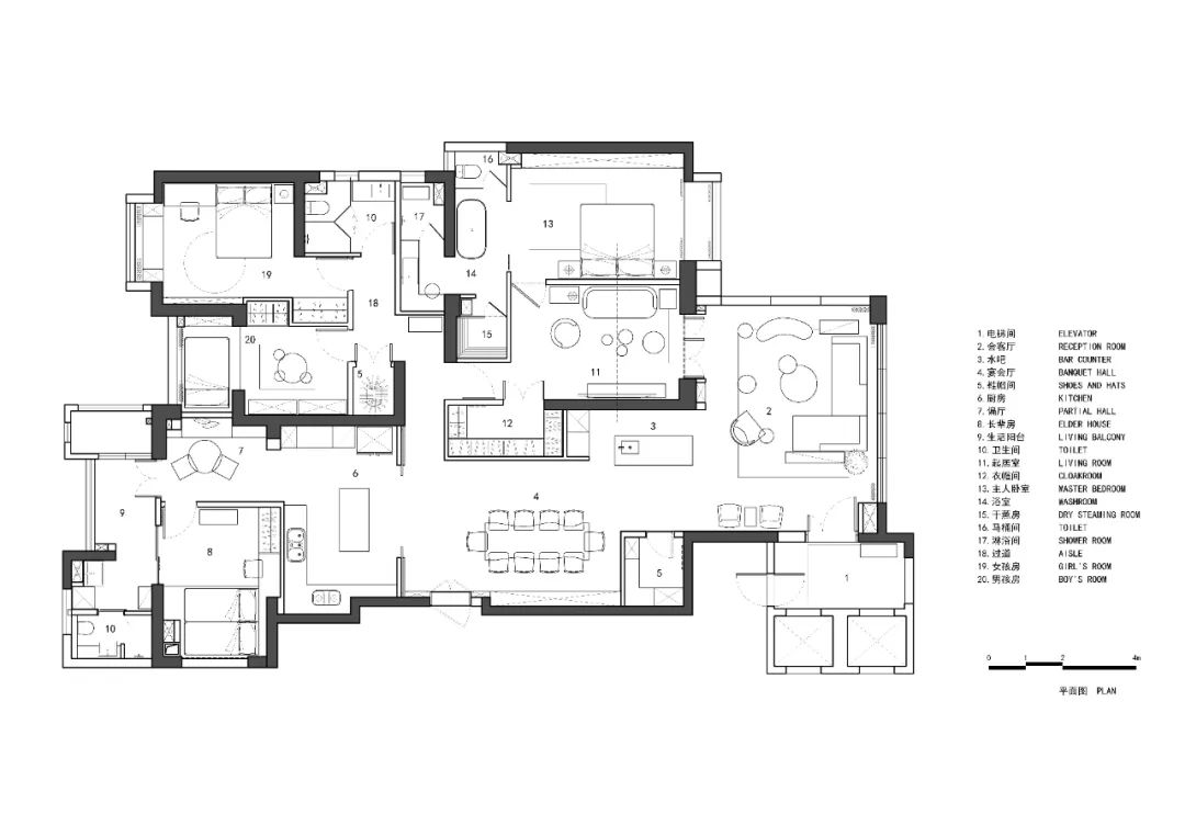
会客厅连接家庭厅与水吧关系,
同时水吧满足了家人
从喝茶到红酒的功能切换
。平时
会客厅空间完全交给主人会客使用,小朋友则
在家庭厅内
影音与
娱乐
,需要时会客厅又可作为亲子阅读厅使用。
这两个厅之间动线流畅
,空间可开可合。
宴会厅满足多人用餐,旁边柜
子随手可得的酒水,酒杯餐具等无一不为宴会带来便利。
宴会厅连接会客厅和厨房关系,满足了家庭正餐与宴会功能。
厨房连接偏厅与客房、生活阳台。偏厅满足了早餐和起居的功能,形成了另一个完整的生活圈。
主卧室内的各独立卫浴系统,浴缸,马桶间,干蒸房,漱洗间,淋浴间,不同的生活区域板块奇妙的连贯在一起,即独立又融合。
家庭厅从公共活动区域到变成主卧室的起居室只需要一秒,可开可合,可围可透就是空间魔力的体现。
男孩和女孩房设计了两种不同风格,孩子生活空间有好的规划,有好的环境影响熏陶。自然而然的就能从生活中学到美的意识和礼仪。
Name
|项目名称
:
Drawing Inspiration from Daily Lifestyle
|
从生活方式中汲取灵感
Location
|项目地点:
Shantou
,
China
|中国汕头
Design area
|设计面积:
240M²
Completion Time
|竣工时间:
2020.02
Interior Design
|主案设计:许业功
-HSU
许业功设计
Video|
视频:
丁一寒
Photography|
摄影:邱少
雄
公司自创立起,品牌秉承“5H精神”-高级的(High),真诚的(heartily),活力的(Happy),可期的(Hope)和Hsu的。
HSU设计善于将空间的实用性及艺术性发挥到极致,创造属于自己的设计潮流。不断从生活方式中汲取灵感,重塑空间美学,打造优雅时尚的生活体验。
设计总监/许业功
殊荣|Award
2021 德国IFDesign Award设计大奖
2021 法国双面神GPDP Award 家居空间创新大奖
2020 美国缪斯 Muse Design Award设计金奖
2020 墨尔本Melbourne Design Awards 设计银奖
2020 意大利A' Design Award & Competition设计铜奖
2020 中国喜马拉雅-设计之巅 居住空间设计大奖2020 金梁中国设计奖
2020 中国室内设计大奖赛CIID粤东"金十佳"奖
2020 中国室内设计大奖赛CIID全国优秀奖
2020 中国新商业空间设计大奖
2020 中国新商业空间设计团队大奖
2020 上海设计周HDA住房设计奖
2020 40 UNDER 40中国(汕头)设计杰出青年
2019 40 UNDER 40中国(汕头)设计杰出青年
2017 CIID陈设艺术作品邀请赛铜奖
2013 香港APDC亚太室内设计住宅空间佳作奖
2013 亚太室内设计大赛样板房优胜奖
2013 广州设计周“为中国设计发声”精英人物
2010 全国“十一五”建筑装饰100强设计师
2010 海峡两岸四地室内设计大赛优秀奖
2007 鹰牌杯全国室内设计大赛100强
2006 苏州优秀设计师100强
2005 苏州优秀设计师100强
2005 汕头市君悦华庭样板房设计优秀奖
2004 汕头市品格杯厨房设计大奖
2003 广东星艺装饰十大设计师
2001 汕头市龙光杯家居设计大赛二等奖
HSU许业功设计
HSU-DESIGN
|公司地址|
汕头市金园路弘烨楼801
0754-88880191
客服
消息
收藏
下载
最近



























