查看完整案例


收藏

下载
Introduction:每个人心中都有一团火, 路过的人只看到烟。——梵高
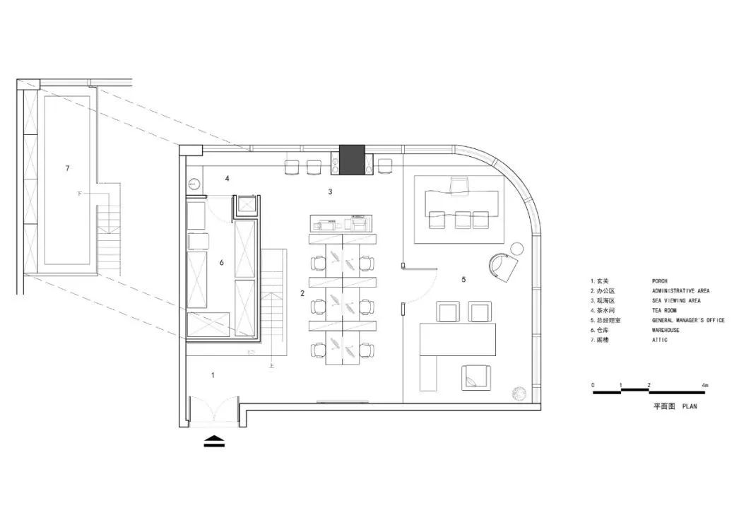
这个项目位于汕头龙光世纪大厦 24 层高空之上,一览无敌海景。设计打破传统意义上的封闭式秩序感,创建出自由、大胆、艺术及创新的办公环境。
在这间办公室,设计师通过在空间元素中建构盒子符号,用块面分割和黑白红色视觉对撞来创造出前后两个空间形态。用感性和理性平衡的构思,将艺术与功能组织成一个不可分割、相互依存的整体,趣味与秩序井然有序。
这条悬浮楼梯一跃成为整个空间最具视觉语言的主角,每阶独立成块嵌入墙体,伴随着丰盈的光线,光与影的互动,形成阶梯视觉上的漂浮状与拾步而上的踏实感。
办公区天际灯通过玻璃开的圆孔穿入办公室内,加上玻璃的反射形成虚实的变化,也营造了光线在空间中的流动与衍生。
整个黑白盒子犹如舞台聚光下的“演员”上演一出好戏,让整体空间关系获得统一与平衡。
Name|项目名称:Black and white box
Location|项目地点:Shantou,China|中国,汕头
Design area|设计面积:181M²
Completion Time|竣工时间:2021.1
Executive Creative Director |设计总监:许业功
Interior Design|主案设计:陈晓生
Project Leader|项目负责:肖建中
Photography |摄影:大象视觉
公司自创立起,品牌秉承“5H 精神”-高级的(High),真诚的(heartily),活力的(Happy),可期的(Hope)和 Hsu 的。HSU 设计善于将空间的实用性及艺术性发挥到极致,创造属于自己的设计潮流。不断从生活方式中汲取灵感,重塑空间美学,打造优雅时尚的生活体验。
设计总监/许业功
殊荣|Award
2021 国际空间设计大奖 IDEA-TOPS 艾特奖铜奖
2021G+全球设计精英大赛(汕头)TOP10
2021 40 UNDER 40 中国(汕头)设计杰出青年
2021 德国 IF Design Award 设计大奖
2021 法国双面神 GPDP Award 家居空间创新大奖
2021「设计千人
|官方视频号|
|公司地址|汕头市金园路弘烨楼 801
0754-88880191
客服
消息
收藏
下载
最近























