查看完整案例


收藏

下载
01.
「清韵纯粹 · 自然之境」
暮云收尽溢清寒,银汉无声转玉盘
——《阳关曲》
愈接近自然环境,内心想法便会愈加纯粹。于是本案将现代语境下的自然风貌移植到空间的设计之中,基于“人景交互”的理念,以时代风骨为笔,以简美大境为言,通过写意而婉转的描绘方式,感受自然时空的维度,构筑纯粹的视觉语言与生机盎然的自然场所。
SAND AREA | 沙盘区
空间整体通透而明亮,质感细腻且丰富,挑空的设计让空间视觉效果更加开阔,沙盘上方的艺术装置品造型独特,穿插交叠的结构新颖而大胆,十分富有艺术性,既使得空间氛围更加生动,又带来了十分新颖的视觉体验。
以时代风骨为笔,以简美大境为言,流线感十足的艺术装置宛若层层叠叠的水浪,远看错落,近看却又规整,细腻而精致的质感尽显格调,波动的线条与光影纵横交错,塑造出了空间的多维层次感,让视觉变得丰盈,从而延展了空间氛围。
DISCUSS THE AREA | 洽谈区
打破传统营销中心的刻板映像,洽谈区纳入自然清气,以沉浸式的感受营造出最大的舒适度,给参观者带来不一样的感官效果与空间体验,营造舒适无压的空间感与交流氛围,让静谧时光,与自然共生,感悟艺术心境,让一切都恰到好处。
READING ROOM | 书吧
文化的传承不是因循守旧,而是历久弥新。书吧空间雅致非常,一缕书香,参酌古今,寻溯中外的时光印记,在时空交织的方寸岁月中,寻找别样芳华,让精神的认知不囿于方寸,营造恬淡静逸的空间氛围,在一隅天地之中,寻找自然与人文,借此延展一场深远的对话。
RECREATIONAL WATER | 水吧
“明月松间照,清泉石上流。”大理石质感温润,为空间营造自然清雅,灵动大气之感,松树横挑构成形态之美,赋予空间生命力,让韵味典雅的东方禅意跃然于眼前,为空间增添了一分拥抱自然,天然去雕饰的独特气质。
TEA ROOM | 茶吧
垒石为山,引水为涧,茶室延续了整体空间温润而雅致的气质,壁龛内整齐有序的放置着各种茶具与摆件,清晰的序列营造出雅室独有的意境,绿植清新,邂逅一场视觉盛宴,让自然之意流经万物,在时间的回旋里与你,山水相逢。
VIDEO AREA | 多功能影音区
秉承过去与未来,以设计传承城市的记忆,多功能影音区宽敞而大气,纯粹而简洁,置人于景,入景于情,而设计,不止是营造一个空间,更是营造人们对生活的深层次需求,将空间注入更多人文与情感,创造具有想象力的未来生活场景,以此带来更为美好的生活体验。
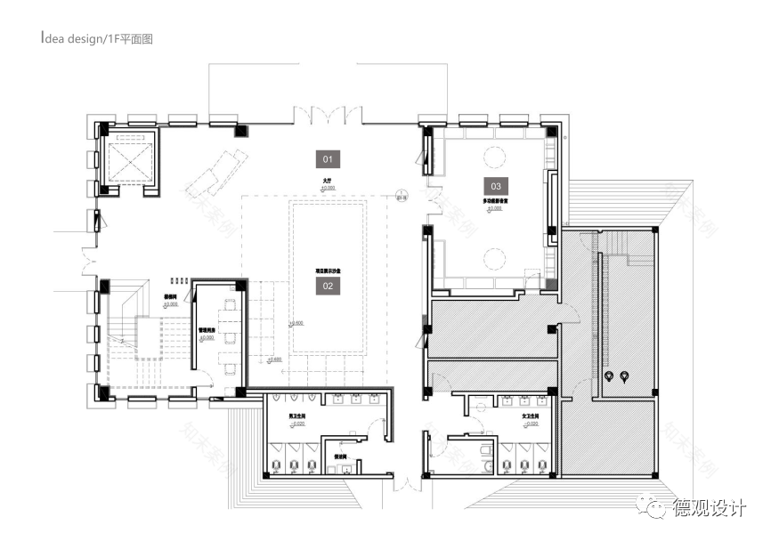
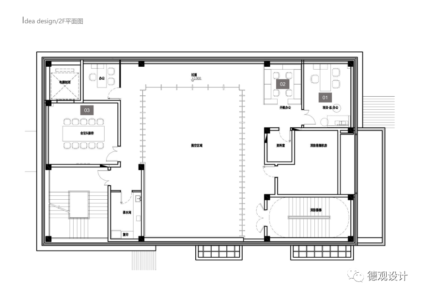
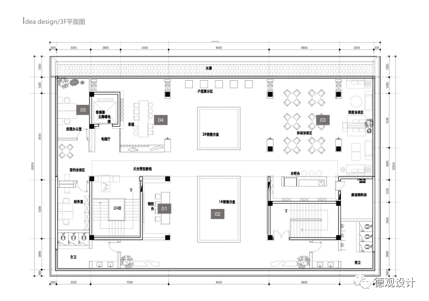
LAYOUT CHART | 平面布置图 | 滑动查看更多
项目名称
|鄂旅投洪湖悦兮半岛温泉小镇项目体验中心
PROJECT NAME|HOT SPRINGS TOWN EXPERIENCE CENTER
设计单位
|德观设计
DESIGN UNIT|DEGUAN DESIGN
面积
|1150㎡
AREA|1150㎡
设计时间
|2020.05
DESIGN TIME|2020.05
完工时间
|2020.08
COMPLETION TIME|2020.08
摄影
|梵镜建筑空间摄影 蔡唯
PHOTOGRAPHY|FANG-JING SPACE PHOTOGRAPHY CAIWEI
编辑
|梵镜文化
EDITOR|FANG-JING CULTURE
· END ·
客服
消息
收藏
下载
最近


























