查看完整案例


收藏

下载
| AO·DESIGN | 南京·江宁 | 私宅 | 140㎡
试问卷帘人,
却道海棠依旧。
知否,知否?
应是绿肥红瘦。
——宋·李清照《如梦令》
▼点击下方音频浏览体验
“爱一个人可以有很多种表达,而最好的方法是给他/她一个想要的家。”房子的男主人匡先生和郭小姐是这样说的,也是这样做的。
本案作为改善型的置业住宅,一方面避免了许多客观因素的影响,同时也让我们有足够的空间去帮助男女主人表达他们彼此间的浪漫:
“她喜欢烘培。”
所以有了中西厨+长岛台+
双冰箱
“他喜欢偶尔在家打游戏和办公。”
所以有了可独立也可和客厅连贯融为一体的书房。
“她的衣服很多,每一件都很好看。”
所以除开常规的衣柜,单独的衣帽间,饰品柜必不可少。
“他的小玩意儿也特别多,比我的化妆品都多。”
所以有了整面的展示柜和储物柜,有了升起百叶就能和客厅融为一体的书房。
“我们养了三条狗。”
“我们想要与众不同的色彩。”
“我们想在家里没有阻隔的看到彼此。”
“我们想要活成爱情里最纯粹的样子。”
所以有了完全打开的通透空间;
所以有了绿肥红瘦的大胆色调;
所以有了书房客厅的互相分隔却又融为一体;
所以才有了这个他们彼此想要的,他们想给彼此的,我们想给他们的,只属于他们的二人世界。
红颜易老,韶华易逝,
知否知否,绿肥红瘦。
唯有爱才能永恒。
▼过道 /
corridor
▼客厅 / livingroom
▼休闲阳台/
balcony
▼茶几 / tea table
▼单人沙发 / armchair
▼沙发背景 / sofa backdrop
▼动态展示 / dynamic exhibition
▼绿植 / green plant
▼客餐厅 / living room and dining room
▼动态展示 / dynamic exhibition
▼餐厅dining room / 厨房kitchen
▼餐厅 / dining room
▼西厨
kitchen
/ 岛台island
▼书房 / study
▼主卧 / master bedroom
▼配饰 / ornament
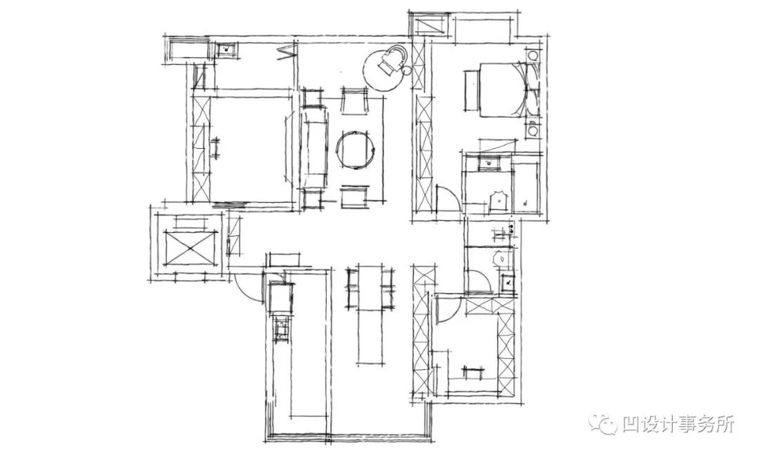
▼平面布置 / layout chart
主案设计
沈正全
参与设计
卞肖瑜 姚俊
深化设计
张冲
———————————————————————
摄影
ingallery丛林
视频摄制剪辑
姚俊
文案
卞肖瑜
———————————————————————
Add.:
南京市雨花台区南京证大喜马拉雅中心C座
tell:
15151862925
15996252186
15851833550
客服
消息
收藏
下载
最近

























