查看完整案例


收藏

下载
EXPRESSION OF CENTERING
©ninedo design
湖北·襄陽
HUBEI·XIANGYANG
项目名称:嘉地·利达璞园
项目类型:综合楼
设计时间:2021.07
项目面积:1400㎡
项目地址:湖北·襄阳
设计主创:董涛
软装设计:陈石园
深化设计:肖紫微、徐海兵、卢靖
设计表现:武汉必慕团队
项目摄影:梵镜·建筑空间摄影
<<<
序言
The beginning of design
本项目位于荆楚文化发祥地——湖北襄阳,项目北侧为邓城大道,西侧为卧龙大道,均为城市主干道,邓城大道北侧为方圆荟中百广场,卧龙大道西侧为邓城遗址。用地东边南边为两条规划城市道路,项目用地东侧紧邻为襄阳第五中学,南侧紧邻国色天襄小区。邓城大道与卧龙大道远期规划为高架快速路。项目周围 2 公里内配套有公园、商场、家居商场、幼儿园、小学、中心、高中等公共配套,公共配套设施齐全。
设计理念
Design Concept
突破同质化的新中式风格、抓住年轻人的品味
满足年轻家庭的改善需求
补充周边配套缺失、打造文创书吧氛围
-NINEDO DESIGN-
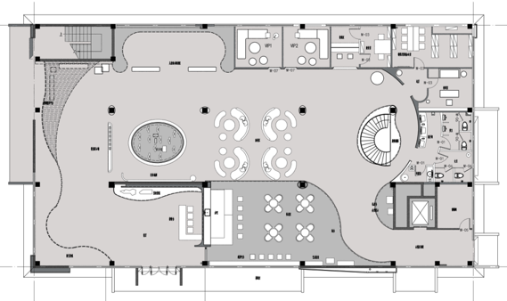
平面设计图
Graphic plan
滑动查看更多 |SLIDE TO SEE MORE
▼外 立 面| FACADE
建筑外景大气壮观,采用现代园林的设计风格,素净温润的米灰色大理石砖与周围景观结合,将大自然微妙的色彩关系渲染呈现,构建出和谐生动的观感体验。巧妙的东方元素恰如其分地展示出“笑迎八方来客”的豁达豪迈。
The exterior scenery of the building is magnificent, and the design style of modern garden is adopted. The plain and warm beige gray marble brick is combined with the surrounding landscape, rendering and presenting the delicate color relationship of nature, creating a harmonious and vivid visual experience. The artless Oriental elements appropriately show the magnanimity of welcoming visitors from all directions with a smile.
每当夜幕降临,光线与墨色镜面玻璃形成了空间独特的氛围感。
When night falls, light and ink-colored mirror glass create a unique atmosphere of the space.
▼门 厅| THE HALL
玉不琢不成器,人不学不知义。美玉自峻山顽石孕育而出,正是对本案学区优势的抽象诠释。造型独特的艺术装置品创意性十足,以抽象简约的艺术手法营造出现代时尚之感,视觉舒适度与美观性并存。
A diamond must be cut, and a man must learn not to know righteousness. Jade from the mountain stone bred, it is the abstract interpretation of the advantages of the school district. The art installation with unique shape is full of creativity, and creates a sense of modern fashion with abstract and simple artistic techniques. Visual comfort and beauty coexist.
▼过廊|CORRIDOR
门厅往左便是文化走廊,书香墨韵,竹简墨香,文化的交流与传播是现代社会必不可少的组成部分。以书脊为壁、竹简为柱,象征着空间底蕴拥有着不同凡响的支撑力量。
Hall to the left is the cultural corridor, calligraphy, bamboo slips ink, cultural exchange and dissemination is an indispensable part of modern society. With the spine as the wall and bamboo slips as the column, it symbolizes the extraordinary support power of the space.
▼沙 盘 区| SAND AREA
进入沙盘区,设计风格逐渐变得轻松。设计师希望人们在层层装饰包裹下的各类风格中跳脱出来,拒绝嘈杂、雷同以及不明所以的形式主义,在温润自然的空间中充分体会该项目的优势,对购房这件大事做出理性清晰的选择。
Entering the sand table area, the design style gradually becomes relaxed. The designer hopes that people can jump out of various styles under layers of decoration, reject noisy, similar and obscure formalism, fully experience the advantages of the project in a warm and natural space, and make a rational and clear choice on the purchase of a house.
▼洽谈区|DISCUSS THE AREA
空间以自然流淌的韵律,定格优雅,勾勒简约唯美、大气豁朗的当代精神。视野开阔、思绪清明,理性与感性糅合得恰到好处,彰显生活的不凡品味。
The space with natural flowing rhythm, elegant freeze frame, outlines the simple aesthetic, open-minded contemporary spirit. The vision is broad, the mind is clear, the rationality and the sensibility mix is just right, revealing the extraordinary taste of life.
闲时静坐,绿意点点,使宾客在悠闲自在的氛围中尽情享受愉悦的交流。
Sit quietly at leisure, green spots, so that guests in a carefree atmosphere to enjoy the exchange of pleasure.
▼儿童区 | CHILDREN AREA
孩童的天真与活泼都能恰当的被包围在这一小方活动空间。儿童活动区色彩搭配跳跃性十足,充满童趣。各种摆件都被抚平棱角,圆润可爱,以达到对孩童绝对的呵护。
The innocence and liveliness of children can be properly surrounded in this small space of activity. Children’s activity area color collocation is full of children’s fun. All kinds of ornaments are smoothed edges and corners, mellow and lovely, in order to achieve the absolute care of children.
▼楼梯区 | THE STAIRS AREA
原木色楼梯盘旋而上,木色搭配木制材料的温润感中和了冷调色带来的生硬冷冽,给人大自然的亲近感,质朴柔和。
Stair of original wood color is circled and go up, the wen embellish feeling of wood color collocation ligneous material neutralized the curt cold cold that cold toning brings, give people’s congress natural close feeling, plain downy.
▼阅 读 区| READING AREA
二层设置了咖啡吧、文创展览、亲子手工区、阶梯阅览室以及独立安静的学习区。本项目周边的生活配套齐全,而一个相对安静独立的社区互动空间,在当下的城市生活中较为难得。因此在设计定位中,综合楼的功能不止是完成楼盘的销售,更是该项目对业主的配套价值体现。
On the second floor, there are coffee bar, cultural and creative exhibition, parent-child handicraft area, step reading room and independent quiet study area. The surrounding life of the project is complete, and a relatively quiet and independent community interaction space is rare in the current urban life. Therefore, in the design orientation, the function of the complex building is not only to complete the sale of the real estate, but also to reflect the supporting value of the project to the owner.
阅读区视野开阔、交流性强。艺术作为载体,使温润的情感怦然释出。书柜陈列有序,温润的原木质感和细长的形态充满灵性。光影的明暗虚实制造出节奏与律动,丰富了简约空间中的层次和序列感。
The reading area has broad vision and strong communication. Art as a carrier, so that the warm and moist emotions heartache release. Bookcase display orderly, warm log texture and slender shape full of spirituality. The light and shadow creates rhythm and rhythm, enriching the sense of hierarchy and sequence in the simple space.
-NINEDO DESIGN-
- THE END -
关于我们 | ABOUT US
九为设计研究室于 2019 年起步武汉,是一家研究型创意设计公司。团队致力于通过专业的创意设计及微 BIM 精细化设计体系,为具有高度设计及审美需求的业主服务。在设计行业急需健康发展的当下,我们拒绝浮夸,寻求设计的本真;回归匠心,对建筑室内外空间设计进行精细化研究与探索,为中国建筑室内设计行业的发展不懈努力。
如何预约?
☎18502715553
? _
·end·
NINEDO
设计|创造|好物
ADD:18502715553
地址:武汉市洪山区关山大道光谷创意大厦 B 座 708 室
【往期推荐】
原创案例 | 57㎡LOFT 全能公寓的精致生活
原创案例 | 稳重隽永的东方情调
新作|高雅精致的生活
率直 | 宅
客服
消息
收藏
下载
最近




























