查看完整案例


收藏

下载
朵朵花儿,千姿百态,在阳光的照射下姹紫嫣红,一阵微风吹过,青绿色的柳树,摆动着柔嫩的枝条,一片片绿油油的草坪,一幅生机勃勃的景象,这就是人们心中的世外桃源。
Flowers, in different poses and with different expressions, In the sunshine, A breeze blew, Green willows, Waving soft branches, Green lawns, A vibrant scene, This is the paradise in people’s hearts.
一尘不染、素净澄明。用平静的心灵看世界,利用淡淡的家具布局,把原有的空间净化,把气质和品位含蓄地表现出来……
Spotless、Pure and clear. Look at the world with a calm heart, Using the light furniture layout, Purify the original space, Show your temperament and taste implicitly……
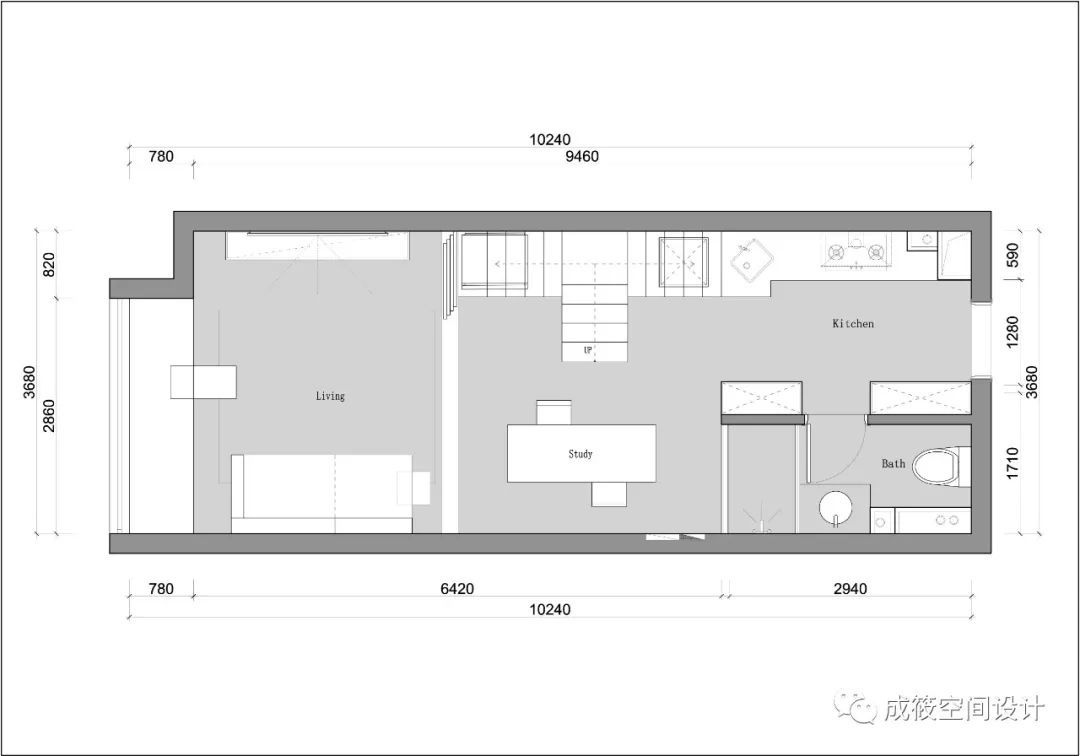
1、HALLWAY、玄关
2
LIVINGROOM
客厅
3 BEDROOM 卧室
4
BATHROOM
卫生间
5 STUDY 书房
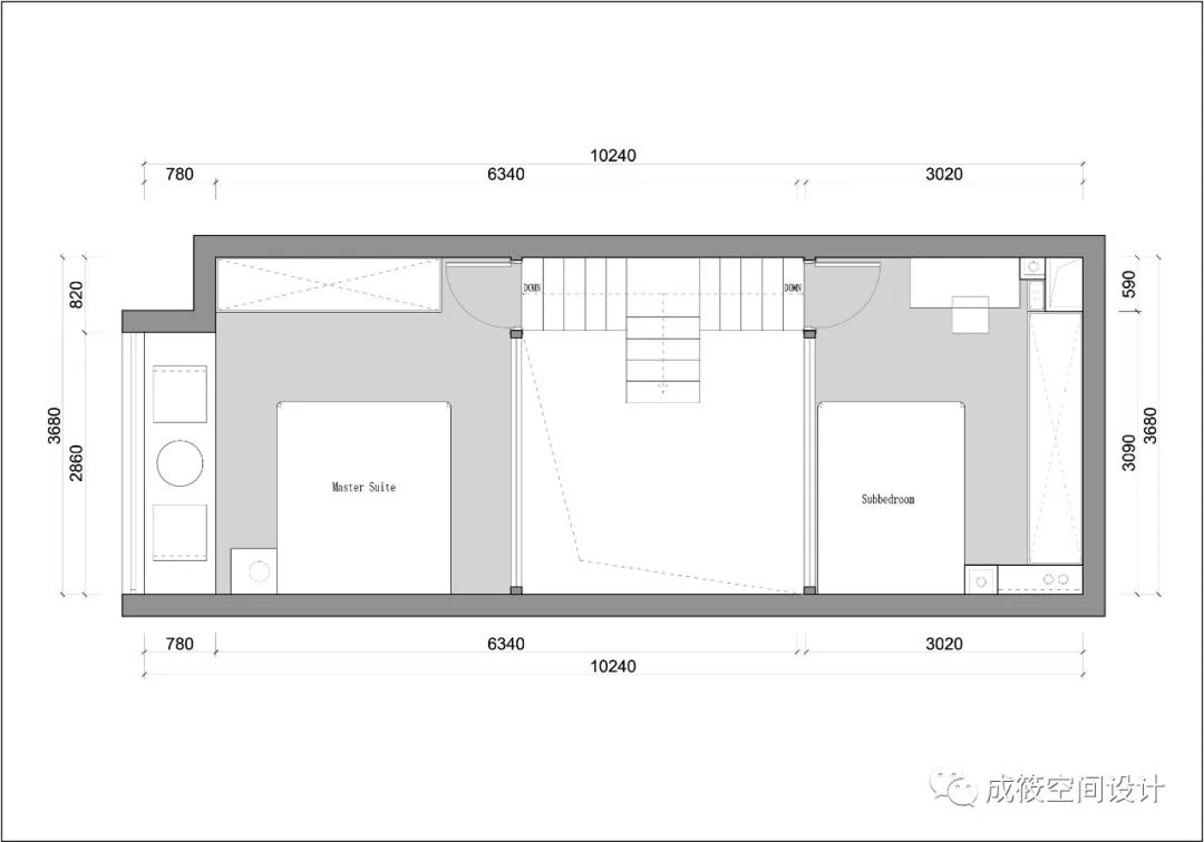
附户型图
项目面积 |75㎡
项目户型 | 平层公寓
项目地址 | 上海
项目设计 | 成筱设计 The project area is | 75 m2 Project unit type | flat floor apartment Project address | Shang hai Project design | Chengxiao design
客服
消息
收藏
下载
最近





















