查看完整案例


收藏

下载
BOUNDARY CREATION OF
SPATIAL HIERARCHY AND LAYERS
项目类型 | 地产展示空间
-
本项目是一栋临时用于公寓样板展示的接待小楼改造。我们利用原建筑的结构框架,将展示的几个“盒子”插在框架内,像是养花用的架子,散乱养几盆植物。整个建筑,我们就看做是一个立体的花园......
这几个盒子我们看作是空间的第一等级,毕竟是为了展示才改造这个建筑。作为商业样板的第一空间,在此不作分析,重点是作为第二等级空间的接待公区及之后的几个层次以及他们之间的关系。从另一个角度,其实我们更愿意反向来排序,将展示样板放在最后一个层次里,排在空间体验过程的末端。
△ 回廊
第二层次的空间就是室内的公区,这是诸多空间里感受最丰富的区域,它是我们空间的重点。
我们希望这个区域有着由外到内的模糊、暧昧的空间氛围,有室外的自然与放松,又有室内的舒适与安静。怎样处理这个区域的建筑气候边界,无疑是实现这一想法的有力途径。
△ 水吧
△
室内休闲区
我们尝试打破与移动建筑原有的室内外的边界,重组整个空间的内外关系。使得外部空间侵入进建筑,又不进入室内,形成建筑内的室内的外化空间
。通过这样的操作,在作为第二层次的公区室内和作为第四层次的外部花园相互作用下,产生了各自相邻的外延模糊空间, 与入口的门廊并列作为空间的第三等级。
△ 室内外边界
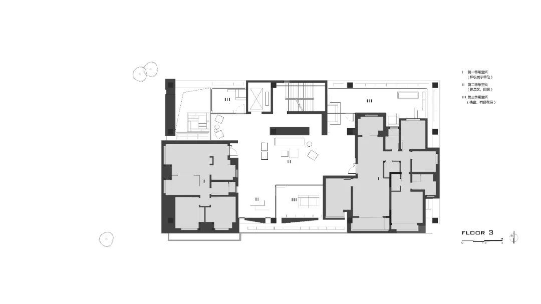
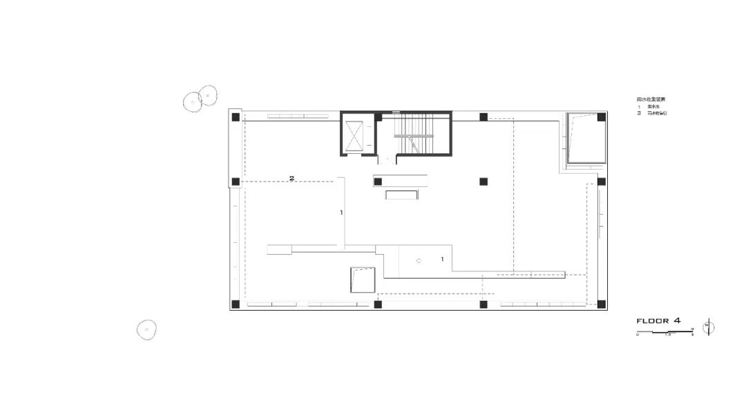
小楼有四层,一至三层是有展示功能,四层是作为下面植物休养生息的过渡花园,各层之间有着它们各自的生态联系。
我们在各层楼板开洞,使得每一层都有挑空,空间纵向之间得到了新的空间层次,每层的挑空区域则各有不同,建筑主体形成了一个真正上下通透的“架子”。
△ 二楼挑空区
△ 雨水装置
原建筑的屋面排水管随柱而下,本来包括在墙体内,因我们只要结构,它便暴露无遗。使的本来干净的“架子”显得杂乱。园冶中讲到”巧于因借,精在体宜”,我们何不做一番改造,让它体宜呢?于是有了整合屋面排水引到一层作为水景的装置。
如逢落雨,在室内均能听到水响。晴天打开循环系统,收集的雨水也会如注般落如水池,为空间增添一层诗意的氛围。
△
雨水装置
平面范畴的内外进退关系与每层之间的挑空连通关系,让各个空间之间有了多维的丰富性,形成内与外的、上与下的多等级的空间层次。空间之间不自觉的会形成诸多的对望,让整个建筑的公区犹如自然山体意向,盘桓其中,虽不能居,但可观,可游……
△ 入口门廊
ABOUT PROJECT
△ 体块演变
△ 爆炸图
△ 一层平面图
△ 二层平面图
△ 三层平面图
△ 顶层平面图
项目名称:
空间等级与层次的边界营造
项目类型:
地产展示空间
业主单位:
泰宏建业
建筑面积:
2000㎡
设计团队:
黄三秀、高魏东、施甫、
吴尚明、林智峰、彭小玉
设计公司:
边界空间设计
设计时间:
2020年
项目地址:
中国郑州市泰宏建业国际城
摄影版权:
陈兵
施工单位:
泰宏施工
参与品牌:
西顿、富美家、捷易成石材、宝泽金属
ABOUT DESIGNER
黄三秀 / Tom Huang
边界空间设计 创始合伙人
高魏东
/
Allen Gao
边界空间设计 创始合伙人
施甫
/ Fu Shi
边界空间设计 创始合伙人
边界空间设计公司立于中国杭州,拥有一支优秀的设计师团队。主要从事室内和中小型建筑物的空间设计研究,提供专业的可行性设计解决方案和咨询。
研究项目的独特背景包括文化,场所,空间,照明和通风以及局限性。更加注意空间中的“人”,并从感知和理性的角度处理边界之间的关系。通过处理空间比例和光线,探索空间和组成元素的边界及其合理的处理方法,使空间具有遵循主线的独特质感和氛围。
- END -
编辑 | Kerry 校对 | 大 白
*本项目由边界空间设计投稿,标题、版式由AXD编辑制作,
如需获取项目相关资料,请联系边界空间设计。
- 相关阅读 -
为
边界空间设计
客服
消息
收藏
下载
最近









































