查看完整案例


收藏

下载
RETURN TO HAPPINESS
RETURN HOME
迎着家的方向回归幸福
项目类型 | 住宅
撰稿 | AXD重庆编辑部
家不仅是每个人的避风港,也是我们不管走多远、走多久最终都会回到的地方。
《梦想改造家》第七季第三期
——
“归来的家”,
设计师秦振为北漂七年归家的重庆人小庄一家三代改造一个梦想的家,让这个家里的每个人、每只猫和狗都能在这里适得其所
,不用再像改造前一样局促而将就地生活。
设计师秦振第一次参加《梦想改造家》,接受到的委托便是将生活作息不统一的三代人舒适的融合在同一个空间里,
让三代人能在归来的家中开启新生活
。
面对83㎡狭小的空间,布局混乱、昏暗无光、无收纳导致物品堆积等等的现实问题,
如何让每个家庭成员拥有独立空间的同时还得要将居家办公的功能融合进去,成为本次设计的难点。
▲改造前
带着种种难点,和三代人对家的构想,秦振承载着这个新家的梦想开启这次的改造。
空间狭小无法满足三代人的居住需求?那就打破原有的房间格局,进行空间重塑。
从一张图的勾勒,去清晰整个家的模样。
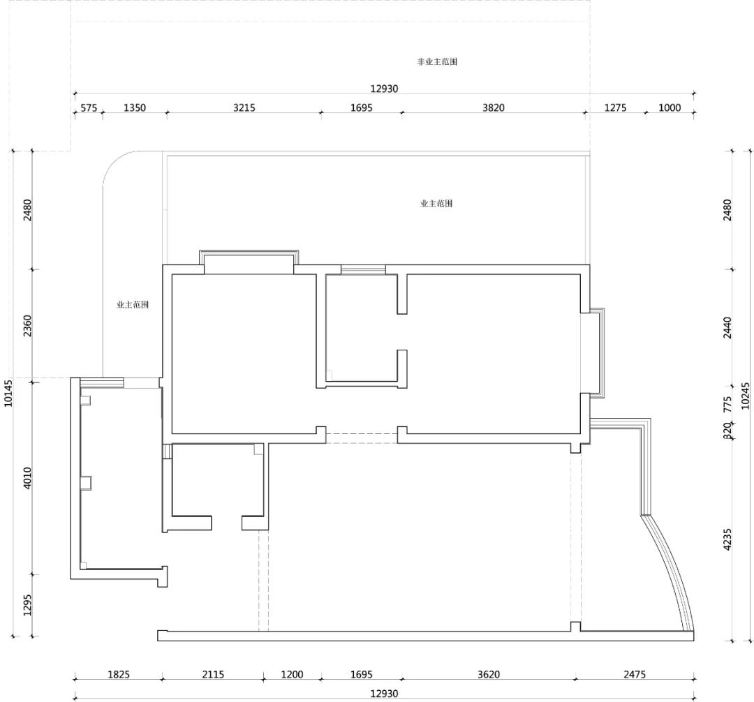
▲ 原始平面图
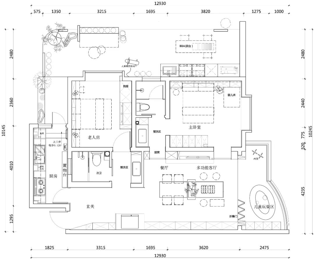
▲改造后平面图
01
客厅
/ Living room
客厅不仅仅是休闲区域,因为要承担起作为三代人的公共活动空间,孩子未来的成长空间的作用,所以
将原有的客厅与阳台完全整合
。
用隐藏式推拉门串联各个空间,形成空间版块
,使室内动线更加活跃,既能让整个客厅的空间互动更加明显,又能令家人之间更加亲密。
▲效果图
02
工作区域
/
working area
满足两位媒体人的居家办公需求,将餐桌与办公桌结合起来。女主人的视频拍摄需求,就利用白色滑门打造一个干净清爽的背景,并加设了全屋可调光系统,满足所有工作需求。
03
卧室
/ bedroom
为了让家中年迈的妈妈能有一个舒适的居住环境,秦振在卧室里设置了一面开放的玻璃,不仅能
让平缓柔和的阳光透进室内
,从室内望出去,更能看到最好的室外景观。
04
厨卫
/ Kitchen and bathroom
厨房解决了狭小拥挤,操作动线不合理的问题。更增设自动调味篮,自动感应柜体灯光以及针对屋主害怕燃气泄漏而装置的燃气报警系统。
卫生间除了日常使用,还需要兼具给狗洗澡,猫做窝的功能
。
05
小露台
/ Balcony
小露台无法进行修建改造,那就将其变身为小花园,摆上桌椅
板凳植入绿植,在满足家人们享受一壶好茶顺带遛狗心愿的同时,也能让街坊邻里感受丝丝自然绿意。
06
软装色彩
/ Soft outfit and colours
“其实除了空间的功能性,我更多的是考虑一个家的亲密度。”秦振一直是这么认为。
所以,在室内的软装搭配上除了满足日常功能性需求,还需要
营造一个拥有温度和舒适生活氛围的家
。所以整个室内搭配
在黑白之间找到了一个舒适的平衡点。用
黑白的色调与跳色的点缀将“家”的温度细腻呈现
。
07
施工
/ construction
一个空间的完美展现,除了设计师的设计,更离不开施工师傅的汗水。为了“归来的家”这个项目,现场施工师傅们一个月不眠不休的赶工,每天8点到工地,凌晨3、4点才回到家。连中秋和国庆双节的假期都没有例外。
秦振两次落泪都是为了工人师傅,如果设计师是大脑,施工师傅就是手,每一个细节的堆砌都是每一双手默默付出。
弹幕说,秦老师看起高高大大,居然是个柔弱的小公举。我们都应该去尊重每一个职业、每一个身份的人。
“我们眼睛里除了平视或仰视更应该经常俯视,俯视疾病和病痛,俯视角落和夹缝,我们眼中看到的除了繁花盛景还应该有世间冷暖。”
ABOUT PROJECT
▲ 原始平面图
▲改造后平面图
————————
栏目名称
| 梦想改造家
项目名称
| 归来的家
项目类型
| 住宅/改造
室内设计
| 重庆意象设计
主案设计
| 秦振
项目面积
| 83㎡
项目地点
| 中国重庆
ABOUT DESIGNER
秦 振
重庆意象设计
/
设计总监
- END -
撰 稿 |AXD重庆编辑部 编 辑 | 大 白
-
相关阅读
-
点击
“阅读原文”,
关注K计划最新公益活动!
客服
消息
收藏
下载
最近













































