查看完整案例


收藏

下载
REMOVE THE LABE
BE NATURAL
去标签化,回归居住品质
项目类型 | 商业空间
图片资料 | HHD和合设计
位于郫都犀浦,周边大学林立,在大量以主题与风格为标签的酒店中,U2战略性地在这片区域内提出新的指向——专注于服务大学生的无人智慧型精品酒店。营造一处品质的所在,提倡高品质的的居住理念,U2从品牌到空间都贯穿着舒适的设计理念。
通过智能自助系统进入这一方温暖美好的空间。
平静轻松,柔和的色调,这个素色的空间设计更关注空间的真实品质,排除一切干扰——色彩与异型的塑造,以保持一个干净整洁的空间。空间上,以固定的体块塑造家具以替代可移动家具,连续流畅的几何形体在小空间中营造一种自在,形成一道柔和的背景。
将电视机嵌入从天花板连接至墙体的倾斜面,以调整常规的观看角度,这个倾斜面与居住者躺卧的视线实现平行角度。
从细节处提升居住体验,放大舒适与慵懒,塑造无限的自在。
空间舍弃个性的追求,面向年轻一代居住者自由自主的个性,它们本身就是一个个独特的自我与标签,空间隐退为一面基础,显现着居住的品质。
它不在于营造一次特别的体验,而是弱化色彩与个性——不张扬,也不迎合,舒适自然,回归居住本身。
床边U型的半围合呵护一份柔软的睡眠记忆,营造一种温暖的安全感。藉由木质所营造出的平静与自然,它将空间内人与人之间的距离拉近,塑造了一个亲密空间。
通过品质塑造一份美好的体验,它链向一份时间的记忆。在自然舒适的氛围中,亲密关系与本真纯朴的时光运营着温暖与美好。
它是一份自然美好的回忆,也包含着对年轻与个性的思考。这个温暖的空间,它真正地面向大学生这个充满朝气的群体,平衡居住者与空间的关系,成为一个平和的中性空间。
ABOUT PROJECT
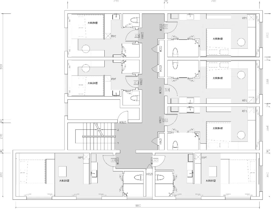
U2 Hotel 总平面图
项目名称 | U2 Hotel 哟兔酒店
项目地址 | 中国·成都·郫都区
项目面积
|
620㎡
设计时间
|
2019年12月
完成时间
|
2020年8月
设计机构 | HHD和合酒店设计
设计总监 | 王朝立
空间设计
|
王朝立 刘向兴 赖全升
视觉设计
|
魁KUI设计
摄影机构
|
K.photography
ABOUT DESIGNER
王朝立
HHD和合酒店设计
设计总监
- 相关阅读 -
点击
“阅读原文”,
关注K计划最新公益活动!
客服
消息
收藏
下载
最近
























