查看完整案例


收藏

下载
//
目前,吸毒人数虽呈明显下降趋势,但吸毒人群逐渐向年轻化发展。青少年吸毒的问题越来越严峻,严重影响社会和谐和青少年身心健康发展。预防青少年吸毒,做好青少年禁毒教育工作已刻不容缓。这便是该项目的设计出发点。
//
BOLD EXPLORATION
OF EDUCATIONAL SPACE
教育空间的大胆探索
项目性质 | 青少年教育基地
WHY WOULD
▲
武昌区禁毒教育基地
武昌区禁毒教育基地坐落于享有盛名的重点高中武汉中学内,原项目地点为教学楼走廊处的学生阅读区。因其一面面向开阔的公共通道,是众多学生出入教学楼的常经之处,拥有得天独厚的展示面,遂选定此处为禁毒教育基地,从而有了我们重新审视一个教育展示空间的想法。
▲ 空间原状(学生阅读区)
▲ 改造后外立面
对国内政府性教育展示空间进行分析,发现其空间设计更多的是以管理者自上而下的思维模式出发,忽略了作为大多数实际使用者的学生其本身的行为需求及其所对应的空间要求。仅以基础的白墙及广告宣传知识为主体,用最经济的方法为学生传播相关知识,或是以夸张的造型和炫目的色彩、灯光来吸引眼球,而缺乏对内容本身的
关注
与设计。
社会的现状引发我们对教育展示空间的思考与探索,这也使我们
尽力去摆脱现状以及跳出当下展示空间利用夸张造型及炫目灯光夺人眼球怪圈,同时也是对我们自身设计批判的一些参照。
教育展示空间的使命是把内容知识完整的传输到观览者自身,我们认为此次展示空间的基调应为
“优雅适度的空间+可阅读性的内容知识”
的组合方式,抛弃其他不必要的元素,去装饰化,反归到其需求本身。
西方哲学家Leonard Koren曾这样说过:
“削减到本质,但不要剥离它的韵,保持干净纯洁但不要剥夺生命力。”
我们十分认同这一设计理念,并将此理念落地于武昌区禁毒教育基地。
简单的体块形体组成整体的空间,平静而优雅,
规避浮夸繁复的装饰,而于抽象及体块形体中展现事物本质的美,摒弃物质而着重精神。
正方形的玻璃砖以栅格的方式形成内与外的分割界面,并形成一种白透明的纹理,减缓了基地内部沉闷的空间氛围,
弱化了建筑外观的视觉重量,让空间体验者更好奇这半透明材质之后,将会呈现出怎样的空间故事。
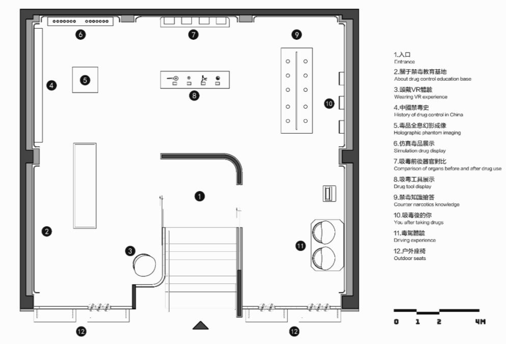
基地内部一别与其他教育展示空间的呆板与沉重,大量采用了原木色的木材作为墙体,沉稳又不失亲切感的原木色,营造出一个自然、温润、舒适的空间氛围,屏幕抢答互动装置和全息影像系统,增加了空间的趣味性,让作为空间体验者的青少年,从被动接受禁毒知识变成主动的探索学习,从而对禁毒的意义有着更为深刻的理解。
历史是一个庞大而严肃的话题,面对青少年观览者,我们必将增加其逻辑感和趣味性。
于是我们将基地的一整面墙作为中国禁毒史的展示区,以线形的形式对历史进行梳理呈现,让青少年更清晰的了解国家禁毒的历程。IP
A
D动态影像展现也让严肃庄重的历史故事更具有趣味性。空间体验者可以放慢脚步,细心观察和阅读思考,而不仅仅惊鸿一瞥。
对于教育类空间,尤其是针对青少年的教育空间,在不削弱内容的前提下,以轻松的叙事方式组织空间语言,以趣味为空间引导,或许是一种行之有效的方式。
ABOUT PROJECT
▲ 前期手稿
▲ 空间体块概念
▲ 平面概念
—————
项目名称:
武昌区禁毒教育基地
项目地点:
中国 武汉
项目面积:
120㎡
项目委托方
:
武汉市禁毒委员会
设计机构
:
WHY WOULD 外物
完成时间:
2019年11月
主案设计:
汤璇
撰文
:
汤璇
摄影
:
汤璇
ABOUT DESIGNER
WHY WOULD
外物
成立於中國·武漢的富有年輕創造力的獨立設計品牌。
通過對空間建築結構的光/色/質感/聲音等介質,
表達符合當代美學的居住及商業空間,
輸出對於美學與視覺藝術的思維理念。
- END -
编辑 | Kerry 校对 | 大 白
*本项目由WHY WOULD投稿,标题及版式由AXD编辑制作。
如需获取项目相关资料,请联系
WHY WOULD
。
点击
“阅读原文”,
关注K-2020最新动态!
客服
消息
收藏
下载
最近

































